Tervetuloa uusille verkkosivuillemme! Retta Asuntovuokraus on nyt INNA Asuntovuokraus.

Asunnossa:

  • Parveke
  • Laajakaista kuuluu vuokraan
  • Huoneistokohtainen varasto
  • Astianpesukone
  • Lemmikit sallittu
  • Virtuaaliesittely

Talossa:

  • Hissi
  • Sauna
  • Rakennusvuosi 2018
  • Pesutupa

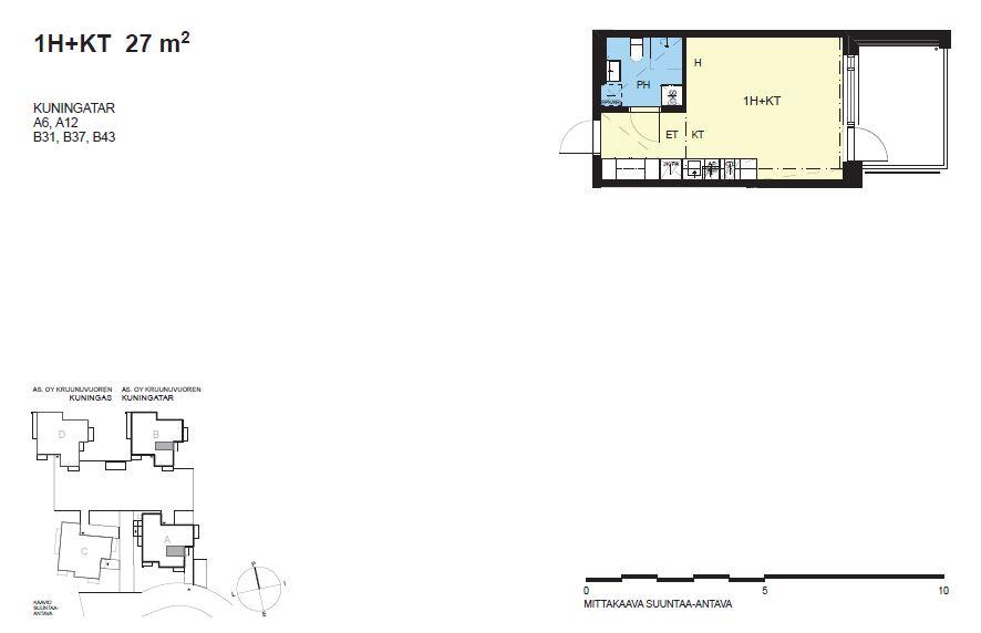
Asunnon kuvaus

Viihtyisä toisen kerroksen yksiö etsii uutta asukasta. Asunto sijaitsee rauhallisella ja luonnonläheisellä alueella Kruunuvuorenrannassa. Talon lähettyviltä on hyvät liikenneyhteydet ja lähikauppa Alepa palvelee kävelyetäisyydellä. Asunnossa on toimiva pohjaratkaisu, sekä modernit kaluste- ja materiaalivalinnat. Tämän kodin kruunaa reilun kokoinen lasitettu parveke. Lemmikit ovat tervetulleita. Autopaikoissa on jonoa tällä hetkellä. Kiinnostuitko? Voit täyttää asuntohakemuksen asuntoilmoitukselta verkkosivuiltamme. Hakemus ei sido sinua mihinkään. Olemme sinuun yhteydessä, mikäli voimme tarjota asuntoa sinulle. Asunnonhakuun liittyvissä kysymyksissä voitte olla yhteydessä asiakaspalveluumme, puh. 030 609 5555 tai asuntovuokraus@inna.fi

Asunnon tiedot

KatuosoiteRosalankuja 5 A 6
Pinta-ala27 m²
KaupunkiHelsinki
KaupunginosaKruunuvuorenranta
Kerros2/0
Kuntohyvä
Huoneiston vapautuminenHeti vapaa
SaunaEi
Parvekkeen tiedotKyllä, lasitettu, lasitettu
VirtuaaliesittelyKyllä
Lemmikit sallittuKyllä
Muut ehdotAsukkaan vastuulla ottaa oma kotivakuutus. Vuokralainen tekee oman sähkösopimuksen.
Lisätiedotsavuton

Asunnon varustelu

Keittiön varusteluliesi, lieden selite: keraaminen liesitaso, erillinen kalusteuuni, astianpesukone, jää-pakastinkaappi
Kylpyhuoneen varustelupeilikaappi, pesukoneliitäntä, lattiamateriaali: laatta, seinämateriaali: laatta, lattialämmitys, mukavuuslämpö asunnon sähköstä
Lattiamateriaaliparketti
Huoneistokohtainen varastoKyllä, Irtainvarasto
VaatehuoneEi

Hinta ja kustannukset

Vuokra / kk720 €
Vuokravakuus720 €
Sopimuksen tyyppiToistaiseksi voimassaoleva, vuokrasopimus voi päättyä aikaisintaan 6 kuukauden päästä ilman sopimussakkoa
Vesimaksu24 €/hlö/kk

Taloyhtiön tiedot

UudiskohdeEi
Taloyhtiön nimiRosalankuja 5 - Asunto Oy Kruunuvuoren Kuningatar
Rakennuksen tyyppiASUINKERROSTALO
Rakennusvuosi2018
Huoneistojen lukumäärä18
Kerroksia0
HissiKyllä
EnergialuokkaC 2018
EnergiatodistusEi
AutopaikatAutopaikkoja hallinnoi ulkopuolinen toimija, vuokrattava erikseen
Sähköauton latauspisteEi.
Yhteiset tilatkerhohuone, ulkoiluvälinevarasto, sauna, pesutupa
Lisätiedotlemmikit sallittu

Sijainti kartalla

Kohdetta välittää:

Sonja Gupta

Vuokrausneuvottelija

Puh. +358444946420

sonja.gupta@inna.fi

INNA Asuntovuokraus, Pääkaupunkiseutu