Asunnossa:

  • Parveke
  • Sauna
  • Laajakaista kuuluu vuokraan
  • Huoneistokohtainen varasto
  • Astianpesukone
  • Lemmikit sallittu

Talossa:

  • Hissi
  • Rakennusvuosi 2014
  • Kuntosali

Asunnon kuvaus

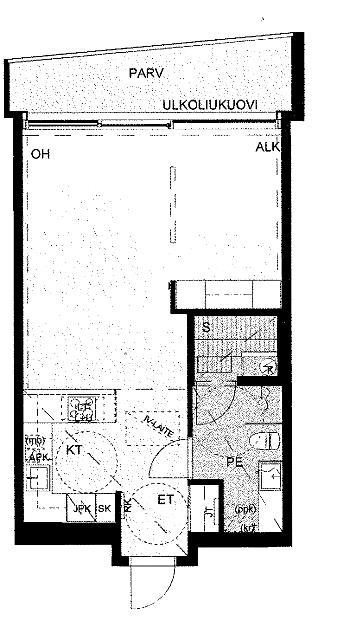
Tämä laadukas yksiö on Maailmanpylvään toisessa kerroksessa. Upeat maisemat avautuvat Jyväsjärven suuntaan tilavalta lasitetulta parvekkeelta. Erinomaisessa pohjaratkaisussa on toteutettu mukavasti työskentelytilaa keittiöön, ja myös kylpyhuoneen puolelle on toteutettu laskutilaa. Alkoviin mahtuu leveämpikin sänky ja runsaiden neliöiden ansiosta on helppo toteuttaa tilanjakoa omien tarpeiden mukaisesti. Asunnon varusteluun kuuluu myös astianpesukone sekä kokonaan laatoitettu kylpyhuone. Talon pohjakerroksesta löytyy asukkaille kuntosali! Äijälänrannan alueessa viehättää järven läheisyys sekä ulkoilumahdollisuudet. Alueella on oma lähikauppa ja uimaankaan ei tule pitkä matka. Tämä kasvava alue on monen eri ikäisten suosima. Mikäli kiinnostuit asunnosta voit täyttää hakemuksen osoitteessa www.inna.fi

Asunnon tiedot

KatuosoiteÄijälänrannantie 34 A 2
Pinta-ala46 m²
KaupunkiJyväskylä
KaupunginosaÄijälänranta
Kerros2/0
Kuntohyvä
Huoneiston vapautuminenHeti vapaa
SaunaKyllä
Parvekkeen tiedotKyllä, lasitettu, lasitettu parveke järvelle päin
Lemmikit sallittuKyllä
Muut ehdotAsukkaan vastuulla ottaa oma kotivakuutus. Vuokralainen tekee oman sähkösopimuksen.
Lisätiedotsavuton

Asunnon varustelu

Keittiön varusteluliesi, lieden tyyppi: keraaminen liesi, astianpesukone, jää-pakastinkaappi
Kylpyhuoneen varustelupeilikaappi, pesukoneliitäntä, lattiamateriaali: laatta, seinämateriaali: laatta, lattialämmitys
Lattiamateriaaliparketti
Huoneistokohtainen varastoKyllä, irtaimistovarasto
VaatehuoneEi

Hinta ja kustannukset

Vuokra / kk816 €
Vuokravakuus816 €
Sopimuksen tyyppiToistaiseksi voimassaoleva, vuokrasopimus voi päättyä aikaisintaan 6 kuukauden päästä ilman sopimussakkoa
Vesimaksu24 €/hlö/kk

Taloyhtiön tiedot

UudiskohdeEi
Taloyhtiön nimiÄijälänrannantie 34 - Asunto Oy Jyväskylän Maailmanpylväs
Rakennuksen tyyppiASUINKERROSTALO
Rakennusvuosi2014
Huoneistojen lukumäärä14
Kerroksia0
HissiKyllä
EnergialuokkaC2013
EnergiatodistusEi
AutopaikatAutopaikkoja hallinnoi ulkopuolinen toimija, vuokrattava erikseen
Sähköauton latauspisteEi.
Yhteiset tilatulkoiluvälinevarasto, kuntosali
Lisätiedotlemmikit sallittu

Sijainti kartalla

Kohdetta välittää:

Marjut Suokas

Myyntineuvottelija

marjut.suokas@inna.fi

INNA Asuntovuokraus, Jyväskylä