














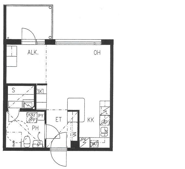
Tämä tilava yksiö omalla saunalla ja lasitetulla parvekkeella löytyy Lutakosta. Alkovi ja keittotila on laitettu vastakkaisiin nurkkiin, mikä rauhoittaa molempia tiloja huoneistoissa ja helpottaa sisustamista. Huoneiston parveke on sisäpihan suuntaan. Kylpyhuone on kokonaan laatoitettu ja sieltä löytyy pyykinpesukoneliitäntä. Kiinnostuitko? Voit täyttää asuntohakemuksen asuntoilmoitukselta verkkosivuiltamme. Hakemus ei sido sinua mihinkään. Olemme sinuun yhteydessä, mikäli voimme tarjota asuntoa sinulle. Asunnonhakuun liittyvissä kysymyksissä voitte olla yhteydessä carita.alatalo@inna.fi tai asiakaspalveluumme, puh. 030 609 5555 tai asuntovuokraus@inna.fi
| Katuosoite | Schaumanin puistotie 15 B 39 |
| Pinta-ala | 36.5 m² |
| Kaupunki | Jyväskylä |
| Kaupunginosa | Lutakko |
| Kerros | 4/6 |
| Kunto | hyvä |
| Huoneiston vapautuminen | Heti vapaa |
| Sauna | Kyllä |
| Parvekkeen tiedot | Kyllä, lasitettu |
| Lemmikit sallittu | Kyllä |
| Muut ehdot | Asukkaan vastuulla ottaa oma kotivakuutus. Vuokralainen tekee oman sähkösopimuksen. |
| Lisätiedot | savuton |
| Keittiön varustelu | liesi, astianpesukone, jää-pakastinkaappi |
| Kylpyhuoneen varustelu | peilikaappi, pesukoneliitäntä, lattiamateriaali: laatta, seinämateriaali: laatta |
| Lattiamateriaali | laminaatti |
| Huoneistokohtainen varasto | Kyllä, irtaimistovarasto |
| Vaatehuone | Ei |
| Vuokra / kk | 690 € |
| Vuokravakuus | 250 € / 250 € sopimustyypistä riippuen |
| Sopimuksen tyyppi | Toistaiseksi voimassaoleva tai toistaiseksi voimassaoleva, vuokrasopimus voi päättyä aikaisintaan 12 kuukauden päästä ilman sopimussakkoa |
| Kampanjatieto | Vuokrasta vähennetään 50€/kk ensimmäisen 10 täyden asumiskuukauden osalta. |
| Vesimaksu | 22 €/hlö/kk |
| Uudiskohde | Ei |
| Taloyhtiön nimi | Schaumanin puistotie 15 - Jyväskylän Schaumanin puistotie 15 |
| Rakennuksen tyyppi | ASUINKERROSTALO |
| Rakennusvuosi | 2000 |
| Huoneistojen lukumäärä | 51 |
| Kerroksia | 6 |
| Hissi | Kyllä |
| Energialuokka | D2013 |
| Energiatodistus | Kyllä |
| Antennityyppi | Kaapelitelevisiojärjestelmä |
| Autopaikat | Autopaikkoja hallinnoi ulkopuolinen toimija, vuokrattava erikseen |
| Sähköauton latauspiste | Ei. |
| Yhteiset tilat | ulkoiluvälinevarasto, pesutupa |
| Lisätiedot | lemmikit sallittu |