














Viihtyisä toisen kerroksen kaksio etsii uusia asukkaita, Asunto sijaitsee luonnonläheisellä alueella Vantaan Kaivokselassa. Asunnon lähettyviltä on hyvät liikenneyhteydet ja ulkoilumaastot. Lähikaupat Lidl Kaivoksela ja S-Market Kaivoksela palvelee kävelyetäisyydellä, sekä kauppakeskus Myyrmannin kattavat palvelut löytyy n. 2km päästä. Asunnossa on toimiva pohjaratkaisu, sekä modernit kaluste- ja materiaalivalinnat. Tämän kodin kruunaa tietysti lasitettu parveke ja oma sauna. Lemmikit ovat tervetulleita. Kysy vuokrattavista autopaikoista lisää välittäjältä. Kiinnostuitko? Voit täyttää asuntohakemuksen asuntoilmoitukselta verkkosivuiltamme. Hakemus ei sido sinua mihinkään. Olemme sinuun yhteydessä, mikäli voimme tarjota asuntoa sinulle. Asunnonhakuun liittyvissä kysymyksissä voitte olla yhteydessä asiakaspalveluumme, puh. 030 609 5555 tai asuntovuokraus@inna.fi
| Katuosoite | Aapramintie 14 A 9 |
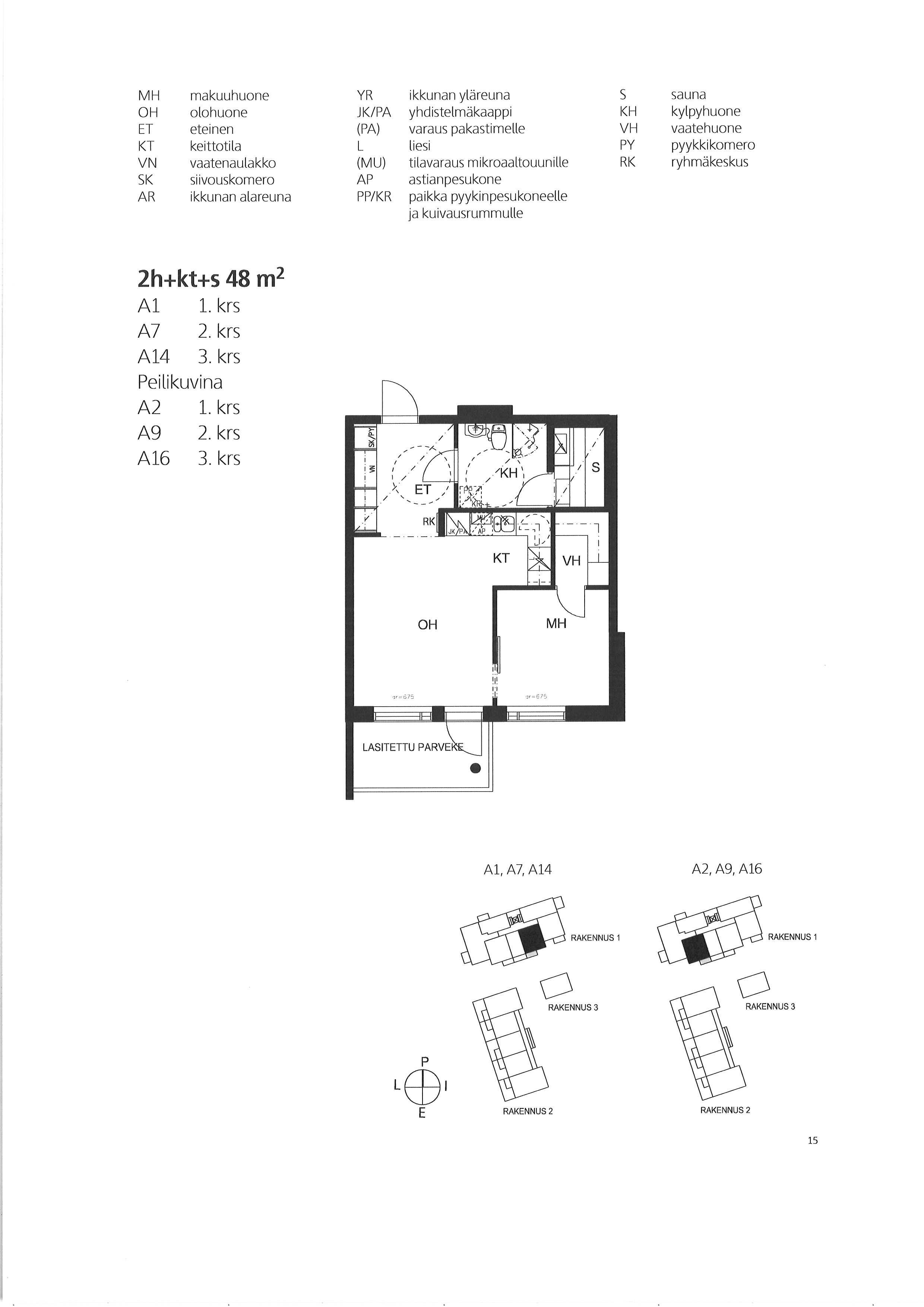
| Pinta-ala | 48 m² |
| Kaupunki | Vantaa |
| Kaupunginosa | Kaivoksela |
| Kerros | 2/4 |
| Kunto | hyvä |
| Huoneiston vapautuminen | Heti vapaa |
| Sauna | Kyllä |
| Parvekkeen tiedot | Kyllä, lasitettu |
| Lemmikit sallittu | Kyllä |
| Muut ehdot | Asukkaan vastuulla ottaa oma kotivakuutus. Vuokralainen tekee oman sähkösopimuksen. |
| Lisätiedot | savuton |
| Keittiön varustelu | liesi, astianpesukone, jääkaappi |
| Kylpyhuoneen varustelu | peilikaappi, pesukoneliitäntä, lattiamateriaali: laatta, seinämateriaali: laatta, lattialämmitys, mukavuuslämmitys asunnon sähköstä |
| Lattiamateriaali | parketti |
| Huoneistokohtainen varasto | Kyllä, Irtainvarasto |
| Vaatehuone | Kyllä |
| Vuokra / kk | 918 € |
| Vuokravakuus | 918 € |
| Sopimuksen tyyppi | Toistaiseksi voimassaoleva, vuokrasopimus voi päättyä aikaisintaan 12 kuukauden päästä ilman sopimussakkoa |
| Kampanjatieto | Ensimmäisen kuukauden vuokra 0 €. Etu on voimassa 31.3.2026 mennessä allekirjoitettuihin vuokrasopimuksiin. Etu edellyttää 12 kk sitoutumista. |
| Vesimaksu | 24 €/hlö/kk |
| Uudiskohde | Ei |
| Taloyhtiön nimi | Aapramintie 14 - Asunto Oy Vantaan Vuorikilta |
| Rakennuksen tyyppi | ASUINKERROSTALO |
| Rakennusvuosi | 2015 |
| Huoneistojen lukumäärä | 13 |
| Kerroksia | 4 |
| Hissi | Kyllä |
| Energialuokka | C2013 |
| Energiatodistus | Ei |
| Antennityyppi | Kaapelitelevisiojärjestelmä |
| Autopaikat | Autopaikkoja hallinnoi ulkopuolinen toimija, vuokrattava erikseen |
| Sähköauton latauspiste | Ei. |
| Lisätiedot | lemmikit sallittu |
Sonja Gupta
Vuokrausneuvottelija
Puh. +358444946420
sonja.gupta@inna.fiINNA Asuntovuokraus, Pääkaupunkiseutu