Asunnossa:

  • Parveke
  • Sauna
  • Laajakaista kuuluu vuokraan
  • Huoneistokohtainen varasto
  • Astianpesukone
  • Lemmikit sallittu

Talossa:

  • Kerroksia 3
  • Hissi
  • Rakennusvuosi 2013

Asunnon kuvaus

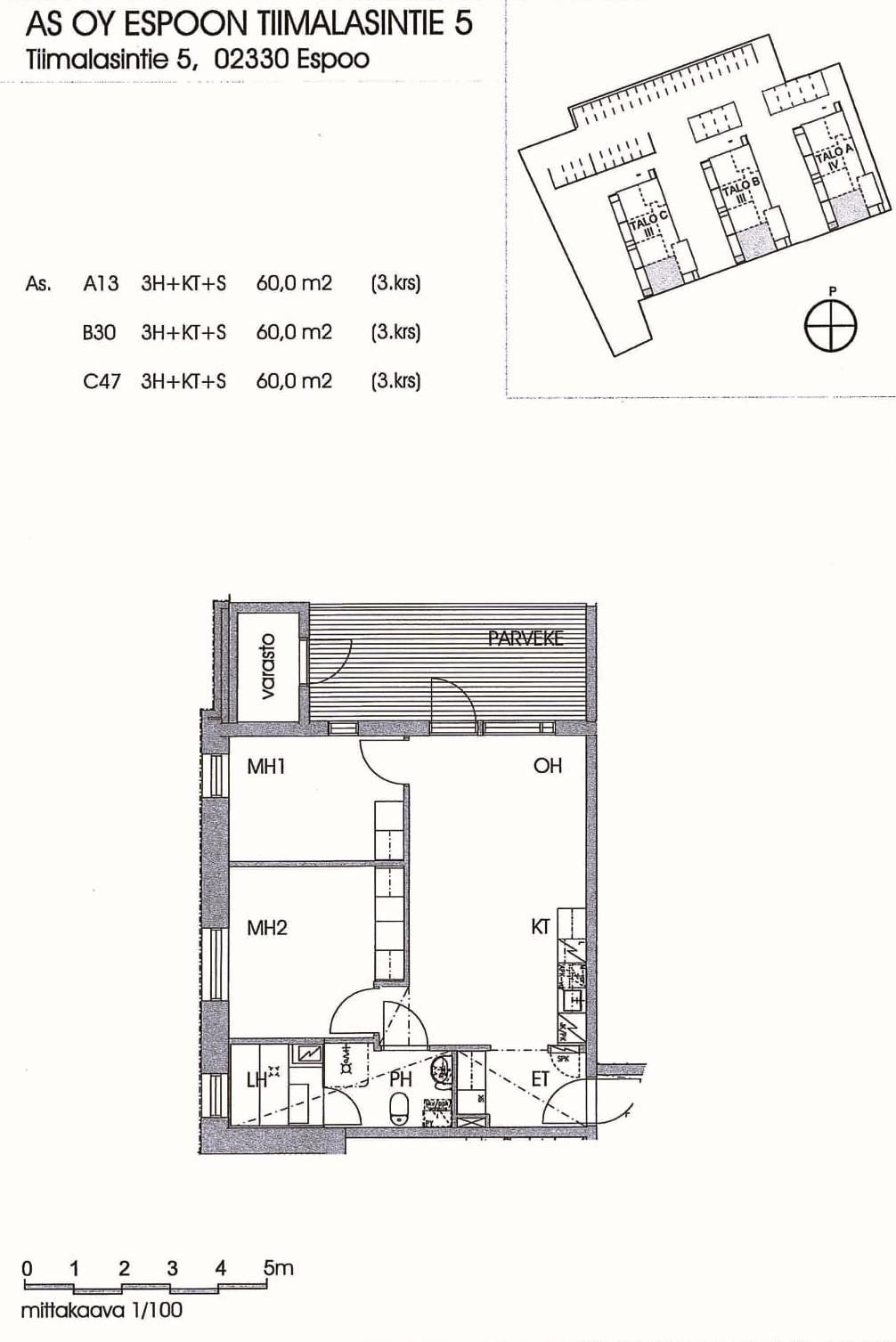
Tämä valoisa ja viihtyisä koti hurmaa vaaleilla pintamateriaaleillaan sekä toimivalla pohjaratkaisullaan. Avoin olohuone-keittiöyhdistelmä luo avaran ja valoisan tunnelman. Olohuoneesta on käynti tilavalle, huoneiston levyiselle parvekkeelle, jossa on myös oma varasto. Huomioithan, että parveke ei ole lasitettu. Modernissa, laatoitetussa kylpyhuoneessa on allaskaappi, peilikaappi sekä pyykkikaappi, jotka tuovat käytännöllisyyttä ja lisäävät säilytystilaa. Oman saunan löylyistä voit nauttia juuri sinulle sopivaan aikaan – luonnonvaloa tilaan tuo ikkuna. Keittiö on varusteltu jääkaappipakastimella, astianpesukoneella ja keraamisella liedellä, jotka tekevät arjesta sujuvaa. Asunnon seinäpinnat ovat valkoiset ja lattiassa on laminaatti. Makuuhuoneissa on säilytystilaa, mikä lisää asumismukavuutta. Lemmikit ovat tervetulleita! Huom! Kuvat ovat vastaavanlaisesta asunnosta, ja näkymät saattavat vaihdella. Kuvista poiketen parvekkeelle on käynti olohuoneesta. Kiinnostuitko? Voit täyttää asuntohakemuksen asuntoilmoitukselta verkkosivuiltamme. Hakemus ei sido sinua mihinkään. Olemme sinuun yhteydessä, mikäli voimme tarjota asuntoa sinulle. Asunnonhakuun liittyvissä kysymyksissä voitte olla yhteydessä asiakaspalveluumme, puh. 030 609 5555 tai asuntovuo

Asunnon tiedot

KatuosoiteTiimalasintie 5 B 30
Pinta-ala60 m²
KaupunkiEspoo
KaupunginosaSaunalahti
Kerros3/3
Kuntohyvä
Huoneiston vapautuminenVapautumassa 04.05.26
SaunaKyllä
Parvekkeen tiedotKyllä
Lemmikit sallittuKyllä
Muut ehdotAsukkaan vastuulla ottaa oma kotivakuutus. Vuokralainen tekee oman sähkösopimuksen.
Lisätiedotsavuton

Asunnon varustelu

Keittiön varusteluliesi, lieden selite: keraaminen, astianpesukone, astianpesukoneen leveys: 60cm, jää-pakastinkaappi
Kylpyhuoneen varustelupeilikaappi, pesukoneliitäntä, lattiamateriaali: laatta, seinämateriaali: laatta, lattialämmitys
Lattiamateriaalilaminaatti
Huoneistokohtainen varastoKyllä, Varasto sijaitsee asunnon parvekkeella
VaatehuoneEi

Hinta ja kustannukset

Vuokra / kk1035 €
Vuokravakuus350 €
Sopimuksen tyyppiToistaiseksi voimassaoleva
Vesimaksu24 €/hlö/kk

Taloyhtiön tiedot

UudiskohdeEi
Taloyhtiön nimiTiimalasintie 5 - As Oy Espoon Tiimalasintie 5
Rakennuksen tyyppiASUINKERROSTALO
Rakennusvuosi2013
Huoneistojen lukumäärä51
Kerroksia3
HissiKyllä
EnergialuokkaE2013
EnergiatodistusEi
AutopaikatAutopaikkoja hallinnoi ulkopuolinen toimija, vuokrattava erikseen
Sähköauton latauspisteEi.
Yhteiset tilatulkoiluvälinevarasto
Lisätiedotlemmikit sallittu

Sijainti kartalla

Oletko kiinnostunut tästä asunnosta?

Kohdetta välittää:

Taina Mertala

asuntovuokrauspalvelut

taina.mertala@inna.fi

INNA Asuntovuokraus, Pääkaupunkiseutu