Vantaa, Simonkylä

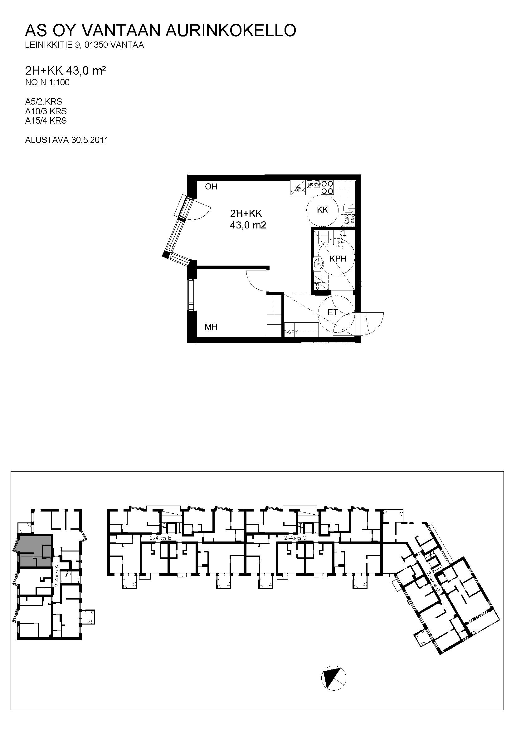
Leinikkitie 9 A 15

2h, kk, 43

770 €/kk

Vuokravakuus 350 € / 770 € sopimustyypistä riippuen

Asunnossa:

  • Parveke
  • Laajakaista kuuluu vuokraan
  • Huoneistokohtainen varasto
  • Astianpesukone
  • Lemmikit sallittu

Talossa:

  • Kerroksia 4
  • Hissi
  • Sauna
  • Rakennusvuosi 2012

Asunnon kuvaus

Valoisa ja toimivapohjainen kaksio ranskalaisella parvekkeella – kolmannen kerroksen koti! Tervetuloa tutustumaan tähän viihtyisään ja valoisan pohjaratkaisun omaavaan kaksioon, joka sijaitsee talon neljännessä kerroksessa! Tämä koti hurmaa selkeydellään ja arjen toimivuutta tukevilla ratkaisuillaan. Avara ja valoisa olohuone toimii kodin sydämenä – suuret ikkunat tuovat tilaan runsaasti luonnonvaloa, ja ranskalainen parveke lisää avaruuden tuntua. Keittiö on käytännöllisesti suunniteltu ja tarjoaa hyvin säilytys- ja työskentelytilaa niin arkikokkailuun kuin viikonlopun herkkuihin. Makuuhuone tarjoaa rauhallisen paikan levätä, ja tilava vaatekaappi auttaa pitämään kodin järjestyksessä. Kylpyhuoneessa on paikka pyykinpesukoneelle ja kaikki tarpeellinen arjen sujuvuuden takaamiseksi. Tervetuloa ihastumaan – tämä voi olla uusi kotisi! Huom! Kuvat ovat vastaavanlaisesta asunnosta Kiinnostuitko? Voit täyttää asuntohakemuksen asuntoilmoitukselta verkkosivuiltamme. Hakemus ei sido sinua mihinkään. Olemme sinuun yhteydessä, mikäli voimme tarjota asuntoa sinulle. Asunnonhakuun liittyvissä kysymyksissä voitte olla yhteydessä vuokravälittäjään etunimi.sukunimi@inna.fi tai asiakaspalveluumme, puh. 030 609 5555 tai asuntovuokraus@inna.fi

Asunnon tiedot

KatuosoiteLeinikkitie 9 A 15
Pinta-ala43 m²
KaupunkiVantaa
KaupunginosaSimonkylä
Kerros4/4
Kuntohyvä
Huoneiston vapautuminenVapautumassa 02.04.26
SaunaEi
Parvekkeen tiedotKyllä, ranskalainen
Lemmikit sallittuKyllä
Muut ehdotAsukkaan vastuulla ottaa oma kotivakuutus. Vuokralainen tekee oman sähkösopimuksen.
Lisätiedotsavuton

Asunnon varustelu

Keittiön varusteluliesi, astianpesukone, jää-pakastinkaappi
Kylpyhuoneen varustelupeilikaappi, pesukoneliitäntä, lattiamateriaali: laatta, seinämateriaali: laatta, lattialämmitys, mukavuuslämmitys
Lattiamateriaalilaminaatti
Huoneistokohtainen varastoKyllä, Irtaimistovarasto
VaatehuoneEi
LisätiedotSavuton huoneisto

Hinta ja kustannukset

Vuokra / kk770 €
Vuokravakuus 350 € / 770 € sopimustyypistä riippuen
Sopimuksen tyyppiToistaiseksi voimassaoleva tai toistaiseksi voimassaoleva, vuokrasopimus voi päättyä aikaisintaan 12 kuukauden päästä ilman sopimussakkoa
Vesimaksu24 €/hlö/kk

Taloyhtiön tiedot

UudiskohdeEi
Taloyhtiön nimiLeinikkitie 9 -Asunto Oy Vantaan Aurinkokello
Rakennuksen tyyppiASUINKERROSTALO
Rakennusvuosi2012
Huoneistojen lukumäärä76
Kerroksia4
HissiKyllä
EnergialuokkaB 2007
EnergiatodistusEi
AntennityyppiKaapelitelevisiojärjestelmä
AutopaikatAutopaikkoja hallinnoi ulkopuolinen toimija, vuokrattava erikseen
Sähköauton latauspisteEi.
Yhteiset tilatsauna
Lisätiedotsavuton talo, lemmikit sallittu

Sijainti kartalla

Kohdetta välittää:

Kairit Eenmaa

Vuokravälittäjä

Puh. +358447474855

Kairit.Eenmaa@inna.fi

INNA Asuntovuokraus, Pääkaupunkiseutu