Tervetuloa uusille verkkosivuillemme! Retta Asuntovuokraus on nyt INNA Asuntovuokraus.
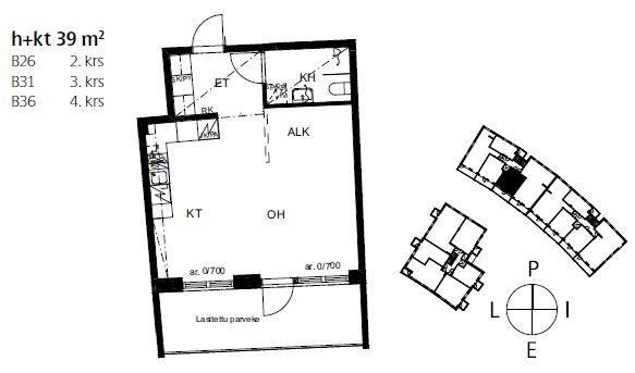
Valoisa reilunkokoinen toisen kerroksen yksiö etsii uutta asukasta. Asunto sijaitsee rauhallisella ja vehreällä alueella Helsingin Kuninkaantammessa. Asunnossa on toimiva pohjaratkaisu, sekä modernit kaluste- ja materiaalivalinnat. Lasitettu parveke lisää asumisviihtyvyyttä ja keittiöstä löytyy astianpesukone helpottamaan arjen askareita. Lemmikit ovat tervetulleita. Kysy vuokrattavista autopaikoista lisää välittäjältä. Kiinnostuitko? Voit täyttää asuntohakemuksen asuntoilmoitukselta verkkosivuiltamme. Hakemus ei sido sinua mihinkään. Olemme sinuun yhteydessä, mikäli voimme tarjota asuntoa sinulle. Asunnonhakuun liittyvissä kysymyksissä voitte olla yhteydessä asiakaspalveluumme, puh. 030 609 5555 tai asuntovuokraus@inna.fi
| Katuosoite | Taidemaalarinkatu 10 B 26 |
| Pinta-ala | 39 m² |
| Kaupunki | Helsinki |
| Kaupunginosa | Kuninkaantammi |
| Kerros | 2/0 |
| Kunto | hyvä |
| Huoneiston vapautuminen | Heti vapaa |
| Sauna | Ei |
| Parvekkeen tiedot | Kyllä, lasitettu |
| Lemmikit sallittu | Kyllä |
| Muut ehdot | Asukkaan vastuulla ottaa oma kotivakuutus. Vuokralainen tekee oman sähkösopimuksen. |
| Lisätiedot | savuton |
| Keittiön varustelu | liesi, lieden selite: keraaminen, astianpesukone, jää-pakastinkaappi |
| Kylpyhuoneen varustelu | peilikaappi, pesukoneliitäntä, lattiamateriaali: laatta, seinämateriaali: laatta, lattialämmitys, mukavuuslattialämmitys asukkaan sähköstä |
| Lattiamateriaali | parketti |
| Huoneistokohtainen varasto | Kyllä, Irtainvarasto |
| Vaatehuone | Ei |
| Vuokra / kk | 773 € |
| Vuokravakuus | 773 € |
| Sopimuksen tyyppi | Toistaiseksi voimassaoleva, vuokrasopimus voi päättyä aikaisintaan 6 kuukauden päästä ilman sopimussakkoa |
| Vesimaksu | 24 €/hlö/kk |
| Uudiskohde | Ei |
| Taloyhtiön nimi | Taidemaalarinkatu 10 - Asunto Oy Helsingin Venny |
| Rakennuksen tyyppi | ASUINKERROSTALO |
| Rakennusvuosi | 2017 |
| Huoneistojen lukumäärä | 10 |
| Kerroksia | 0 |
| Hissi | Kyllä |
| Energialuokka | C 2013 |
| Energiatodistus | Ei |
| Autopaikat | Autopaikkoja hallinnoi ulkopuolinen toimija, vuokrattava erikseen |
| Sähköauton latauspiste | Ei. |
| Yhteiset tilat | kerhohuone, ulkoiluvälinevarasto, sauna, pesutupa |
| Lisätiedot | lemmikit sallittu |
Sonja Gupta
Vuokrausneuvottelija
Puh. +358444946420
sonja.gupta@inna.fiINNA Asuntovuokraus, Pääkaupunkiseutu