









Vaalea neljännen kerroksen koti, jossa tyylikäs ja toiminnallinen avokeittiö, laatoitettu kylpyhuone lattialämmityksellä sekä lasitettu parveke. Lemmikit ovat sallittuja. Kysy vuokrattavista autopaikoista lisää välittäjältä! Kiinnostuitko? Voit täyttää asuntohakemuksen asuntoilmoitukselta verkkosivuiltamme. Hakemus ei sido sinua mihinkään. Olemme sinuun yhteydessä, mikäli voimme tarjota asuntoa sinulle. Asunnonhakuun liittyvissä kysymyksissä voitte olla yhteydessä asiakaspalveluumme, puh. 030 609 5555 tai asuntovuokraus@inna.fi
| Katuosoite | Vähäntuvantie 7a B 51 |
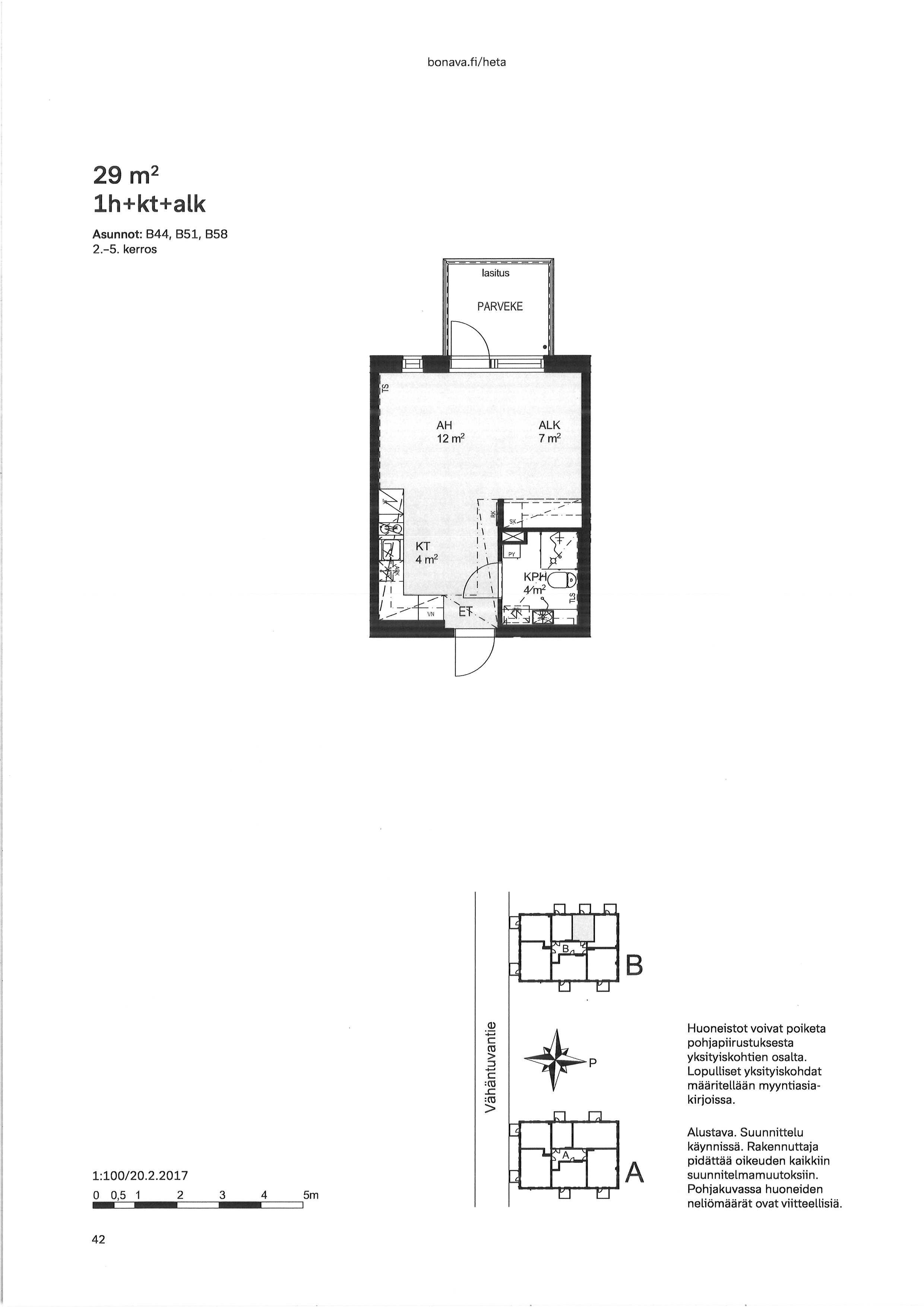
| Pinta-ala | 29 m² |
| Kaupunki | Helsinki |
| Kaupunginosa | Konala |
| Kerros | 4/6 |
| Kunto | hyvä |
| Huoneiston vapautuminen | Heti vapaa |
| Sauna | Ei |
| Parvekkeen tiedot | Kyllä, lasitettu |
| Lemmikit sallittu | Kyllä |
| Muut ehdot | Asukkaan vastuulla ottaa oma kotivakuutus. Vuokralainen tekee oman sähkösopimuksen. |
| Lisätiedot | savuton |
| Keittiön varustelu | liesi, lieden tyyppi: induktio, astianpesukone, jää-pakastinkaappi |
| Kylpyhuoneen varustelu | peilikaappi, pesukoneliitäntä, lattiamateriaali: laatta, seinämateriaali: laatta, lattialämmitys, asunnon sähköstä |
| Lattiamateriaali | parketti |
| Huoneistokohtainen varasto | Kyllä, Irtaimistovarasto |
| Vaatehuone | Ei |
| Vuokra / kk | 791 € |
| Vuokravakuus | 791 € |
| Sopimuksen tyyppi | Toistaiseksi voimassaoleva, vuokrasopimus voi päättyä aikaisintaan 12 kuukauden päästä ilman sopimussakkoa |
| Kampanjatieto | Ensimmäisen kuukauden vuokra 0 €. Etu on voimassa 31.5.2026 mennessä allekirjoitettuihin vuokrasopimuksiin. Etu edellyttää 12 kk sitoutumista. |
| Vesimaksu | 24 €/hlö/kk |
| Uudiskohde | Ei |
| Taloyhtiön nimi | Vähäntuvantie 7a - Asunto Oy Helsingin Vuorikummun Heta |
| Rakennuksen tyyppi | ASUINKERROSTALO |
| Rakennusvuosi | 2018 |
| Huoneistojen lukumäärä | 11 |
| Kerroksia | 6 |
| Hissi | Kyllä |
| Energialuokka | C2013 |
| Energiatodistus | Ei |
| Antennityyppi | Kaapelitelevisiojärjestelmä |
| Autopaikat | Autopaikkoja hallinnoi ulkopuolinen toimija, vuokrattava erikseen |
| Sähköauton latauspiste | Ei. |
| Yhteiset tilat | sauna |
| Lisätiedot | lemmikit sallittu |
Jonna Hyrylä
Vuokrausneuvottelija
Puh. +358401209249
Jonna.Hyryla@inna.fiINNA Asuntovuokraus, Pääkaupunkiseutu