Tampere, Kalkku

Kalkunvuorenkatu 24 A 9

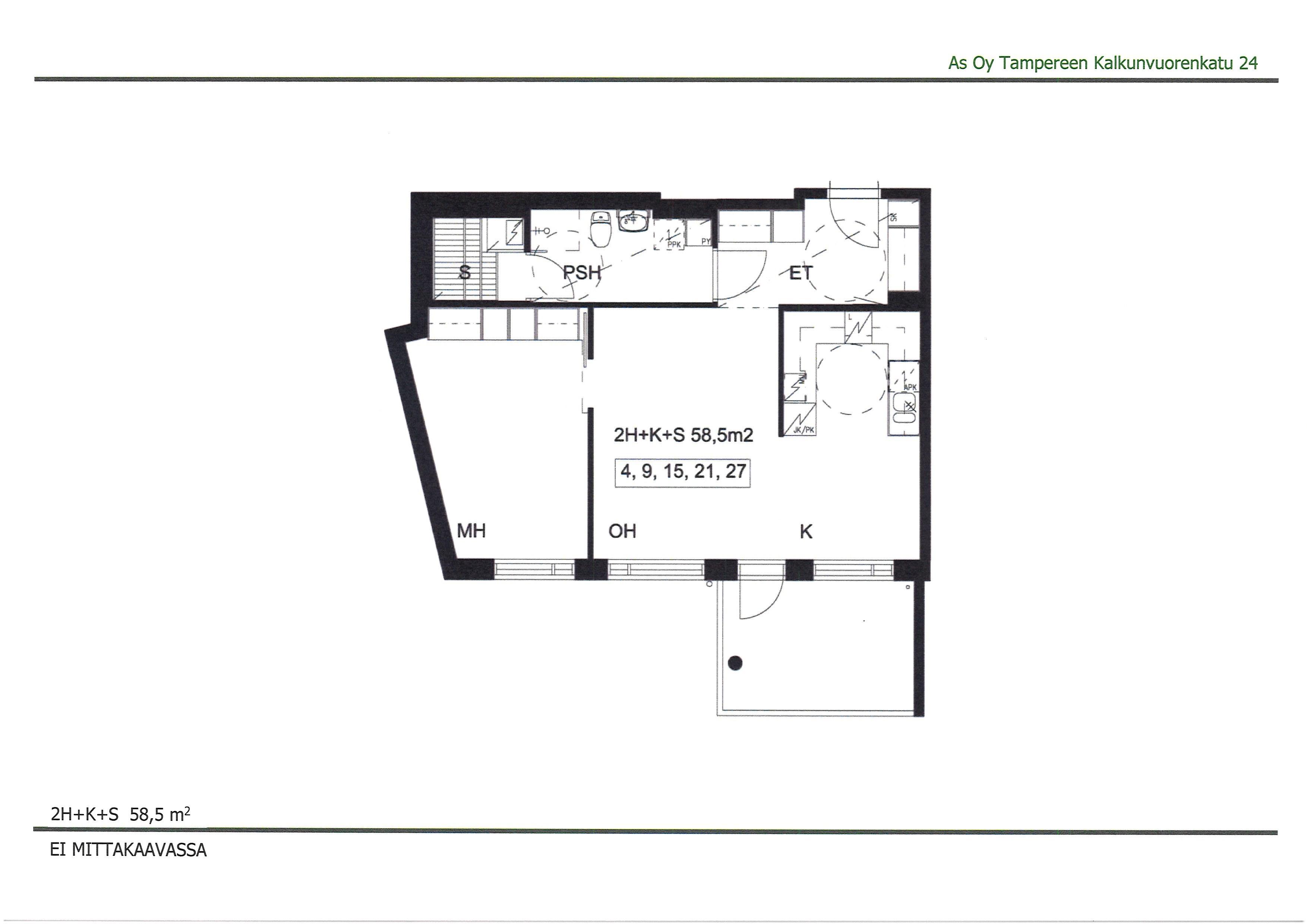
2h, kt, s, 58.5

845 €/kk

Vuokravakuus 0 € / 350 € sopimustyypistä riippuen

Asunnossa:

  • Parveke
  • Sauna
  • Laajakaista kuuluu vuokraan
  • Huoneistokohtainen varasto
  • Astianpesukone
  • Lemmikit sallittu

Talossa:

  • Kerroksia 5
  • Hissi
  • Rakennusvuosi 2009

Asunnon kuvaus

4.5.2026 vapautuva tilava kaksio rauhalliselta, luonnonläheiseltä alueelta Kalkusta. Tässä asunnossa kiva pohjakuva, jossa keittiö omassa rauhassaan, mutta yhdistyen kuitenkin luontevasti olohuoneeseen. Arkea helpottamassa astianpesukone ja asumismukavuutta lisäämässä oma sauna sekä lasitettu parveke. Täytäthän ensimmäisenä asuntohakemuksen osoitteessa asunnot.inna.fi. Kiitos!

Asunnon tiedot

KatuosoiteKalkunvuorenkatu 24 A 9
Pinta-ala58.5 m²
KaupunkiTampere
KaupunginosaKalkku
Kerros2/5
Huoneiston vapautuminenVapautumassa 04.05.26
SaunaKyllä
Parvekkeen tiedotKyllä, lasitettu
Lemmikit sallittuKyllä
Muut ehdotAsukkaan vastuulla ottaa oma kotivakuutus. Vuokralainen tekee oman sähkösopimuksen.
Lisätiedotsavuton

Asunnon varustelu

Keittiön varusteluliesi, astianpesukone, astianpesukoneen leveys: 60cm, jää-pakastinkaappi
Kylpyhuoneen varustelupeilikaappi, pesukoneliitäntä, lattiamateriaali: laatta, seinämateriaali: laatta, lattialämmitys
Lattiamateriaalimuovimatto
Huoneistokohtainen varastoKyllä, irtaimistovarasto
VaatehuoneEi

Hinta ja kustannukset

Vuokra / kk845 €
Vuokravakuus 0 € / 350 € sopimustyypistä riippuen
Sopimuksen tyyppiToistaiseksi voimassaoleva tai toistaiseksi voimassaoleva, vuokrasopimus voi päättyä aikaisintaan 12 kuukauden päästä ilman sopimussakkoa
Vesimaksu27 €/hlö/kk

Taloyhtiön tiedot

UudiskohdeEi
Taloyhtiön nimiKalkunvuorenkatu 24 - Asunto Oy Tampereen Kalkunvuorenkatu 24
Rakennuksen tyyppiASUINKERROSTALO
Rakennusvuosi2009
Huoneistojen lukumäärä28
Kerroksia5
HissiKyllä
EnergialuokkaC2018
EnergiatodistusKyllä
AntennityyppiKaapelitelevisiojärjestelmä
AutopaikatAutopaikkoja hallinnoi ulkopuolinen toimija, vuokrattava erikseen
Sähköauton latauspisteEi.
Yhteiset tilatulkoiluvälinevarasto
Lisätiedotlemmikit sallittu

Sijainti kartalla

Kohdetta välittää:

Hannele Lähteenmäki

vuokravälittäjä

hannele.lahteenmaki@inna.fi

INNA Asuntovuokraus, Tampere

Puh. 030 609 5555