











Valoisa kulmahuoneisto ylimmästä kerroksesta! Tässä kodissa on useita ikkunoita olohuoneen ja avokeittiön yhteydessä, mikä tuo tilaan runsaasti luonnonvaloa ja avaruutta. Olohuoneesta on käynti tilavalle, huoneiston levyiselle lasitetulle parvekkeelle, joka tarjoaa viihtyisää lisätilaa ympäri vuoden. Keittiö on hyvin varusteltu: induktiotaso, kalusteuuni, astianpesukone sekä jääkaappi–pakastin. Ruokailutilaan mahtuu mainiosti ruokapöytä. Laatoitetussa kylpyhuoneessa on kääntyvät suihkuseinät sekä säilytystilaa peilikaapissa, allaslaatikostossa ja pyykkikaapissa. Lisäksi tilassa on varaus pyykinpesukoneelle. Eteisessä ja makuuhuoneessa on mukavasti säilytystilaa. Ilmoituksen kuvat ovat vastaavasta asunnosta. Huomioithan, että näkymät voivat vaihdella kerroksittain. Kiinnostuitko? Tämänkin kodin voit vuokrata verkkokaupastamme tai jättää hakemuksen asuntoilmoitukselta verkkosivuillamme. Asunnonhakuun liittyvissä kysymyksissä voitte olla yhteydessä asiakaspalveluumme, puh. 030 609 5555 tai asuntovuokraus@inna.fi
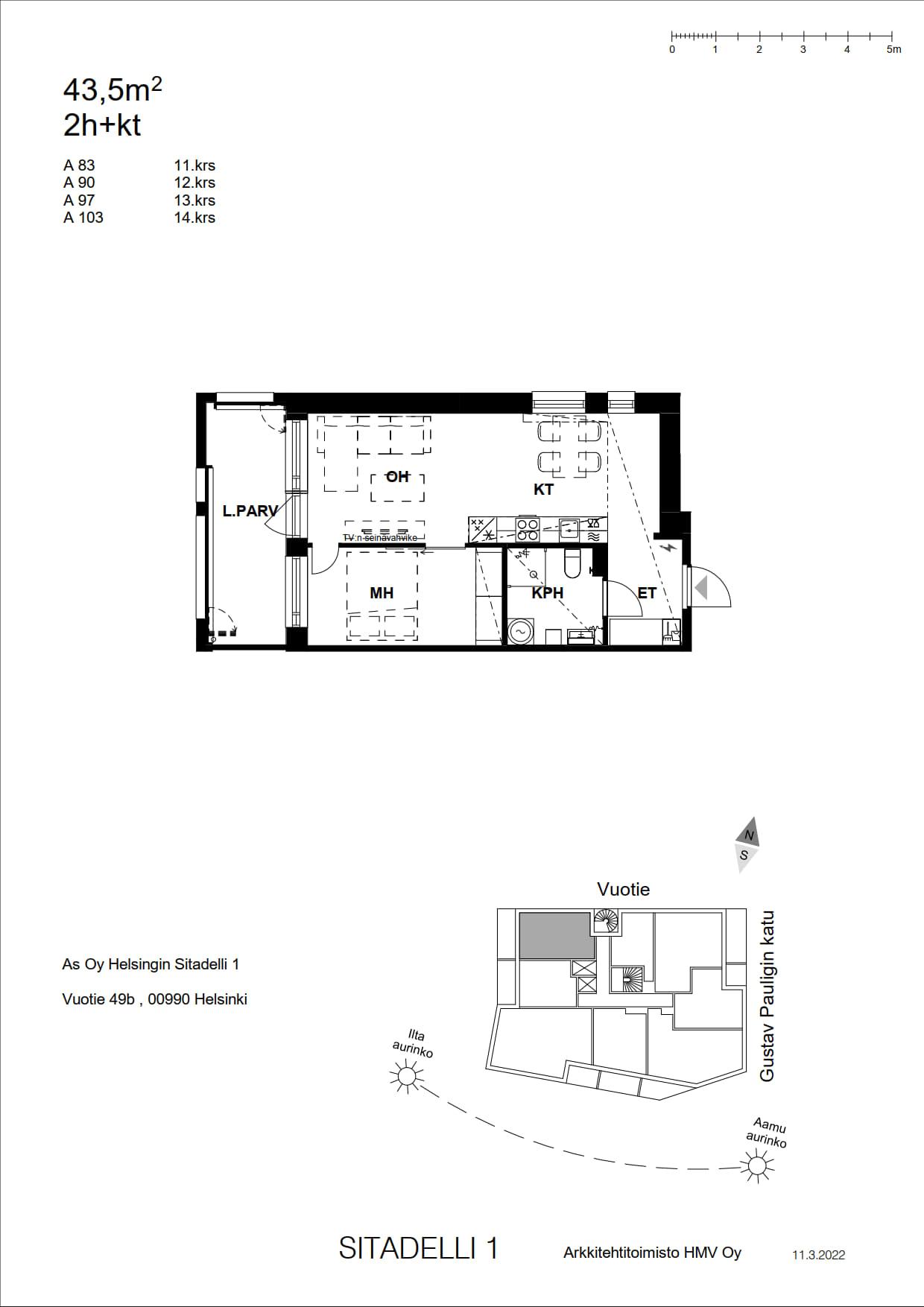
| Katuosoite | Vuotie 49b A 103 |
| Pinta-ala | 43.5 m² |
| Kaupunki | Helsinki |
| Kaupunginosa | Vuosaari |
| Kerros | 14/14 |
| Huoneiston vapautuminen | Vapautumassa 01.05.26 |
| Sauna | Ei |
| Parvekkeen tiedot | Kyllä, lasitettu |
| Lemmikit sallittu | Kyllä |
| Muut ehdot | Asukkaan vastuulla ottaa oma kotivakuutus. Vuokralainen tekee oman sähkösopimuksen. |
| Lisätiedot | savuton |
| Keittiön varustelu | liesi, astianpesukone, jää-pakastinkaappi |
| Kylpyhuoneen varustelu | peilikaappi, pesukoneliitäntä, lattiamateriaali: laatta, seinämateriaali: laatta, lattialämmitys |
| Lattiamateriaali | laminaatti |
| Huoneistokohtainen varasto | Kyllä, irtainvarasto |
| Vaatehuone | Ei |
| Vuokra / kk | 949 € |
| Vuokravakuus | 350 € / 350 € sopimustyypistä riippuen |
| Sopimuksen tyyppi | Toistaiseksi voimassaoleva tai toistaiseksi voimassaoleva, vuokrasopimus voi päättyä aikaisintaan 12 kuukauden päästä ilman sopimussakkoa |
| Kampanjatieto | Ensimmäinen kuukausi 0e. Etu edellyttää 12kk sitoutumista asumiseen. |
| Vesimaksu | 27 €/hlö/kk |
| Uudiskohde | Kyllä |
| Taloyhtiön nimi | Vuotie 49b - Asunto Oy Helsingin Sitadelli 1 |
| Rakennuksen tyyppi | ASUINKERROSTALO |
| Rakennusvuosi | 2022 |
| Huoneistojen lukumäärä | 110 |
| Kerroksia | 14 |
| Hissi | Kyllä |
| Energialuokka | A 2018 |
| Energiatodistus | Kyllä |
| Autopaikat | Autopaikkoja hallinnoi ulkopuolinen toimija, vuokrattava erikseen |
| Sähköauton latauspiste | Ei. |
| Yhteiset tilat | kerhohuone, ulkoiluvälinevarasto, pesutupa |
| Lisätiedot | esteetön |
Veera Wollsten
Vuokrausneuvottelija
Puh. +358306095579
Veera.Wollsten@inna.fiINNA Asuntovuokraus, Pääkaupunkiseutu