Asunnossa:

  • Laajakaista kuuluu vuokraan
  • Huoneistokohtainen varasto
  • Vaatehuone
  • Astianpesukone
  • Lemmikit sallittu
  • Virtuaaliesittely

Talossa:

  • Kerroksia 4
  • Hissi
  • Sauna
  • Rakennusvuosi 2020

Asunnon kuvaus

Tyylikäs toisen kerroksen koti, jossa ranskalainen parveke, vaatehuone ja keittiössä integroidut laadukkaat kodinkoneet. Asukkaiden käytössä pihasauna, ulkoiluvälinevarasto, irtaimistovarastot sekä smartpost-automaatti. Kysy vuokrattavista autopaikoista lisää välittäjältä! Kiinnostuitko? Voit täyttää asuntohakemuksen asuntoilmoitukselta verkkosivuiltamme. Hakemus ei sido sinua mihinkään. Olemme sinuun yhteydessä, mikäli voimme tarjota asuntoa sinulle. Asunnonhakuun liittyvissä kysymyksissä voitte olla yhteydessä asiakaspalveluumme, puh. 030 609 5555 tai asuntovuokraus@inna.fi

Asunnon tiedot

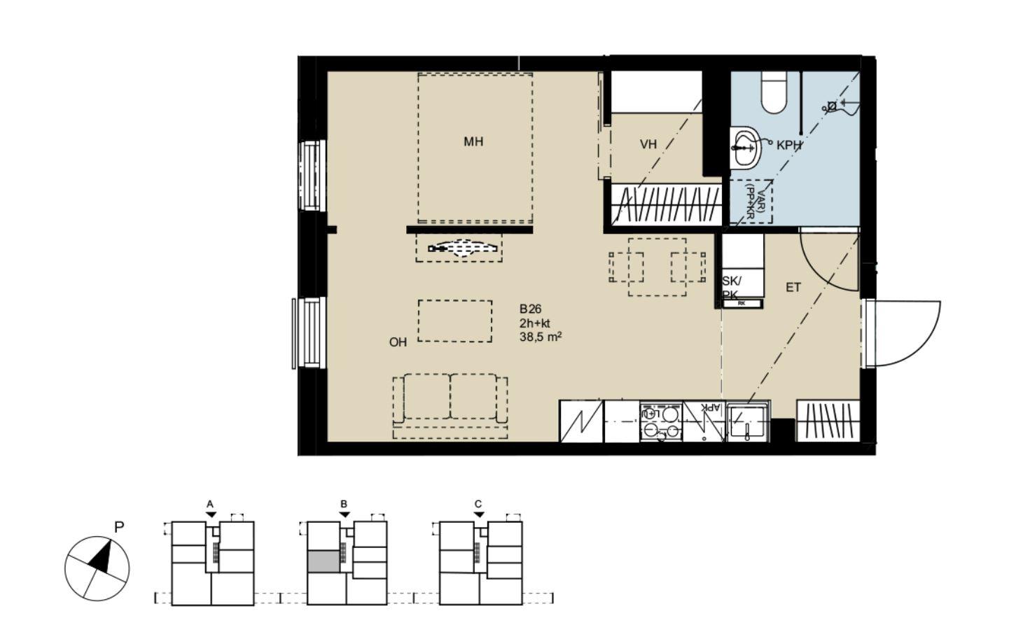
KatuosoitePeuraniitty 1 B 33
Pinta-ala38.5 m²
KaupunkiEspoo
KaupunginosaSepänkylä
Kerros2/4
Kuntohyvä
Huoneiston vapautuminenHeti vapaa
SaunaEi
Parvekkeen tiedotEi, ranskalainen parveke
VirtuaaliesittelyKyllä
Lemmikit sallittuKyllä
Muut ehdotAsukkaan vastuulla ottaa oma kotivakuutus. Vuokralainen tekee oman sähkösopimuksen.
Lisätiedotsavuton

Asunnon varustelu

Keittiön varusteluliesi, astianpesukone, jää-pakastinkaappi
Kylpyhuoneen varustelupeilikaappi, pesukoneliitäntä, lattiamateriaali: laatta, seinämateriaali: laatta, lattialämmitys, mukavuuslattialämmitys asunnon sähköstä
Lattiamateriaaliparketti
Huoneistokohtainen varastoKyllä, Irtaimistovarasto
VaatehuoneKyllä

Hinta ja kustannukset

Vuokra / kk822 €
Vuokravakuus822 €
Sopimuksen tyyppiToistaiseksi voimassaoleva, vuokrasopimus voi päättyä aikaisintaan 6 kuukauden päästä ilman sopimussakkoa
Vesimaksu24 €/hlö/kk

Taloyhtiön tiedot

UudiskohdeEi
Taloyhtiön nimiPeuraniitty 1 - Asunto Oy Espoon Peurapuisto
Rakennuksen tyyppiASUINKERROSTALO
Rakennusvuosi2020
Huoneistojen lukumäärä12
Kerroksia4
HissiKyllä
EnergialuokkaB2018
EnergiatodistusEi
AntennityyppiKaapelitelevisiojärjestelmä
AutopaikatAutopaikkoja hallinnoi ulkopuolinen toimija, vuokrattava erikseen
Sähköauton latauspisteEi.
Yhteiset tilatsauna
Lisätiedotlemmikit sallittu

Sijainti kartalla

Kohdetta välittää:

Jonna Hyrylä

Vuokrausneuvottelija

Puh. +358401209249

Jonna.Hyryla@inna.fi

INNA Asuntovuokraus, Pääkaupunkiseutu