













1h, kt, parv, 28 m²
585 €/kk
Vuokravakuus 0 €
Vuokrattavana moderni 4. kerroksen parvekkeellinen yksiö Keravan Jaakkolassa. Uudenveroinen pikkukoti, jossa kauniit vaaleat pintamateriaalit sekä lattiamateriaalina kauttaaltaan vaaleasävyinen tammilaminaatti. Avokeittiössä moderni varustelutaso, mm. astianpesukone, induktioliesi ja erillisuuni. Tilavassa laatoitetussa kylpyhuoneessa paikkavaraus pesutornille sekä miellyttävä sähköinen mukavuuslattialämmitys. Tässä asunnossa pääset nauttimaan tilavasta lasitetusta parvekkeesta hienoin näkymin.
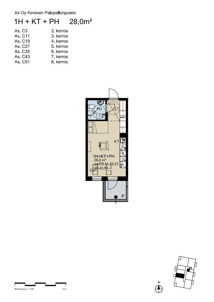
| Katuosoite | Palopellonkatu 6 C 19 |
| Pinta-ala | 28 m² |
| Kaupunki | Kerava |
| Kaupunginosa | Jaakkola |
| Kerros | 4/8 |
| Kunto | hyvä |
| Huoneiston vapautuminen | Heti vapaa |
| Sauna | Ei |
| Parvekkeen tiedot | Kyllä, lasitettu, ilmansuunta: länsi |
| Lemmikit sallittu | Kyllä |
| Muut ehdot | Asukkaan vastuulla ottaa oma kotivakuutus. Vuokralainen tekee oman sähkösopimuksen. |
| Lisätiedot | savuton |
| Keittiön varustelu | liesi, lieden tyyppi: induktio, astianpesukone, jää-pakastinkaappi, erillisuuni, liesikupu |
| Kylpyhuoneen varustelu | peilikaappi, pesukoneliitäntä, lattiamateriaali: laatta, seinämateriaali: laatta, lattialämmitys, sähköinen mukavuuslattialämmitys huoneiston sähköstä |
| Lattiamateriaali | laminaatti |
| Huoneistokohtainen varasto | Kyllä, lämmin irtaimistovarasto 1. kerroksessa |
| Vaatehuone | Ei |
| Lisätiedot | Savuton huoneisto |
| Vuokra / kk | 585 € |
| Vuokravakuus | 0 € |
| Sopimuksen tyyppi | Toistaiseksi voimassaoleva |
| Kampanjatieto | Ensimmäisen kuukauden vuokra 0€, etu edellyttää 12 kuukauden sitoutumista. |
| Vesimaksu | 27 €/hlö/kk |
| Vesimaksun lisätiedot | Vesi kulutuksen mukaan. Tasauslaskutus tehdään 2 kertaa vuodessa ja vuokrasopimuksen päättyessä. |
| Uudiskohde | Kyllä |
| Taloyhtiön nimi | Palopellonkatu 6 C - Asunto Oy Keravan Palopellonpuisto |
| Rakennuksen tyyppi | ASUINKERROSTALO |
| Rakennusvuosi | 2024 |
| Huoneistojen lukumäärä | 55 |
| Kerroksia | 8 |
| Hissi | Kyllä |
| Energialuokka | B2018 |
| Energiatodistus | Kyllä |
| Antennityyppi | Kaapelitelevisiojärjestelmä |
| Autopaikat | Autopaikkoja hallinnoi ulkopuolinen toimija, vuokrattava erikseen |
| Sähköauton latauspiste | Ei. |
| Yhteiset tilat | kuivaushuone, ulkoiluvälinevarasto, sauna |
| Lisätiedot | savuton talo, lemmikit sallittu |
Noora Kostiainen
Vuokrausneuvottelija
Noora.Kostiainen@inna.fiINNA Asuntovuokraus, Hyvinkää
Puh. 030 609 5555