










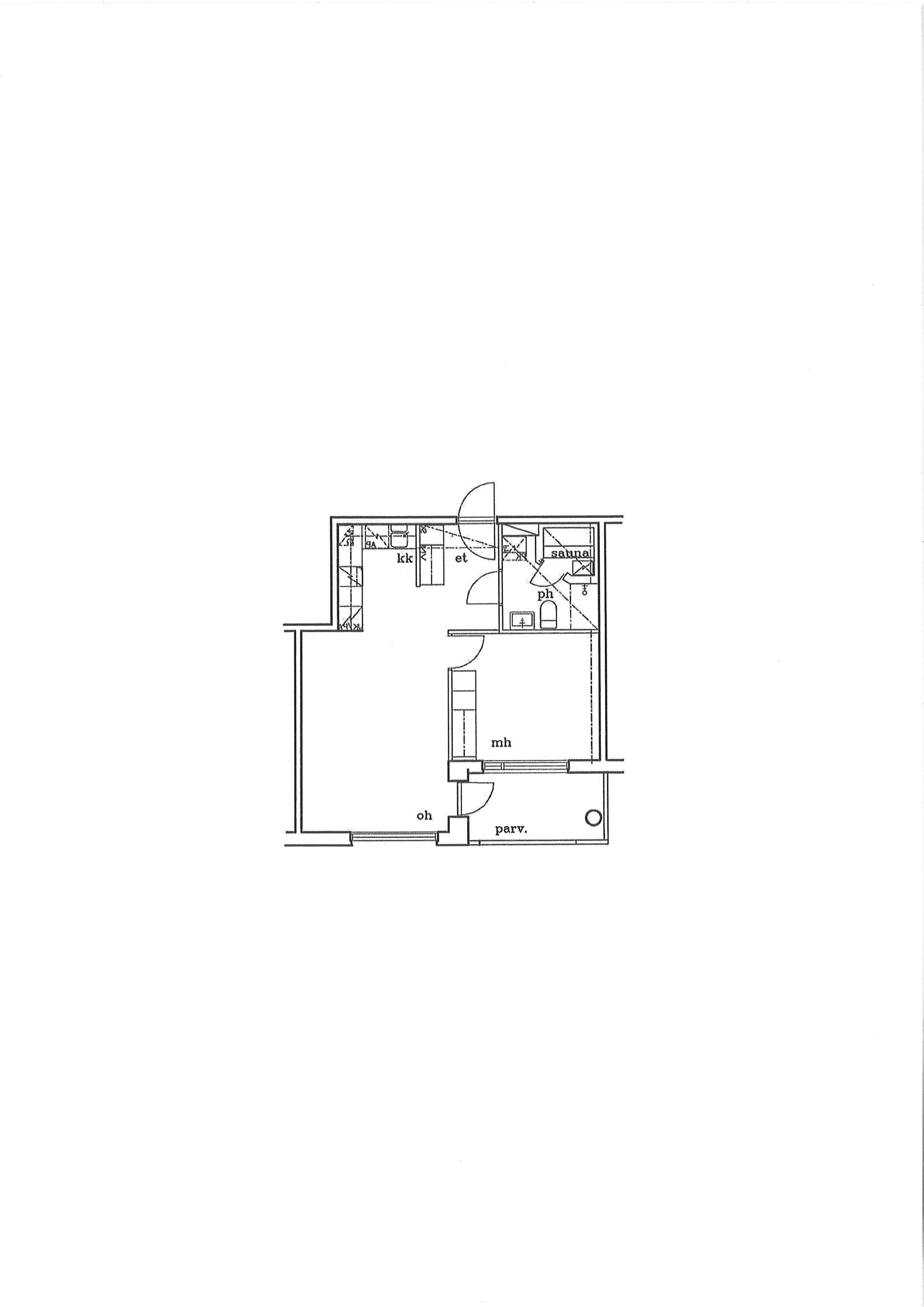
2h, kt, s, parv, 47 m²
705 €/kk
Vuokravakuus 705 €
1.6.2026 vapautuva hyväkuntoinen koti kivalla paikalla lähellä keskustan palveluita, opiskelupaikkoja ja harrastusmahdollisuuksia. Lattiassa laminaattia, seinät maalattu. Saunallinen erittäin toimiva pohjaratkaisu. Vaaleat materiaalit, hyvät säilytystilat ja tilava parveke. Asunnossa ei saa tupakoida, mutta lemmikkieläimet ovat tervetulleita. Vesimaksu 24 e/hlö/kk ja oma sähkösopimus, toistaiseksi voimassa oleva vuokrasopimus. Vakuus 1 kk. Mahdollisuus vuokrata halli-tai tolppapaikka. Turun keskustan monipuoliset palvelut kävelyetäisyydellä.
| Katuosoite | Ketarantie 22 As 9 |
| Pinta-ala | 47 m² |
| Kaupunki | Turku |
| Kaupunginosa | Keskusta |
| Kerros | 1/0 |
| Huoneiston vapautuminen | Vapautumassa 01.06.26 |
| Sauna | Kyllä |
| Parvekkeen tiedot | Kyllä |
| Lemmikit sallittu | Kyllä |
| Muut ehdot | Asukkaan vastuulla ottaa oma kotivakuutus. Vuokralainen tekee oman sähkösopimuksen. |
| Lisätiedot | savuton |
| Keittiön varustelu | liesi, jää-pakastinkaappi |
| Kylpyhuoneen varustelu | pesukoneliitäntä, lattiamateriaali: muovimatto, seinämateriaali: laatta |
| Lattiamateriaali | laminaatti |
| Huoneistokohtainen varasto | Kyllä, häkkivarasto |
| Vaatehuone | Ei |
| Vuokra / kk | 705 € |
| Vuokravakuus | 705 € |
| Sopimuksen tyyppi | Toistaiseksi voimassaoleva |
| Vesimaksu | 24 €/hlö/kk |
| Uudiskohde | Ei |
| Taloyhtiön nimi | Ketarantie 22 - Asunto Oy Turun Joutsenpuisto 1 |
| Rakennuksen tyyppi | ASUINKERROSTALO |
| Rakennusvuosi | 2001 |
| Huoneistojen lukumäärä | 61 |
| Kerroksia | 0 |
| Hissi | Kyllä |
| Energialuokka | C*2013 |
| Energiatodistus | Ei |
| Autopaikat | Autopaikkoja hallinnoi ulkopuolinen toimija, vuokrattava erikseen |
| Sähköauton latauspiste | Ei. |
| Yhteiset tilat | ulkoiluvälinevarasto, pesutupa |
| Lisätiedot | lemmikit sallittu |