Tervetuloa uusille verkkosivuillemme! Retta Asuntovuokraus on nyt INNA Asuntovuokraus.
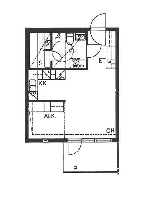
Tämä saunallinen ja parvekkeellinen yksiö löytyy Kuokkalan sillan kupeesta. Alkoviin mahtuu leveämpikin sänky, ja säilytystilaa löytyy alkovin yläkaapeista sekä eteisen puolelta. Ruokapöydän saa heti keittiön yhteyteen, jolloin olohuonetilan puolelle saa toteutettua esimerkiksi työpisteen sohvan ja tv-tason lisäksi. Ikkunoista ja parvekkeelta avautuu näkymä taloyhtiön sisäpihan suuntaan. Kiinnostuitko? Voit täyttää asuntohakemuksen asuntoilmoitukselta verkkosivuiltamme. Hakemus ei sido sinua mihinkään. Olemme sinuun yhteydessä, mikäli voimme tarjota asuntoa sinulle. Asunnonhakuun liittyvissä kysymyksissä voitte olla yhteydessä carita.alatalo@inna.fi tai asiakaspalveluumme, puh. 030 609 5555 tai asuntovuokraus@inna.fi
| Katuosoite | Lehtorannantie 20 A 22 |
| Pinta-ala | 36 m² |
| Kaupunki | Jyväskylä |
| Kaupunginosa | Ainola |
| Kerros | 4/6 |
| Kunto | hyvä |
| Huoneiston vapautuminen | Vapautumassa 02.03.26 |
| Sauna | Kyllä |
| Parvekkeen tiedot | Kyllä |
| Lemmikit sallittu | Kyllä |
| Muut ehdot | Asukkaan vastuulla ottaa oma kotivakuutus. Vuokralainen tekee oman sähkösopimuksen. |
| Lisätiedot | savuton |
| Keittiön varustelu | liesi, lieden tyyppi: keraaminen liesi, astianpesukone, jää-pakastinkaappi |
| Kylpyhuoneen varustelu | peilikaappi, pesukoneliitäntä, lattiamateriaali: laatta, seinämateriaali: laatta |
| Lattiamateriaali | laminaatti |
| Huoneistokohtainen varasto | Kyllä, irtaimistovarasto |
| Vaatehuone | Ei |
| Vuokra / kk | 655 € |
| Vuokravakuus | 250 € |
| Sopimuksen tyyppi | Toistaiseksi voimassaoleva |
| Vesimaksu | 22 €/hlö/kk |
| Uudiskohde | Ei |
| Taloyhtiön nimi | Lehtorannantie 20 - Jyväskylän Lehtorannantie 20 |
| Rakennuksen tyyppi | ASUINKERROSTALO |
| Rakennusvuosi | 1999 |
| Huoneistojen lukumäärä | 35 |
| Kerroksia | 6 |
| Hissi | Kyllä |
| Energialuokka | D2013 |
| Energiatodistus | Kyllä |
| Antennityyppi | Kaapelitelevisiojärjestelmä |
| Autopaikat | Autopaikkoja hallinnoi ulkopuolinen toimija, vuokrattava erikseen |
| Sähköauton latauspiste | Ei. |
| Lisätiedot | lemmikit sallittu |