Jyväskylä, Mannila

Liinaharjankatu 17 A 9

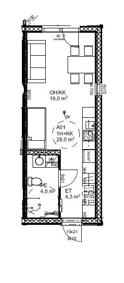
1h, kt, 28

535 €/kk

Vuokravakuus 350 € / 535 € sopimustyypistä riippuen

Asunnossa:

  • Parveke
  • Huoneistokohtainen varasto
  • Lemmikit sallittu

Talossa:

  • Rakennusvuosi 2016

Asunnon kuvaus

Mannilan mukavalta asuinalueelta löytyy tämä luhtitaloyksiö. Asunnon varustelutasoon kuuluu laminaattilattia, jääpakastinkaappi sekä kokonaan laatoitettu kylpyhuone pesukonevarauksin. Asunnossa on ranskalainen parveke, joten tuuletus onnistuu näppärästi. Eteisen kattoon asti ylettyvien peiliovien taakse on piilotettu mukava määrä säilytystilaa. Pieni taloyhtiö on suojaisalla sisäpiha-alueella, ja yhdessä talossa onkin vain 12 huoneistoa! Keskustaan on matkaa noin 4 kilometriä ja Palokan keskuksen kattaville palveluille noin 2 kilometriä. Kiinnostuitko? Voit täyttää asuntohakemuksen asuntoilmoitukselta verkkosivuiltamme. Hakemus ei sido sinua mihinkään. Olemme sinuun yhteydessä, mikäli voimme tarjota asuntoa sinulle. Asunnonhakuun liittyvissä kysymyksissä voitte olla yhteydessä carita.alatalo@inna.fi tai asiakaspalveluumme, puh. 030 609 5555 tai asuntovuokraus@inna.fi

Asunnon tiedot

KatuosoiteLiinaharjankatu 17 A 9
Pinta-ala28 m²
KaupunkiJyväskylä
KaupunginosaMannila
Kerros2/0
Kuntohyvä
Huoneiston vapautuminenVapautumassa 04.05.26
SaunaEi
Parvekkeen tiedotKyllä, ranskalainen parveke
Lemmikit sallittuKyllä
Muut ehdotAsukkaan vastuulla ottaa oma kotivakuutus. Vuokralainen tekee oman sähkösopimuksen.
Lisätiedotsavuton

Asunnon varustelu

Keittiön varusteluliesi, jää-pakastinkaappi
Kylpyhuoneen varustelupeilikaappi, pesukoneliitäntä, lattiamateriaali: laatta, seinämateriaali: laatta
Lattiamateriaalilaminaatti
Huoneistokohtainen varastoKyllä, viileä varasto pihalla erillisrakennuksessa
VaatehuoneEi
LisätiedotSavuton huoneisto

Hinta ja kustannukset

Vuokra / kk535 €
Vuokravakuus 350 € / 535 € sopimustyypistä riippuen
Sopimuksen tyyppiToistaiseksi voimassaoleva tai toistaiseksi voimassaoleva, vuokrasopimus voi päättyä aikaisintaan 12 kuukauden päästä ilman sopimussakkoa
Vesimaksu25 €/hlö/kk

Taloyhtiön tiedot

UudiskohdeEi
Taloyhtiön nimiA13 Liinaharjankatu 17 - Asunto Oy Jyväskylän Santelipuu
Rakennuksen tyyppiLUHTIKÄYTÄVÄKERROSTALO
Rakennusvuosi2016
Huoneistojen lukumäärä10
Kerroksia0
HissiEi
EnergialuokkaC2013
EnergiatodistusEi
AntennityyppiKaapelitelevisiojärjestelmä
AutopaikatAutopaikkoja hallinnoi ulkopuolinen toimija, vuokrattava erikseen
Sähköauton latauspisteEi.
Lisätiedotsavuton talo, lemmikit sallittu

Sijainti kartalla

Kohdetta välittää:

Carita Alatalo

Vuokravälittäjä

Puh. +358505696093

carita.alatalo@inna.fi

INNA Asuntovuokraus, Jyväskylä