

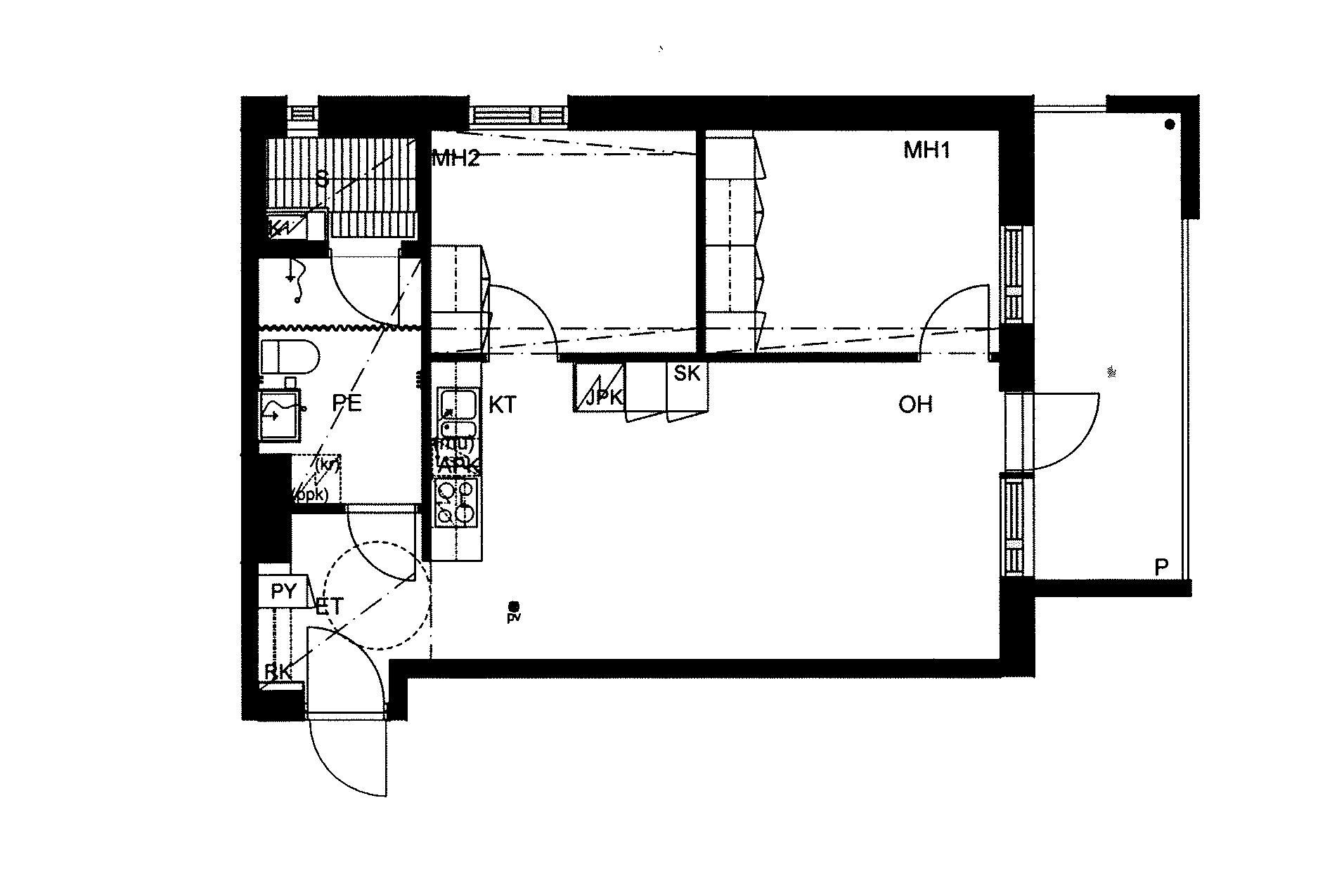
Tässä kolmiossa ei ole yhden yhtä hukkaneliötä. Tämä näppärä moderni kolmio omalla parvekkeella ja saunalla sopii moneen eri tilanteeseen. Toisesta makuuhuoneesta saa näppärästi lastenhuoneen, työhuoneen tai miksei vaikka harrastehuonetta. Keittiön ja olohuoneen ollessa samaa tilaa, voi sisustuksen toteuttaa monella eri tavalla. Keittiöstä löytyvä astianpesukone on monen perheen arjen pelastus. Äijälänrannan alueessa viehättää järven läheisyys, sekä mukavat ulkoilumahdollisuudet. Alueella on myös oma lähikauppansa. Tämä alue on monen eri ikäisten suosima. Kiinnostuitko? Voit täyttää asuntohakemuksen asuntoilmoitukselta verkkosivuiltamme. Hakemus ei sido sinua mihinkään. Olemme sinuun yhteydessä, mikäli voimme tarjota asuntoa sinulle. Asunnonhakuun liittyvissä kysymyksissä voitte olla yhteydessä asiakaspalveluumme, puh. 030 609 5555 tai asuntovuokraus@inna.fi Asuntohakemuksen voi jättää osoitteessa https://asunnot.inna.fi/
| Katuosoite | Ansaritie 5 A 37 |
| Pinta-ala | 57.5 m² |
| Kaupunki | Jyväskylä |
| Kaupunginosa | Äijälänranta |
| Kerros | 7/0 |
| Huoneiston vapautuminen | Heti vapaa |
| Sauna | Kyllä |
| Parvekkeen tiedot | Kyllä, lasitettu |
| Lemmikit sallittu | Kyllä |
| Muut ehdot | Asukkaan vastuulla ottaa oma kotivakuutus. Vuokralainen tekee oman sähkösopimuksen. |
| Lisätiedot | savuton |
| Keittiön varustelu | liesi, lieden tyyppi: keraaminen liesi, astianpesukone, jää-pakastinkaappi |
| Kylpyhuoneen varustelu | pesukoneliitäntä, lattiamateriaali: laatta, seinämateriaali: laatta, lattialämmitys, mukavuuslattialämmitys asukkaan sähköstä |
| Lattiamateriaali | laminaatti |
| Huoneistokohtainen varasto | Kyllä, sijaitsee sisääntulokerroksessa |
| Vaatehuone | Ei |
| Vuokra / kk | 864 € |
| Vuokravakuus | 864 € |
| Sopimuksen tyyppi | Toistaiseksi voimassaoleva, vuokrasopimus voi päättyä aikaisintaan 6 kuukauden päästä ilman sopimussakkoa |
| Kampanjatieto | Ensimmäisen täyden asumiskuukauden vuokra 0 €, edellyttää sitoutumista min. 12 kk asumiseen. |
| Vesimaksu | 24 €/hlö/kk |
| Uudiskohde | Ei |
| Taloyhtiön nimi | Ansaritie 5 - Asunto Oy Jyväskylän Kullervo |
| Rakennuksen tyyppi | ASUINKERROSTALO |
| Rakennusvuosi | 2015 |
| Huoneistojen lukumäärä | 19 |
| Kerroksia | 0 |
| Hissi | Kyllä |
| Energialuokka | C2013 |
| Energiatodistus | Ei |
| Antennityyppi | Kaapelitelevisiojärjestelmä |
| Autopaikat | Autopaikkoja hallinnoi ulkopuolinen toimija, vuokrattava erikseen |
| Sähköauton latauspiste | Ei. |
| Yhteiset tilat | ulkoiluvälinevarasto |
| Lisätiedot | lemmikit sallittu |