














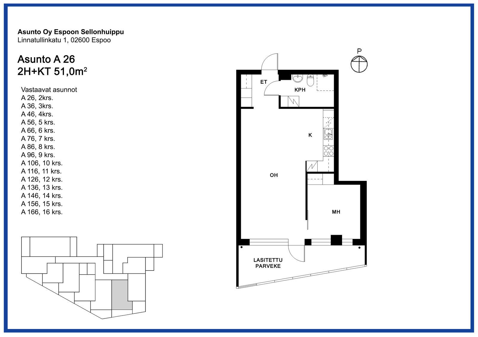
Tämän 14. kerroksen kodin sydän on avokeittiö, joka avautuu olohuoneeseen. Valo tulvii heti eteisestä, josta avautuu näkymä olohuoneen kautta suurelle parvekkeelle. Lasituksen ansiosta parveketta voi käyttää lisätilana ympäri vuoden. Tilavassa olohuoneessa on erinomainen työskentelytila etätyölle ja lisäksi tilaa jää sohvalle sekä suurelle ruokapöydälle. Laatoitetussa kylpyhuoneessa on käytännöllinen peilikaappi sekä varaus pyykinpesukoneelle. Makuuhuoneessa on peiliovikaapistot, jotka tarjoavat kätevästi säilytystilaa sekä liukuovi, joka mahdollistaa tehokkaan tilankäytön. Asunnon kuvat vastaavasta asunnosta, joten pieniä huoneistokohtaisia eroja saattaa esiintyä. Mikäli huoneistossa on rautaliesi, päivitetään se induktiolieteen viimeistään vuokrauksen yhteydessä. Autopaikkoja vuokrattavissa Selloparkista ja niitä on vapaana välittömästi. Lemmikit tervetulleita! Asuntoon voit valita joustavan toistaiseksi voimassa olevan sopimustyypin, jossa ensimmäinen mahdollinen irtisanomisaika on välittömästi 1 kk kuluttua sopimuksen aloituksesta tai hyödyntää kampanjaamme, jossa sitoutumalla asuntoon vuodeksi säästät yhden kokonaisen kuukauden vuokran! Kiinnostuitko? Voit täyttää asuntohakemuksen asuntoilmoitukselta verkkosivuiltamme. Hakemus ei sido sinua mihinkään. Olemme sinuun yhteydessä, mikäli voimme tarjota asuntoa sinulle. Asunnonhakuun liittyvissä kysymyksissä voitte olla yhteydessä asiakaspalveluumme, puh. 030 609 5555 tai asuntovuokraus@inna.fi
| Katuosoite | Linnatullinkatu 1 A 146 |
| Pinta-ala | 51 m² |
| Kaupunki | Espoo |
| Kaupunginosa | Leppävaara |
| Kerros | 14/20 |
| Kunto | hyvä |
| Huoneiston vapautuminen | Heti vapaa |
| Sauna | Ei |
| Parvekkeen tiedot | Kyllä, lasitettu, ilmansuunta: etelä |
| Lemmikit sallittu | Kyllä |
| Muut ehdot | Asukkaan vastuulla ottaa oma kotivakuutus. Vuokralainen tekee oman sähkösopimuksen. |
| Lisätiedot | savuton |
| Keittiön varustelu | liesi, lieden tyyppi: keraaminen liesi, astianpesukone, astianpesukoneen leveys: 60cm, jää-pakastinkaappi |
| Kylpyhuoneen varustelu | peilikaappi, pesukoneliitäntä, lattiamateriaali: laatta, seinämateriaali: laatta, lattialämmitys |
| Lattiamateriaali | laminaatti |
| Huoneistokohtainen varasto | Kyllä, irtainvarasto |
| Vaatehuone | Ei |
| Vuokra / kk | 1095 € |
| Vuokravakuus | 350 € |
| Sopimuksen tyyppi | Toistaiseksi voimassaoleva, vuokrasopimus voi päättyä aikaisintaan 12 kuukauden päästä ilman sopimussakkoa |
| Kampanjatieto | Ensimmäisen kokonaisen kuukauden vuokra 0€. Vuokraedun saaminen edellyttää 12 kuukauden sitoutumista asuntoon. Etu voimassa uusiin vuokrasopimuksiin. Ei koske käyttökorvauksia (autopaikka, vesimaksu) |
| Vesimaksu | 20 €/hlö/kk |
| Uudiskohde | Ei |
| Taloyhtiön nimi | Linnatullinkatu 1 - Asunto Oy Espoon Sellonhuippu |
| Rakennuksen tyyppi | ASUINKERROSTALO |
| Rakennusvuosi | 2011 |
| Huoneistojen lukumäärä | 151 |
| Kerroksia | 20 |
| Hissi | Kyllä |
| Energialuokka | D2013 |
| Energiatodistus | Ei |
| Antennityyppi | Kaapelitelevisiojärjestelmä |
| Autopaikat | Autopaikkoja hallinnoi ulkopuolinen toimija, vuokrattava erikseen |
| Sähköauton latauspiste | Ei. |
| Yhteiset tilat | ulkoiluvälinevarasto, sauna, pesutupa |
| Lisätiedot | lemmikit sallittu |
Carla Järventausta
Tiiminvetäjä, asuntovuokrauspalvelut
Puh. +358401597513
carla.jarventausta@inna.fiINNA Asuntovuokraus, Pääkaupunkiseutu