Tervetuloa uusille verkkosivuillemme! Retta Asuntovuokraus on nyt INNA Asuntovuokraus.

Asunnossa:

  • Sauna
  • Laajakaista kuuluu vuokraan
  • Huoneistokohtainen varasto
  • Lemmikit sallittu

Talossa:

  • Rakennusvuosi 2010

Asunnon kuvaus

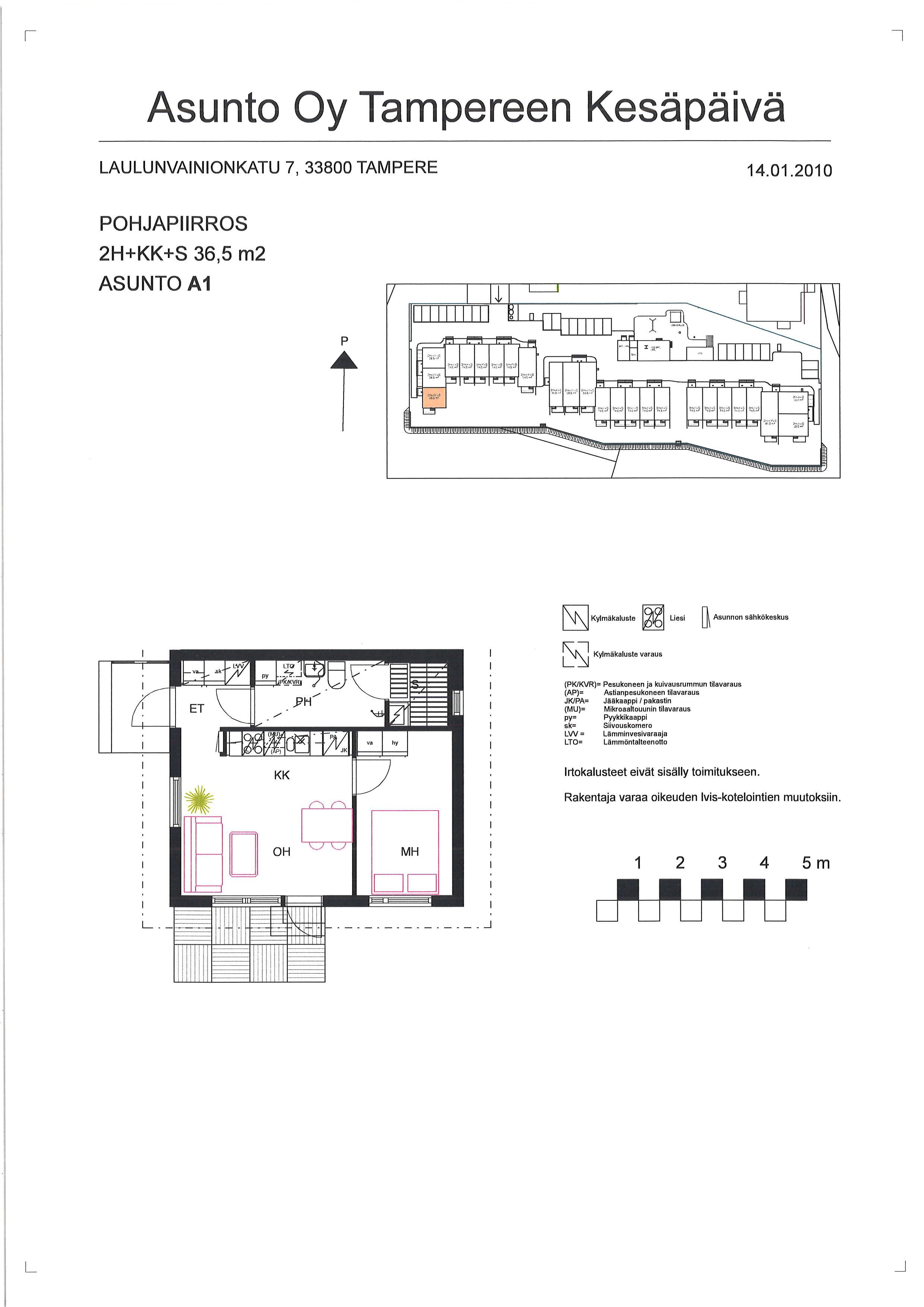
Vapautumassa mainio rivitalon päätyasunto Muotialassa. Asunnossa suora sähkölämmitys. Ilmalämpöpumppu helpottamassa Tässä asunnossa avoin pohjakuva, jossa keittiö ja olohuone yhtenäistä tilaa, tuoden avaruutta asumiseen. Asumismukavuutta lisäämässä sauna ja oma pieni takapiha. HUOM Täytäthän ensin asuntohakemuksen osoitteessa https://asunnot.inna.fi , Kiitos!

Asunnon tiedot

KatuosoiteLaulunvainionkatu 7 A 1
Pinta-ala36.5 m²
KaupunkiTampere
KaupunginosaMuotiala
Kerros1/0
Huoneiston vapautuminenVapautumassa 02.03.26
SaunaKyllä
Parvekkeen tiedotEi, piha
Lemmikit sallittuKyllä
Muut ehdotAsukkaan vastuulla ottaa oma kotivakuutus. Vuokralainen tekee oman sähkösopimuksen.
Lisätiedotsavuton

Asunnon varustelu

Keittiön varusteluliesi, jää-pakastinkaappi
Kylpyhuoneen varustelupeilikaappi, pesukoneliitäntä, lattiamateriaali: muovimatto, seinämateriaali: muovimatto
Lattiamateriaalilaminaatti
Huoneistokohtainen varastoKyllä, irtaimistovarasto
VaatehuoneEi

Hinta ja kustannukset

Vuokra / kk669 €
Vuokravakuus669 €
Sopimuksen tyyppiToistaiseksi voimassaoleva
Vesimaksu24 €/hlö/kk

Taloyhtiön tiedot

UudiskohdeEi
Taloyhtiön nimiLaulunvainionkatu 7 - As Oy Laulunvainionkatu 7 Tampere
Rakennuksen tyyppiRIVITALO
Rakennusvuosi2010
Huoneistojen lukumäärä23
Kerroksia0
HissiEi
EnergiatodistusEi
AutopaikatAutopaikkoja hallinnoi ulkopuolinen toimija, vuokrattava erikseen
Sähköauton latauspisteEi.
Lisätiedotlemmikit sallittu

Sijainti kartalla

Kohdetta välittää:

Joni Mäkelä

Vuokrausneuvottelija

Puh. +358102289819

joni.makela@inna.fi

INNA Asuntovuokraus, Tampere

Puh. 030 609 5555