Espoo, Leppävaara

Perilänniitty 3 B 68

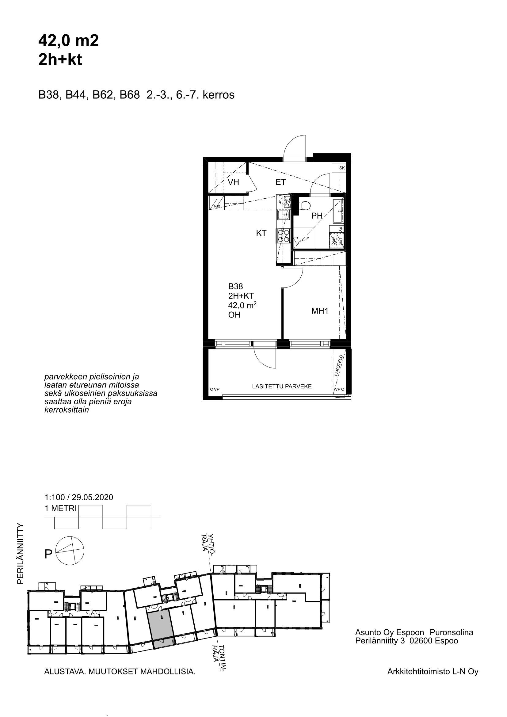
2h, kt, parv, 42

899 €/kk

Vuokravakuus 0 € / 350 € sopimustyypistä riippuen

Asunnossa:

  • Parveke
  • Laajakaista kuuluu vuokraan
  • Huoneistokohtainen varasto
  • Astianpesukone
  • Lemmikit sallittu

Talossa:

  • Hissi
  • Sauna
  • Rakennusvuosi 2020
  • Pesutupa
  • Kuntosali

Asunnon kuvaus

Hissitalon ylimmässä seitsemännessä (7) kerroksessa mukavan kokoinen kaksio. Huoneiston levyinen lasitettu parveke Modernissa laatoitetussa kylpyhuoneessa on allaskaappi, peilikaappi sekä pyykkikaappi. Kt:ssa on jää/pakastin kaappi, astianpesukone ja keraaminen taso, -kalusteuuni. Tässä kodissa on mukavasti säilytystilaa mm vaatehuone ja makuuhuoneen kaapit Asunnon seinäpinnat ovat valkoiset ja lattiassa on laminaatti. Lemmikit ovat myös tervetulleita Huom.! Kuvat vastaavanlaisesta asunnosta, näköalat saattavat vaihdella. Kiinnostuitko? Tämänkin kodin voit vuokrata verkkokaupastamme tai jättää hakemuksen asuntoilmoitukselta verkkosivuillamme. Asunnonhakuun liittyvissä kysymyksissä voitte olla yhteydessä asiakaspalveluumme, puh. 030 609 5555 tai asuntovuokraus@inna.fi

Asunnon tiedot

KatuosoitePerilänniitty 3 B 68
Pinta-ala42 m²
KaupunkiEspoo
KaupunginosaLeppävaara
Kerros7/0
Huoneiston vapautuminenVapautumassa 01.06.26
SaunaEi
Parvekkeen tiedotKyllä, lasitettu, ilmansuunta: länsi
Lemmikit sallittuKyllä
Muut ehdotAsukkaan vastuulla ottaa oma kotivakuutus. Vuokralainen tekee oman sähkösopimuksen.
Lisätiedotsavuton

Asunnon varustelu

Keittiön varusteluliesi, lieden tyyppi: keraaminen liesi, lieden selite: keraaminen taso,-kalusteuuni, astianpesukone, jää-pakastinkaappi, liesituuletin
Kylpyhuoneen varustelupeilikaappi, pesukoneliitäntä, lattiamateriaali: laatta, seinämateriaali: laatta
Lattiamateriaalilaminaatti
Huoneistokohtainen varastoKyllä, Irtainvarasto
VaatehuoneEi

Hinta ja kustannukset

Vuokra / kk899 €
Vuokravakuus 0 € / 350 € sopimustyypistä riippuen
Sopimuksen tyyppiToistaiseksi voimassaoleva tai toistaiseksi voimassaoleva, vuokrasopimus voi päättyä aikaisintaan 12 kuukauden päästä ilman sopimussakkoa
Vesimaksu27 €/hlö/kk

Taloyhtiön tiedot

UudiskohdeEi
Taloyhtiön nimiPerilänniitty 3 - Asunto Oy Espoon Puronsolina
Rakennuksen tyyppiASUINKERROSTALO
Rakennusvuosi2020
Huoneistojen lukumäärä71
Kerroksia0
HissiKyllä
EnergialuokkaB 2018
EnergiatodistusKyllä
AutopaikatAutopaikkoja hallinnoi ulkopuolinen toimija, vuokrattava erikseen
Sähköauton latauspisteEi.
Yhteiset tilatkerhohuone, ulkoiluvälinevarasto, kuntosali, sauna, pesutupa

Sijainti kartalla

Kohdetta välittää:

Kajsa Pyyhtiä

Vuokrausneuvottelija

Puh. +358449023226

kajsa.pyyhtia@inna.fi

INNA Asuntovuokraus, Pääkaupunkiseutu