Vatialassa vapautumassa hyväkuntoinen, 1. kerroksen saunallinen kolmio. Kodissa vaaleat materiaalit ja mm. laminaattilattiat. Asumismukavuutta lisäävät mm. astianpesukone, vaatehuone sekä tilava lasitettu parveke. Hyvät palvelut ovat aivan kulman takana mm. kauppa, pankki, koulut, uimarannat ja muut virkistysmahdollisuudet. Liikenneyhteydet erinomaiset myös Tampereelle. HUOM Täytäthän ensin asuntohakemuksen osoitteessa https://asunnot.inna.fi , Kiitos!
| Katuosoite | Karin-Heikintie 2 C 1 |
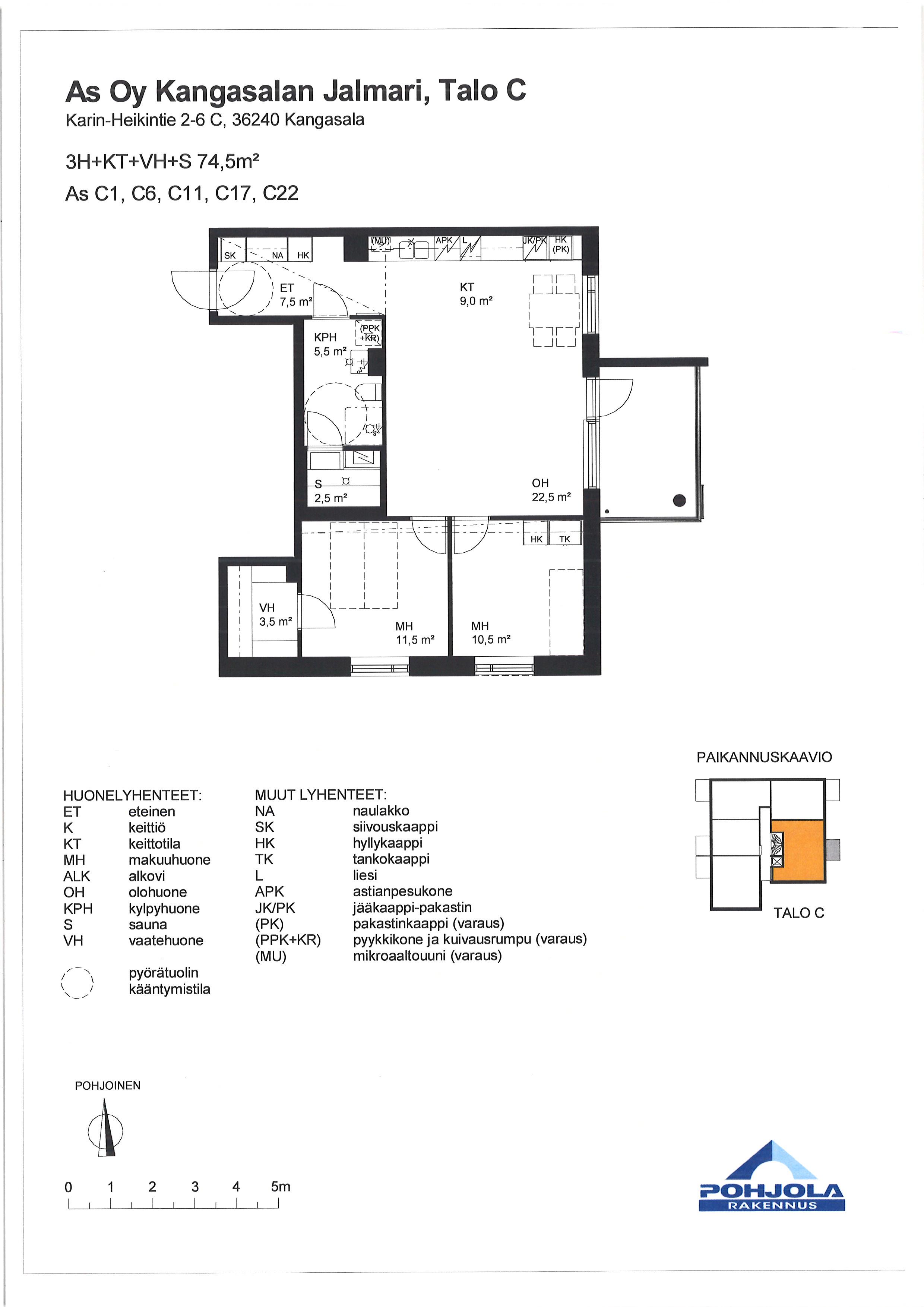
| Pinta-ala | 74.5 m² |
| Kaupunki | Kangasala |
| Kaupunginosa | Vatiala |
| Kerros | 1/0 |
| Huoneiston vapautuminen | Vapautumassa 01.06.26 |
| Sauna | Kyllä |
| Parvekkeen tiedot | Kyllä, lasitettu |
| Lemmikit sallittu | Kyllä |
| Muut ehdot | Asukkaan vastuulla ottaa oma kotivakuutus. Vuokralainen tekee oman sähkösopimuksen. |
| Lisätiedot | savuton |
| Keittiön varustelu | liesi, astianpesukone, jää-pakastinkaappi |
| Kylpyhuoneen varustelu | peilikaappi, pesukoneliitäntä, lattiamateriaali: laatta, seinämateriaali: laatta, lattialämmitys, sähkö |
| Lattiamateriaali | laminaatti |
| Huoneistokohtainen varasto | Ei |
| Vaatehuone | Kyllä |
| Vuokra / kk | 960 € |
| Vuokravakuus | 960 € |
| Sopimuksen tyyppi | Toistaiseksi voimassaoleva |
| Vesimaksu | 23 €/hlö/kk |
| Uudiskohde | Ei |
| Taloyhtiön nimi | Karin-Heikintie 2 - As Oy Karin-Heikintie 2 Kangasala |
| Rakennuksen tyyppi | ASUINKERROSTALO |
| Rakennusvuosi | 2015 |
| Huoneistojen lukumäärä | 52 |
| Kerroksia | 0 |
| Hissi | Kyllä |
| Energialuokka | C |
| Energiatodistus | Ei |
| Antennityyppi | Kaapelitelevisiojärjestelmä |
| Autopaikat | Autopaikkoja hallinnoi ulkopuolinen toimija, vuokrattava erikseen |
| Sähköauton latauspiste | Ei. |
| Yhteiset tilat | ulkoiluvälinevarasto |
| Lisätiedot | lemmikit sallittu |
Joni Mäkelä
Vuokrausneuvottelija
Puh. +358405035909
joni.makela@inna.fiINNA Asuntovuokraus, Tampere
Puh. 030 609 5555