












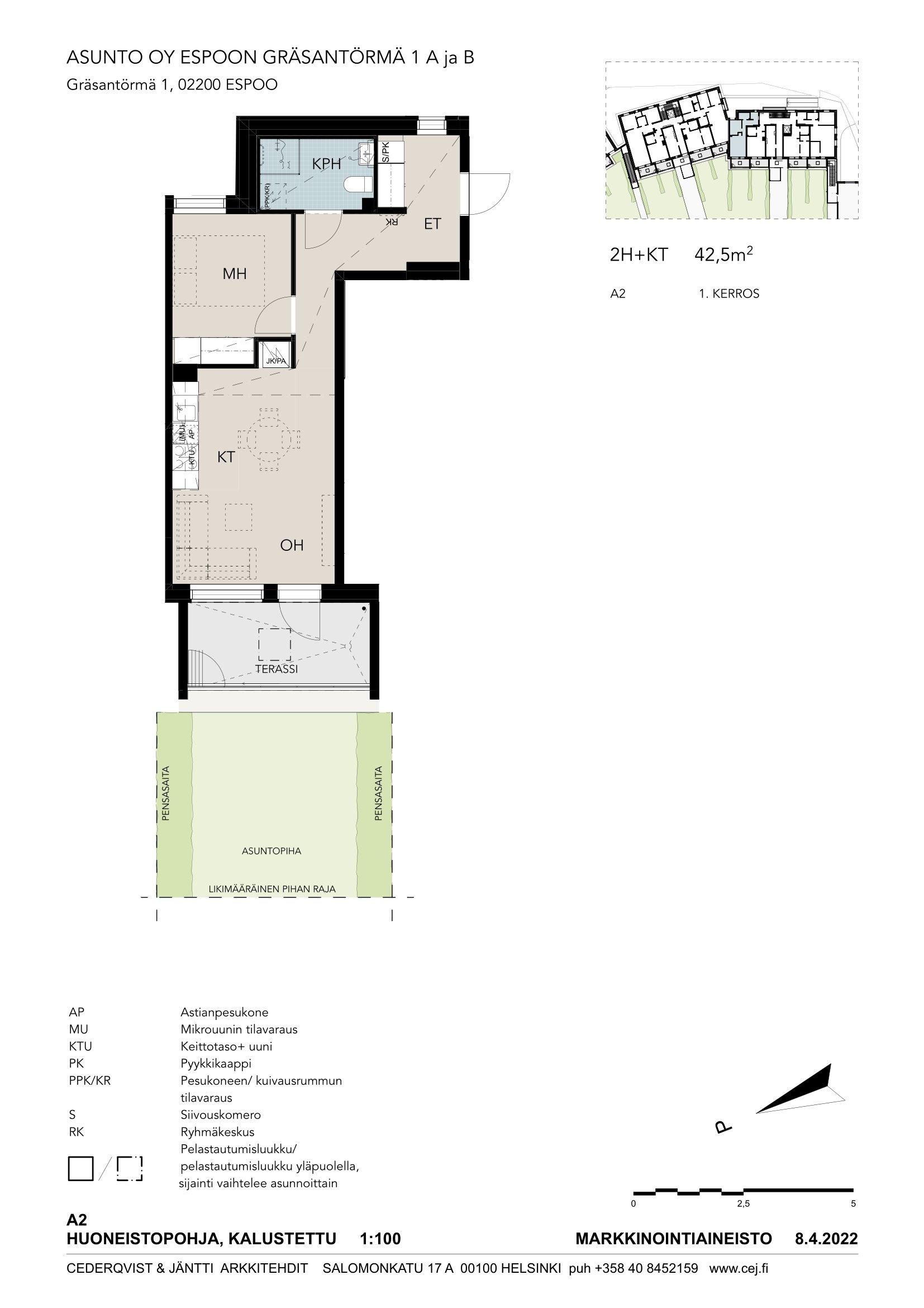
2h, kt, 43 m²
859 €/kk
Vuokravakuus 0 € / 350 € sopimustyypistä riippuen
Tervetuloa tutustumaan tähän valoisaan ja kotoisaan ensimmäisen kerroksen kotiin, jossa on oma terassi ja asuntopiha! Tämä kaunis maantasossa sijaitseva koti hurmaa valoisuudellaan ja toimivalla pohjaratkaisullaan. Vaaleat pintamateriaalit sekä moderni, laadukkailla kodinkoneilla varustettu avokeittiö luovat tyylikkään ja raikkaan ilmeen. Laatoitettu kylpyhuone on varustettu pyykinpesukonevalmiudella ja mukavuuslattialämmityksellä, jotka tuovat arkeen lisämukavuutta. Makuuhuoneessa on mukavasti säilytystilaa. Lasitettu terassi ja asuntopiha tarjoavat ihanteelliset puitteet rentoutumiseen ja oleskeluun – täällä voit nauttia ulkoilmasta aikaisesta keväästä pitkälle syksyyn. Huomioithan: Kuvat ovat vastaavantyyppisestä asunnosta – näkymät voivat vaihdella kerroksittain. Kiinnostuitko? Tämänkin kodin voit vuokrata verkkokaupastamme tai jättää hakemuksen asuntoilmoitukselta verkkosivuillamme. Lisätietoa välittäjältä sähköpositse. Inna asiakaspalvelu puh. 030 609 5555 ark. 8-16.
| Katuosoite | Gräsantörmä 1 A 2 |
| Pinta-ala | 43 m² |
| Kaupunki | Espoo |
| Kaupunginosa | Olari |
| Kerros | 1/0 |
| Huoneiston vapautuminen | Heti vapaa |
| Sauna | Ei |
| Parvekkeen tiedot | Ei, terassi |
| Lemmikit sallittu | Kyllä |
| Muut ehdot | Asukkaan vastuulla ottaa oma kotivakuutus. Vuokralainen tekee oman sähkösopimuksen. |
| Lisätiedot | savuton |
| Keittiön varustelu | liesi, lieden tyyppi: induktio, astianpesukone, jää-pakastinkaappi |
| Kylpyhuoneen varustelu | peilikaappi, pesukoneliitäntä, lattiamateriaali: laatta, seinämateriaali: laatta, lattialämmitys, mukavuuslattialämmitys asunnon omasta sähköstä |
| Lattiamateriaali | laminaatti |
| Huoneistokohtainen varasto | Kyllä, irtainvarasto |
| Vaatehuone | Ei |
| Vuokra / kk | 859 € |
| Vuokravakuus | 0 € / 350 € sopimustyypistä riippuen |
| Sopimuksen tyyppi | Toistaiseksi voimassaoleva tai toistaiseksi voimassaoleva, vuokrasopimus voi päättyä aikaisintaan 12 kuukauden päästä ilman sopimussakkoa |
| Vesimaksu | 27 €/hlö/kk |
| Uudiskohde | Kyllä |
| Taloyhtiön nimi | Gräsantörmä 1 A ja B - Asunto Oy Espoon Gräsantörmä 1 A ja B |
| Rakennuksen tyyppi | ASUINKERROSTALO |
| Rakennusvuosi | 2023 |
| Huoneistojen lukumäärä | 84 |
| Kerroksia | 0 |
| Hissi | Kyllä |
| Energialuokka | B2018 |
| Energiatodistus | Kyllä |
| Autopaikat | Autopaikkoja hallinnoi ulkopuolinen toimija, vuokrattava erikseen |
| Sähköauton latauspiste | Ei. |
| Yhteiset tilat | kuivaushuone, sauna, pesutupa |
| Lisätiedot | esteetön, lemmikit sallittu |
Matti Lessig-Lajanne
Vuokravälittäjä
Puh. +358306095069
matti.lajanne@inna.fiINNA Asuntovuokraus, Pääkaupunkiseutu