Asunnossa:

  • Parveke
  • Sauna
  • Laajakaista kuuluu vuokraan
  • Huoneistokohtainen varasto
  • Astianpesukone
  • Lemmikit sallittu

Talossa:

  • Kerroksia 3
  • Hissi
  • Rakennusvuosi 2013

Asunnon kuvaus

Merellisessä Saunalahdessa koti jonka tilavalla parvekkeella on myös oma pieni varasto. Laatoitetussa kylpyhuoneessa on mukavasti säilytystilaa mm. pyykkikaappi, allaskaappi ja peilikaappi. Tämän kodin isot ikkunat (lattiasta kattoon) antavat mukavasti luonnonvaloa. Kulmahuoneisto ikkunat kahteen suuntaan . Luonnonläheinen ja kasvava alue, jossa hyvät ulkoilumahdollisuudet. Lemmikit myös tervetulleita Kiinnostuitko? Täytä asuntohakemus: asunnot.inna.fi ja ota yhteys välittäjään sähköpostilla. HUOM. ilmoituksen kuvat vastaavasta asunnosta. INNA asiakaspalvelu arkisin 8-16 p. 030 609 5555.

Asunnon tiedot

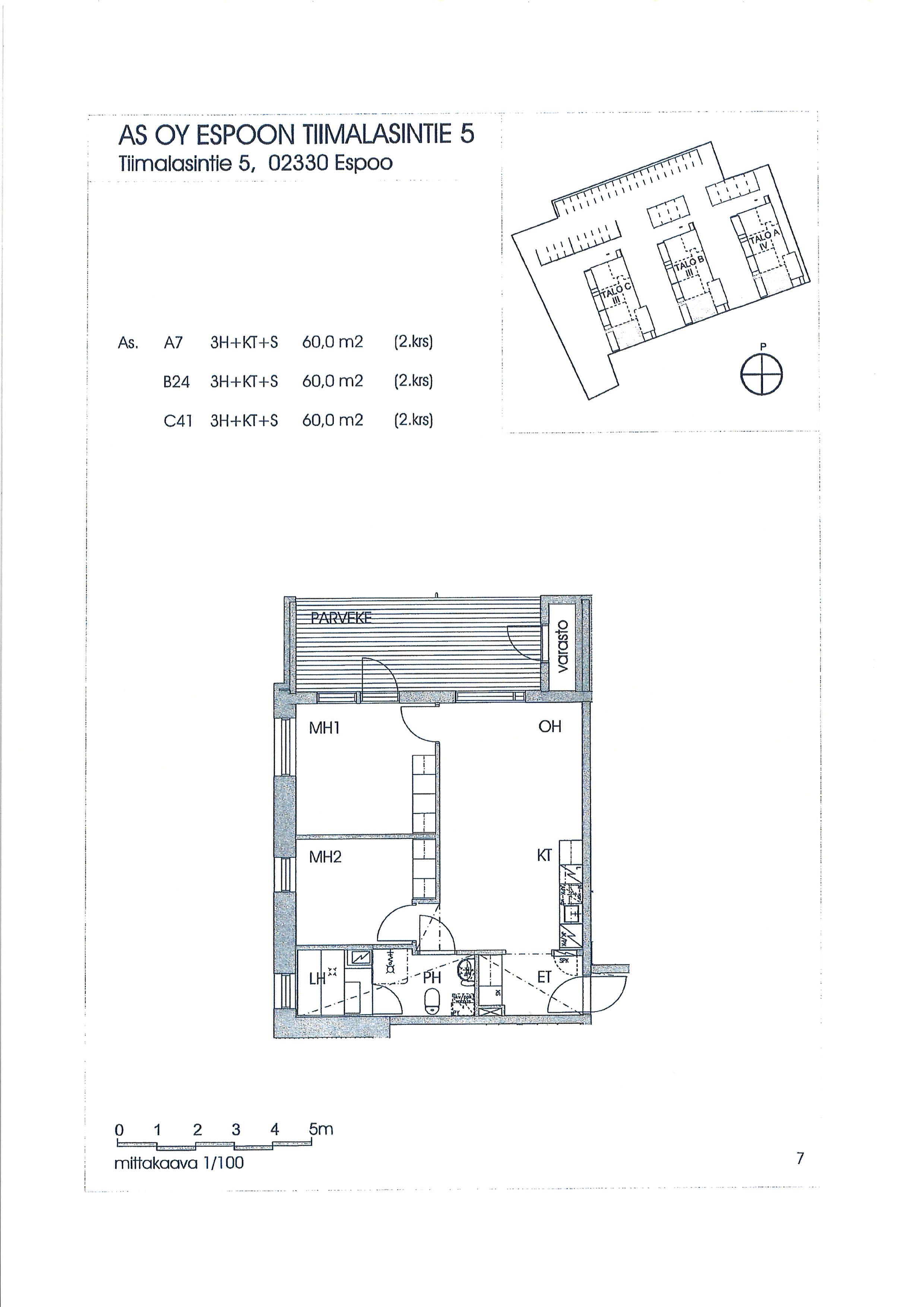
KatuosoiteTiimalasintie 5 A 7
Pinta-ala60 m²
KaupunkiEspoo
KaupunginosaSaunalahti
Kerros2/3
Huoneiston vapautuminenVapautumassa 01.06.26
SaunaKyllä
Parvekkeen tiedotKyllä, ilmansuunta: etelä
Lemmikit sallittuKyllä
Muut ehdotAsukkaan vastuulla ottaa oma kotivakuutus. Vuokralainen tekee oman sähkösopimuksen.
Lisätiedotsavuton

Asunnon varustelu

Keittiön varusteluliesi, lieden tyyppi: keraaminen liesi, astianpesukone, jää-pakastinkaappi
Kylpyhuoneen varustelupeilikaappi, pesukoneliitäntä, lattiamateriaali: laatta, seinämateriaali: laatta
Lattiamateriaalilaminaatti
Huoneistokohtainen varastoKyllä, Irtainvarasto 2 kpl
VaatehuoneEi

Hinta ja kustannukset

Vuokra / kk1050 €
Vuokravakuus350 €
Sopimuksen tyyppiToistaiseksi voimassaoleva
Vesimaksu24 €/hlö/kk

Taloyhtiön tiedot

UudiskohdeEi
Taloyhtiön nimiTiimalasintie 5 - As Oy Espoon Tiimalasintie 5
Rakennuksen tyyppiASUINKERROSTALO
Rakennusvuosi2013
Huoneistojen lukumäärä51
Kerroksia3
HissiKyllä
EnergialuokkaE2013
EnergiatodistusEi
AutopaikatAutopaikkoja hallinnoi ulkopuolinen toimija, vuokrattava erikseen
Sähköauton latauspisteEi.
Yhteiset tilatulkoiluvälinevarasto
Lisätiedotlemmikit sallittu

Sijainti kartalla

Kohdetta välittää:

Matti Lessig-Lajanne

Vuokravälittäjä

Puh. +358306095069

matti.lajanne@inna.fi

INNA Asuntovuokraus, Pääkaupunkiseutu