Tervetuloa uusille verkkosivuillemme! Retta Asuntovuokraus on nyt INNA Asuntovuokraus.

Kahden ensimmäisen kuukauden vuokrat -50%. Etu edellyttää 12kk sitoutumista asumiseen.

Helsinki, Postipuisto

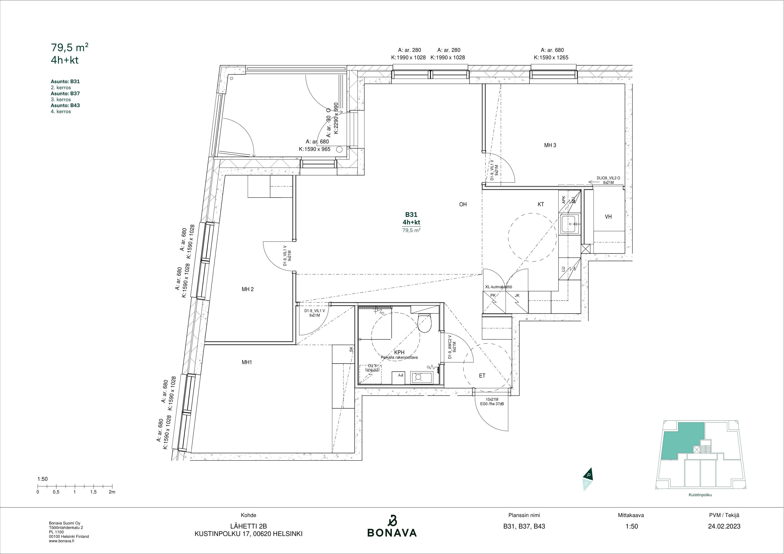
Kustinpolku 17 B 43

4h, kt, 79.5

1595 €/kk

Vuokravakuus 0 € / 350 € sopimustyypistä riippuen

Asunnossa:

  • Parveke
  • Laajakaista kuuluu vuokraan
  • Huoneistokohtainen varasto
  • Vaatehuone
  • Astianpesukone
  • Lemmikit sallittu

Talossa:

  • Hissi
  • Sauna
  • Rakennusvuosi 2023
  • Pesutupa

Asunnon kuvaus

Tervetuloa ihastumaan tähän viehättävään ja valoisaan neliöön! Asunnossa on ihanteellinen pohjaratkaisu, joka tekee asumisesta miellyttävää. Avokeittiön varustukseen kuuluu laadukkaat kodinkoneet kuten liesi, täyskorkeat jääkaappi sekä pakastin ja astianpesukone, joten ruuanlaitto sujuu vaivattomasti. Löydät täältä runsaasti säilytystilaa, mikä tekee kodin järjestämisestä helppoa, esimerkkinä päämakuuhuoneen vaatehuone. Muissa makuuhuoneissa kaapistot. Lisäksi kylpyhuoneessa on valmius pesukoneelle, mikä tekee arjen pyykinpesusta vaivatonta. Lattiaa lämmittää mukavuuslämmitys. Nauti auringonvalosta ja raikkaasta ilmasta lasitetulla parvekkeella, joka tarjoaa täydellisen paikan rentoutumiseen. Lemmikit myös tervetulleita! Huom. Ilmoituksen kuvat vastaavasta asunnosta, näkymät voivat vaihdella kerrosten välillä. Kiinnostuitko? Tämänkin kodin voit vuokrata verkkokaupastamme tai jätä hakemus, niin lähetämme sinulle asuntotarjouksen sähköpostitse, mikäli voimme tarjota tätä asuntoa. Yleisissä vuokrausta koskevissa asioissa palvelee asiakaspalvelumme: puh. 030 609 5555

Asunnon tiedot

KatuosoiteKustinpolku 17 B 43
Pinta-ala79.5 m²
KaupunkiHelsinki
KaupunginosaPostipuisto
Kerros4/0
Huoneiston vapautuminenHeti vapaa
SaunaEi
Parvekkeen tiedotKyllä, lasitettu, Lasitettu parveke
Lemmikit sallittuKyllä
Muut ehdotAsukkaan vastuulla ottaa oma kotivakuutus. Vuokralainen tekee oman sähkösopimuksen.
Lisätiedotsavuton

Asunnon varustelu

Keittiön varusteluliesi, lieden tyyppi: keraaminen liesi, astianpesukone, jää-pakastinkaappi, liesituuletin
Kylpyhuoneen varustelupeilikaappi, pesukoneliitäntä, lattiamateriaali: laatta, seinämateriaali: laatta, lattialämmitys, mukavuus lattialämmitys
Lattiamateriaalilaminaatti
Huoneistokohtainen varastoKyllä, Irtaimistovarasto
VaatehuoneKyllä

Hinta ja kustannukset

Vuokra / kk1595 €
Vuokravakuus 0 € / 350 € sopimustyypistä riippuen
Sopimuksen tyyppiToistaiseksi voimassaoleva tai toistaiseksi voimassaoleva, vuokrasopimus voi päättyä aikaisintaan 12 kuukauden päästä ilman sopimussakkoa
KampanjatietoKahden ensimmäisen kuukauden vuokrat -50%. Etu edellyttää 12kk sitoutumista asumiseen.
Vesimaksu27 €/hlö/kk

Taloyhtiön tiedot

UudiskohdeKyllä
Taloyhtiön nimiKustinpolku 17 - Asunto Oy Helsingin Lähetti 2
Rakennuksen tyyppiASUINKERROSTALO
Rakennusvuosi2023
Huoneistojen lukumäärä53
Kerroksia0
HissiKyllä
EnergialuokkaA 2018
EnergiatodistusKyllä
AutopaikatAutopaikkoja hallinnoi ulkopuolinen toimija, vuokrattava erikseen
Sähköauton latauspisteEi.
Yhteiset tilatulkoiluvälinevarasto, sauna, pesutupa

Sijainti kartalla

Kohdetta välittää:

Veera Wollsten

Vuokrausneuvottelija

Puh. 0306095579

Veera.Wollsten@inna.fi

INNA Asuntovuokraus, Pääkaupunkiseutu