Tervetuloa uusille verkkosivuillemme! Retta Asuntovuokraus on nyt INNA Asuntovuokraus.








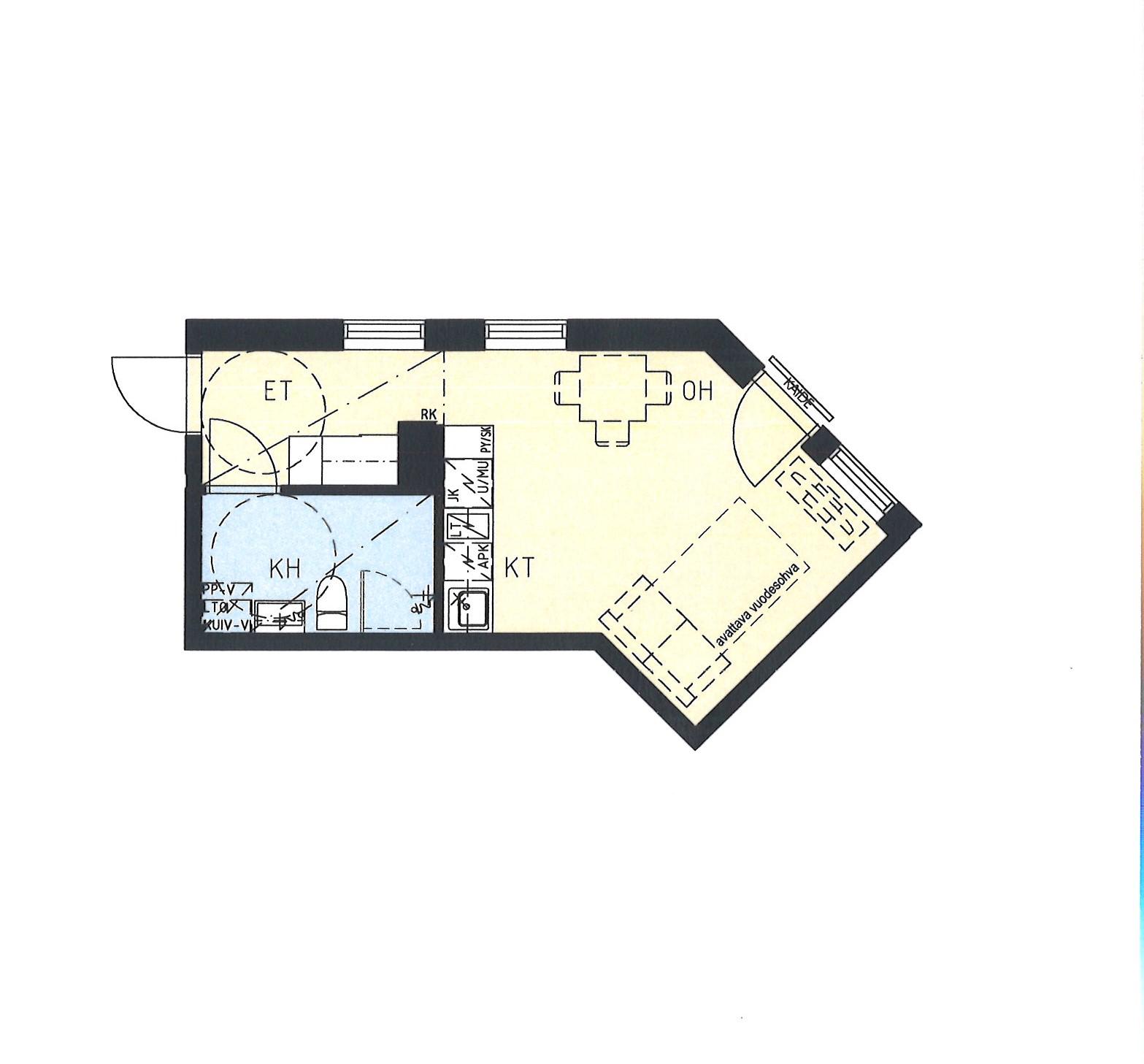
Heti vapaa yksiö. Valoisa 5. kerroksen näppärä kulmahuoneisto. Asunnossa ranskalainen parveke. Ikkunat koilliseen ja itään. Lattiat tammilautaparkettia, seinät maalattu. Kokonaan laatoitettu kylpyhuone.
| Katuosoite | Seppelkatu 9 A 45 |
| Pinta-ala | 26.5 m² |
| Kaupunki | Turku |
| Kaupunginosa | Vasaramäki |
| Kerros | 5/0 |
| Huoneiston vapautuminen | Heti vapaa |
| Sauna | Ei |
| Parvekkeen tiedot | Kyllä, lasitettu, ranskalainen parveke |
| Lemmikit sallittu | Kyllä |
| Muut ehdot | Asukkaan vastuulla ottaa oma kotivakuutus. Vuokralainen tekee oman sähkösopimuksen. |
| Lisätiedot | savuton |
| Keittiön varustelu | liesi, lieden tyyppi: keraaminen liesi, lieden selite: keraaminen, 2-levyinen, astianpesukone, jääkaappi, kylmäkalusteiden selite: pakastinlokerolla |
| Kylpyhuoneen varustelu | peilikaappi, pesukoneliitäntä, lattiamateriaali: laatta, seinämateriaali: laatta, lattialämmitys, mukavuuslämpö |
| Lattiamateriaali | parketti |
| Huoneistokohtainen varasto | Kyllä, irtaimistovarasto |
| Vaatehuone | Kyllä |
| Vuokra / kk | 669 € |
| Vuokravakuus | 669 € |
| Sopimuksen tyyppi | Toistaiseksi voimassaoleva, vuokrasopimus voi päättyä aikaisintaan 12 kuukauden päästä ilman sopimussakkoa |
| Kampanjatieto | Ensimmäisen kuukauden vuokra -50%. Etu voimassa. 28.2.2026 mennessä allekirjoitettuihin vuokrasopimuksiin. Sitoutuminen 12kk. |
| Vesimaksu | 24 €/hlö/kk |
| Uudiskohde | Ei |
| Taloyhtiön nimi | Seppelkatu 9 - Asunto Oy Turun Villenpuisto II |
| Rakennuksen tyyppi | ASUINKERROSTALO |
| Rakennusvuosi | 2018 |
| Huoneistojen lukumäärä | 16 |
| Kerroksia | 0 |
| Hissi | Kyllä |
| Energialuokka | C*2013 |
| Energiatodistus | Ei |
| Antennityyppi | Kaapelitelevisiojärjestelmä |
| Autopaikat | Autopaikkoja hallinnoi ulkopuolinen toimija, vuokrattava erikseen |
| Sähköauton latauspiste | Ei. |
| Lisätiedot | lemmikit sallittu |