Järvenpää, Pöytäalho

Valtuustonkatu 12 B 22

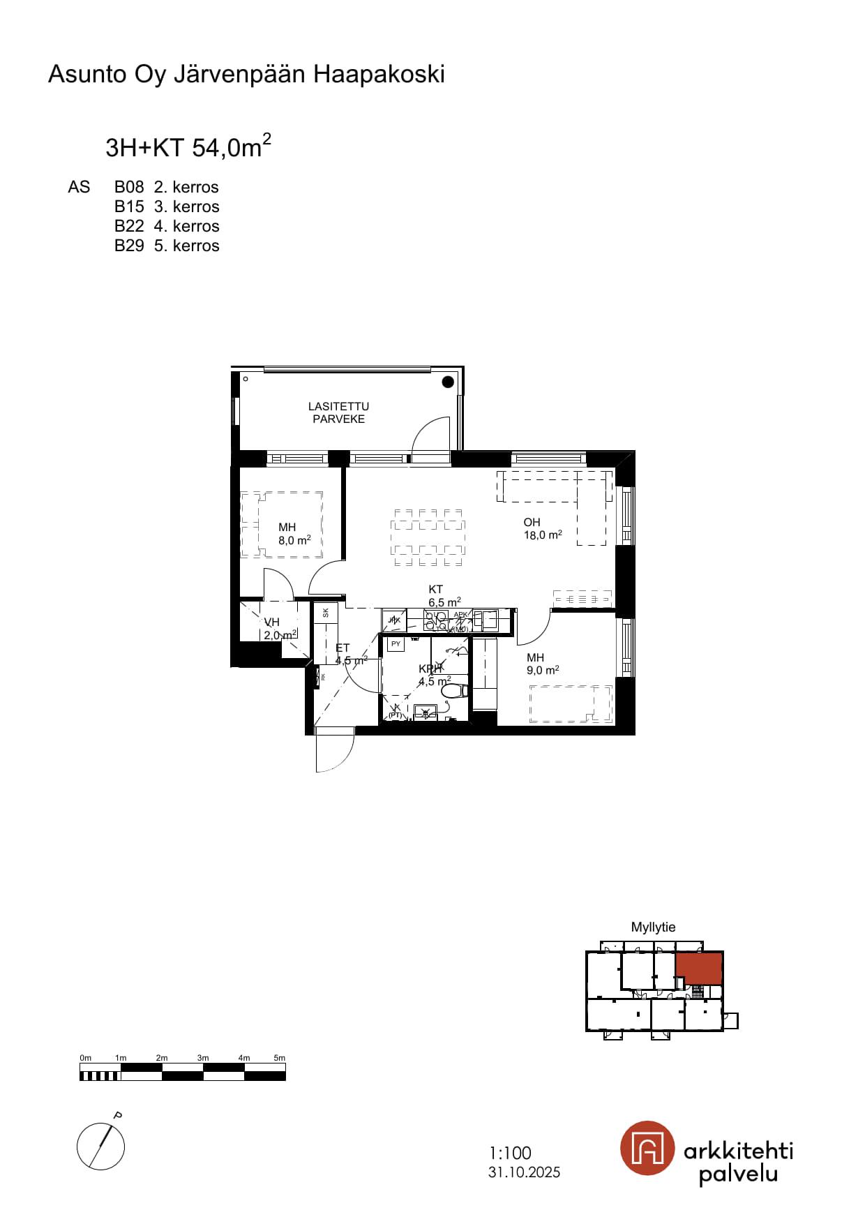
3h, kt, lasitettu parveke, 54

1029 €/kk

Vuokravakuus 0 € / 0 € sopimustyypistä riippuen

Asunnossa:

  • Parveke
  • Laajakaista kuuluu vuokraan
  • Huoneistokohtainen varasto
  • Vaatehuone
  • Astianpesukone
  • Lemmikit sallittu

Talossa:

  • Kerroksia 7
  • Hissi
  • Sauna
  • Rakennusvuosi 2026

Asunnon kuvaus

Valoisa uusi kolmio lasitetulla parvekkeella Pajalasta! Tässä viihtyisässä kodissa on tilava ja moderni avokeittiö, jonka varusteluun kuuluu mm. induktioliesitaso, erillisuuni ja astianpesukone. Olohuoneessa on kauttaaltaan vaaleat pintamateriaalit sekä upeat isot ikkunat, jotka tuovat kauniisti luonnonvaloa asuntoon. Makuuhuoneet ovat tilavia ja säilytystilaa on reilusti kaapistoissa ja vaatehuoneessa. Laatoitetussa kylpyhuoneessa on kääntyvä lasinen suihkuseinä, tilavaraus pesutornille sekä miellyttävä sähkötoiminen mukavuuslattialämmitys. Kokonaisuuden kruunaa iso lasitettu pohjoisparveke. Tämä koti on yhdistelmä mukavuutta, toimivuutta ja käytännöllisyyttä parhaimmillaan. Olisiko tämä uusi kotisi? Jätä asuntohakemus, niin olemme sinuun yhteydessä! Vastaavia asuntoja saattaa myös olla vapaana talon muissa kerroksissa.

Asunnon tiedot

KatuosoiteValtuustonkatu 12 B 22
Pinta-ala54 m²
KaupunkiJärvenpää
KaupunginosaPöytäalho
Kerros4/7
Kuntoerinomainen
Huoneiston vapautuminenVapautumassa 01.05.26
SaunaEi
Parvekkeen tiedotKyllä, lasitettu, ilmansuunta: pohjoinen
Lemmikit sallittuKyllä
Muut ehdotAsukkaan vastuulla ottaa oma kotivakuutus. Vuokralainen tekee oman sähkösopimuksen.
Lisätiedotsavuton

Asunnon varustelu

Keittiön varusteluliesi, lieden tyyppi: induktio, lieden selite: liesitaso + erillisuuni, astianpesukone, jää-pakastinkaappi
Kylpyhuoneen varustelupeilikaappi, pesukoneliitäntä, lattiamateriaali: laatta, seinämateriaali: laatta, lattialämmitys, mukavuuslattialämmitys (huoneiston sähköstä)
Lattiamateriaalilaminaatti
Huoneistokohtainen varastoKyllä, irtaimistovarasto pohjakerroksessa
VaatehuoneKyllä
LisätiedotSavuton huoneisto

Hinta ja kustannukset

Vuokra / kk1029 €
Vuokravakuus 0 € / 0 € sopimustyypistä riippuen
Sopimuksen tyyppiToistaiseksi voimassaoleva tai toistaiseksi voimassaoleva, vuokrasopimus voi päättyä aikaisintaan 12 kuukauden päästä ilman sopimussakkoa
Vesimaksu27 €/hlö/kk
Vesimaksun lisätiedotVesi kulutuksen mukaan. Tasauslaskutus tehdään 2 kertaa vuodessa ja vuokrasopimuksen päättyessä.

Taloyhtiön tiedot

UudiskohdeKyllä
Taloyhtiön nimiValtuustonkatu 12 B - Asunto Oy Järvenpään Haapakoski
Rakennuksen tyyppiASUINKERROSTALO
Rakennusvuosi2026
Huoneistojen lukumäärä43
Kerroksia7
HissiKyllä
EnergialuokkaA2018
EnergiatodistusKyllä
AntennityyppiKaapelitelevisiojärjestelmä
AutopaikatAutopaikkoja hallinnoi ulkopuolinen toimija, vuokrattava erikseen
Sähköauton latauspisteEi.
Yhteiset tilatsauna
Lisätiedotsavuton talo, lemmikit sallittu

Sijainti kartalla

Kohdetta välittää:

Annika Rämö

Vuokravälittäjä

Puh. +358406674597

annika.ramo@inna.fi

INNA Asuntovuokraus, Hyvinkää

Puh. 030 609 5555