








1h, kt, parv, 28 m²
599 €/kk
Vuokravakuus 350 € / 599 € sopimustyypistä riippuen
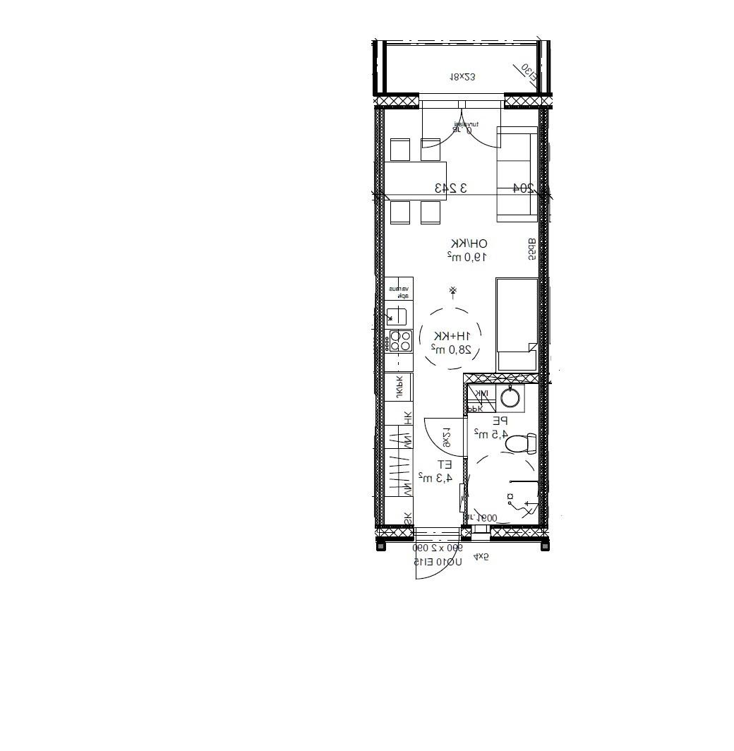
Vuokrattavana kaunis 1. kerroksen luhtitaloyksiö viihtyisällä alueella Keravan Saviolla. Tässä tehokkaassa, toimivapohjaisessa kodissa on moderni avokeittiö, joka on varusteltu keraaminen liedellä, astianpesukoneella sekä jääkaappipakastimella. Asunnossa on laminaattilattiat, eteisen puolella käytännöllinen harmaasävyinen laatoitus. Kauttaaltaan miellyttävä vesikiertoinen lattialämmitys, jolloin lämmityspatterit eivät ole kalustuksen tiellä. Kylpyhuoneessa suihkuseinä sekä varaus pyykinpesukoneelle. Asunnon vaaleat modernit pintamateriaalit sekä tilava avoparveke tekevät tästä asunnosta viihtyisän kokonaisuuden. Kohteen kuvat vastaavantyyppisestä asunnosta.
| Katuosoite | Niinikatu 5 B 23 |
| Pinta-ala | 28 m² |
| Kaupunki | Kerava |
| Kaupunginosa | Savio |
| Kerros | 1/2 |
| Huoneiston vapautuminen | Vapautumassa 04.05.26 |
| Sauna | Ei |
| Parvekkeen tiedot | Kyllä, lasitettu |
| Lemmikit sallittu | Kyllä |
| Muut ehdot | Asukkaan vastuulla ottaa oma kotivakuutus. Vuokralainen tekee oman sähkösopimuksen. |
| Lisätiedot | savuton |
| Keittiön varustelu | liesi, astianpesukone, jääkaappi |
| Kylpyhuoneen varustelu | peilikaappi, pesukoneliitäntä, lattiamateriaali: laatta, seinämateriaali: laatta |
| Lattiamateriaali | laminaatti |
| Huoneistokohtainen varasto | Kyllä, kylmä irtainvarasto erillisrakennuksessa |
| Vaatehuone | Ei |
| Vuokra / kk | 599 € |
| Vuokravakuus | 350 € / 599 € sopimustyypistä riippuen |
| Sopimuksen tyyppi | Toistaiseksi voimassaoleva tai toistaiseksi voimassaoleva, vuokrasopimus voi päättyä aikaisintaan 12 kuukauden päästä ilman sopimussakkoa |
| Vesimaksu | 23 €/hlö/kk |
| Uudiskohde | Ei |
| Taloyhtiön nimi | A9 Niinikatu 5 - As Oy Keravan WhiteRock |
| Rakennuksen tyyppi | LUHTIKÄYTÄVÄPIENTALO |
| Rakennusvuosi | 2016 |
| Huoneistojen lukumäärä | 34 |
| Kerroksia | 2 |
| Hissi | Ei |
| Energialuokka | C2013 |
| Energiatodistus | Kyllä |
| Antennityyppi | Kaapelitelevisiojärjestelmä |
| Autopaikat | Autopaikkoja hallinnoi ulkopuolinen toimija, vuokrattava erikseen |
| Sähköauton latauspiste | Ei. |
| Yhteiset tilat | ulkoiluvälinevarasto |
| Lisätiedot | lemmikit sallittu |
Noora Kostiainen
Vuokrausneuvottelija
Noora.Kostiainen@inna.fiINNA Asuntovuokraus, Hyvinkää
Puh. 030 609 5555