Tervetuloa uusille verkkosivuillemme! Retta Asuntovuokraus on nyt INNA Asuntovuokraus.

Asunnossa:

  • Parveke
  • Laajakaista kuuluu vuokraan
  • Huoneistokohtainen varasto
  • Astianpesukone
  • Lemmikit sallittu

Talossa:

  • Rakennusvuosi 2011

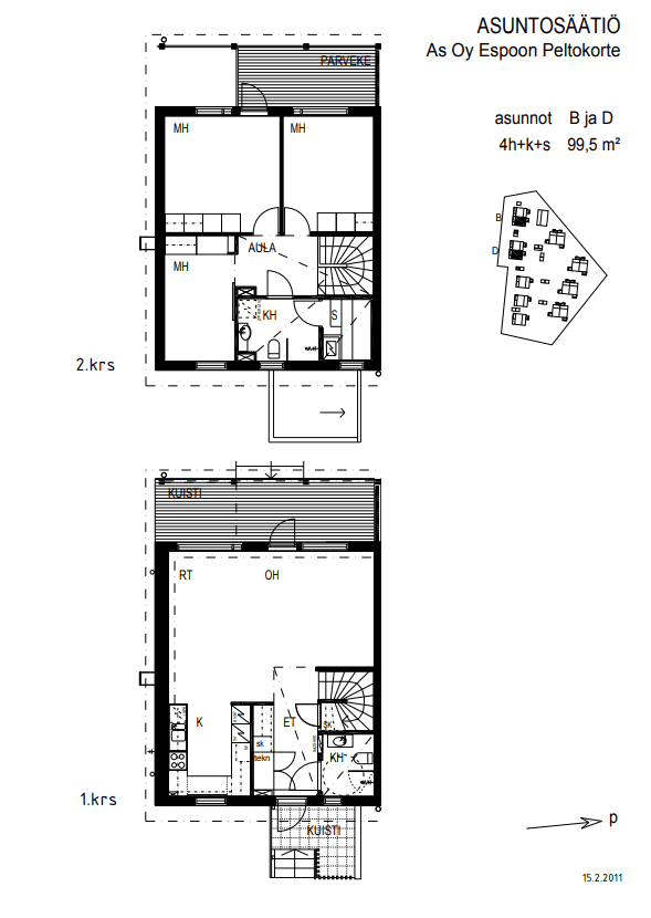
Asunnon kuvaus

Tilava perheasunto paritalossa rauhallisella paikalla. Tilat kahdessa tasossa. Alakerrassa eteisessä säilytystilana rappusien alla vaatehuone sekä eteisen kaapistot. Iso olohuone, josta kulku omalle isolle pihalle. Eteisen yhteydessä erillinen wc suihkulla. Pihalla on ulkovarasto (kylmä). Yläkerrasta löydät 3 makuuhuonetta sekä kylpyhuone saunalla. Yhdestä makuuhuoneesta pääset isolle parvekkeelle. Asunnolle kuuluu kaksi lämmitystolpallista autopaikkaa pihasta. Kaukolämmitteinen pari/erillistaloyhtiö Espoon Vantinmäessä Täytä asuntohakemus: vuokraus.rettamanagement.fi. Lisätietoja saat sähköpostilla kohteen välittäjältä. Yleisiin kysymyksiin vastaa Retta asiakaspalvelu p. 030 609 5555 ark. 8-16. Ilmoituksen kuvat vastaavasta asunnosta.

Asunnon tiedot

KatuosoitePeltomiehentie 7 B
Pinta-ala99.5 m²
KaupunkiEspoo
KaupunginosaVanttila
Kerros/0
Huoneiston vapautuminenHeti vapaa
SaunaEi
Parvekkeen tiedotKyllä
Lemmikit sallittuKyllä
Muut ehdotAsukkaan vastuulla ottaa oma kotivakuutus. Vuokralainen tekee oman sähkösopimuksen.
Lisätiedotkaksi kerrosta, savuton

Asunnon varustelu

Keittiön varusteluliesi, astianpesukone, jääkaappi, pakastin
Kylpyhuoneen varustelupeilikaappi, pesukoneliitäntä, lattiamateriaali: laatta, seinämateriaali: laatta, erillinen wc
Lattiamateriaalilaminaatti
Huoneistokohtainen varastoKyllä, irtaimistovarasto 2 kpl
VaatehuoneEi

Hinta ja kustannukset

Vuokra / kk1670 €
Vuokravakuus350 €
Sopimuksen tyyppiToistaiseksi voimassaoleva
Vesimaksu24 €/hlö/kk

Taloyhtiön tiedot

UudiskohdeEi
Taloyhtiön nimiPeltomiehentie 7 - Asunto Oy Espoon Peltokorte
Rakennuksen tyyppiPARITALO
Rakennusvuosi2011
Huoneistojen lukumäärä15
Kerroksia0
HissiEi
EnergialuokkaC2013
EnergiatodistusEi
AutopaikatAutopaikkoja hallinnoi ulkopuolinen toimija, vuokrattava erikseen
Sähköauton latauspisteEi.
Lisätiedotlemmikit sallittu

Sijainti kartalla

Kohdetta välittää:

Matti Lessig-Lajanne

Vuokravälittäjä

Puh. +358503258838

matti.lajanne@inna.fi

INNA Asuntovuokraus, Pääkaupunkiseutu