Asunnossa:

  • Parveke
  • Laajakaista kuuluu vuokraan
  • Huoneistokohtainen varasto
  • Astianpesukone
  • Lemmikit sallittu

Talossa:

  • Kerroksia 7
  • Hissi
  • Sauna
  • Rakennusvuosi 2026
  • Pesutupa

Asunnon kuvaus

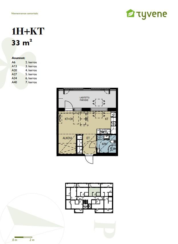
Juuri valmistunut senioritalo Niemenrannassa tarjoaa modernia ja vaivatonta asumista. Asuntoon muuttavan on oltava täyttänyt 65-vuotta. Asukasvalinnoissa huomioidaan hakijan asunnontarve sekä varallisuusrajat. Viidennen kerroksen yksiö tarjoaa kompaktin mutta erittäin toimivan kodin. Huolellisesti suunniteltu pohjaratkaisu luo vapauksia sisustukseen. Keittiössä arkea sujuvoittavat astianpesukone ja induktioliesi, jotka tuovat modernia mukavuutta ja helpottavat päivittäisiä askareita. Asunnon kruunaa koko huoneiston levyinen lasitettu parveke – valoisa ja suojaisa tila, joka toimii käytännössä lisähuoneena keväästä pitkälle syksyyn. Parvekkeen suuntana noin länsi. Täytäthän alustavan asuntohakemuksen osoitteessa asunnot.inna.fi. Kiitos!

Asunnon tiedot

KatuosoiteKehyskatu 9 A 27
Pinta-ala33 m²
KaupunkiTampere
KaupunginosaNiemenranta
Kerros5/7
Huoneiston vapautuminenHeti vapaa
SaunaEi
Parvekkeen tiedotKyllä, lasitettu, ilmansuunta: länsi
Lemmikit sallittuKyllä
Muut ehdotAsukkaan vastuulla ottaa oma kotivakuutus. Vuokralainen tekee oman sähkösopimuksen.
Lisätiedotsenioriasunto, savuton

Asunnon varustelu

Keittiön varusteluliesi, lieden tyyppi: induktio, astianpesukone, jää-pakastinkaappi
Kylpyhuoneen varustelupeilikaappi, pesukoneliitäntä, lattiamateriaali: laatta, seinämateriaali: laatta, lattialämmitys, huoneiston sähköstä
Lattiamateriaalilaminaatti
Huoneistokohtainen varastoKyllä, irtaimistovarasto
VaatehuoneEi
LisätiedotSavuton huoneisto

Hinta ja kustannukset

Vuokra / kk660 €
Vuokravakuus660 €
Sopimuksen tyyppiToistaiseksi voimassaoleva, vuokrasopimus voi päättyä aikaisintaan 6 kuukauden päästä ilman sopimussakkoa
Vesimaksu20 €/hlö/kk
Vesimaksun lisätiedottasataan kerran vuodessa

Taloyhtiön tiedot

UudiskohdeKyllä
Taloyhtiön nimiKehyskatu 9 -Kiinteistö Oy Onnenlähde
Rakennuksen tyyppiASUINKERROSTALO
Rakennusvuosi2026
Huoneistojen lukumäärä42
Kerroksia7
HissiKyllä
EnergialuokkaA
EnergiatodistusKyllä
AutopaikatAutopaikkoja hallinnoi ulkopuolinen toimija, vuokrattava erikseen
Sähköauton latauspisteEi.
Yhteiset tilatkuivaushuone, kerhohuone, ulkoiluvälinevarasto, sauna, pesutupa
Lisätiedotsavuton talo, esteetön, lemmikit sallittu

Sijainti kartalla

Kohdetta välittää:

Joni Mäkelä

Vuokrausneuvottelija

Puh. +358405035909

joni.makela@inna.fi

INNA Asuntovuokraus, Tampere

Puh. 030 609 5555