Tervetuloa uusille verkkosivuillemme! Retta Asuntovuokraus on nyt INNA Asuntovuokraus.

Asunnossa:

  • Parveke
  • Laajakaista kuuluu vuokraan
  • Huoneistokohtainen varasto
  • Astianpesukone
  • Lemmikit sallittu

Talossa:

  • Kerroksia 7
  • Hissi
  • Sauna
  • Rakennusvuosi 2026
  • Pesutupa

Asunnon kuvaus

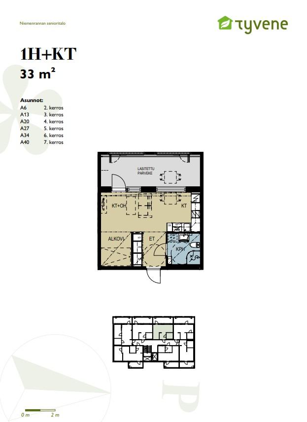
Keväällä 2026 Niemenrantaan valmistuva senioritalo! Asuntoon muuttavan on oltava täyttänyt 65-vuotta. Asukasvalinnoissa huomioidaan hakijan asunnontarve sekä varallisuusrajat. Tässä yksiössä on hyvin suunniteltu pohjakuva, jossa alkovissa oma paikkansa sängylle, tuoden vapauksia kalustuksen suunnitteluun. Arkea helpottamassa astianpesukone ja induktioliesi. Asumismukavuutta lisäämässä koko huoneiston levyinen lasitettu parveke, joka tuo lisätilaa aina keväästä syksyyn. Parvekkeen suuntana noin länsi. Kysy vapaista asunnoista lisää välittäjältä. Täytäthän alustavan asuntohakemuksen osoitteessa asunnot.inna.fi. Kiitos!

Asunnon tiedot

KatuosoiteKehyskatu 9 A 6
Pinta-ala33 m²
KaupunkiTampere
KaupunginosaNiemenranta
Kerros2/7
Huoneiston vapautuminenVapautumassa 01.04.26
SaunaEi
Parvekkeen tiedotKyllä, lasitettu, ilmansuunta: länsi
Lemmikit sallittuKyllä
Muut ehdotAsukkaan vastuulla ottaa oma kotivakuutus. Vuokralainen tekee oman sähkösopimuksen.
Lisätiedotsavuton

Asunnon varustelu

Keittiön varusteluliesi, lieden tyyppi: induktio, astianpesukone, jää-pakastinkaappi
Kylpyhuoneen varustelupeilikaappi, pesukoneliitäntä, lattiamateriaali: laatta, seinämateriaali: laatta, lattialämmitys, huoneiston sähköstä
Lattiamateriaalilaminaatti
Huoneistokohtainen varastoKyllä, irtaimistovarasto
VaatehuoneEi
LisätiedotSavuton huoneisto

Hinta ja kustannukset

Vuokra / kk640 €
Vuokravakuus640 €
Sopimuksen tyyppiToistaiseksi voimassaoleva, vuokrasopimus voi päättyä aikaisintaan 6 kuukauden päästä ilman sopimussakkoa
Vesimaksu20 €/hlö/kk
Vesimaksun lisätiedottasataan kerran vuodessa

Taloyhtiön tiedot

UudiskohdeKyllä
Taloyhtiön nimiKehyskatu 9 -Kiinteistö Oy Onnenlähde
Rakennuksen tyyppiASUINKERROSTALO
Rakennusvuosi2026
Huoneistojen lukumäärä42
Kerroksia7
HissiKyllä
EnergialuokkaA
EnergiatodistusKyllä
AutopaikatAutopaikkoja hallinnoi ulkopuolinen toimija, vuokrattava erikseen
Sähköauton latauspisteEi.
Yhteiset tilatkuivaushuone, kerhohuone, ulkoiluvälinevarasto, sauna, pesutupa
Lisätiedotsavuton talo, esteetön, lemmikit sallittu

Sijainti kartalla

Kohdetta välittää:

Hannele Lähteenmäki

vuokravälittäjä

hannele.lahteenmaki@inna.fi

INNA Asuntovuokraus, Tampere

Puh. 030 609 5555