Tervetuloa uusille verkkosivuillemme! Retta Asuntovuokraus on nyt INNA Asuntovuokraus.



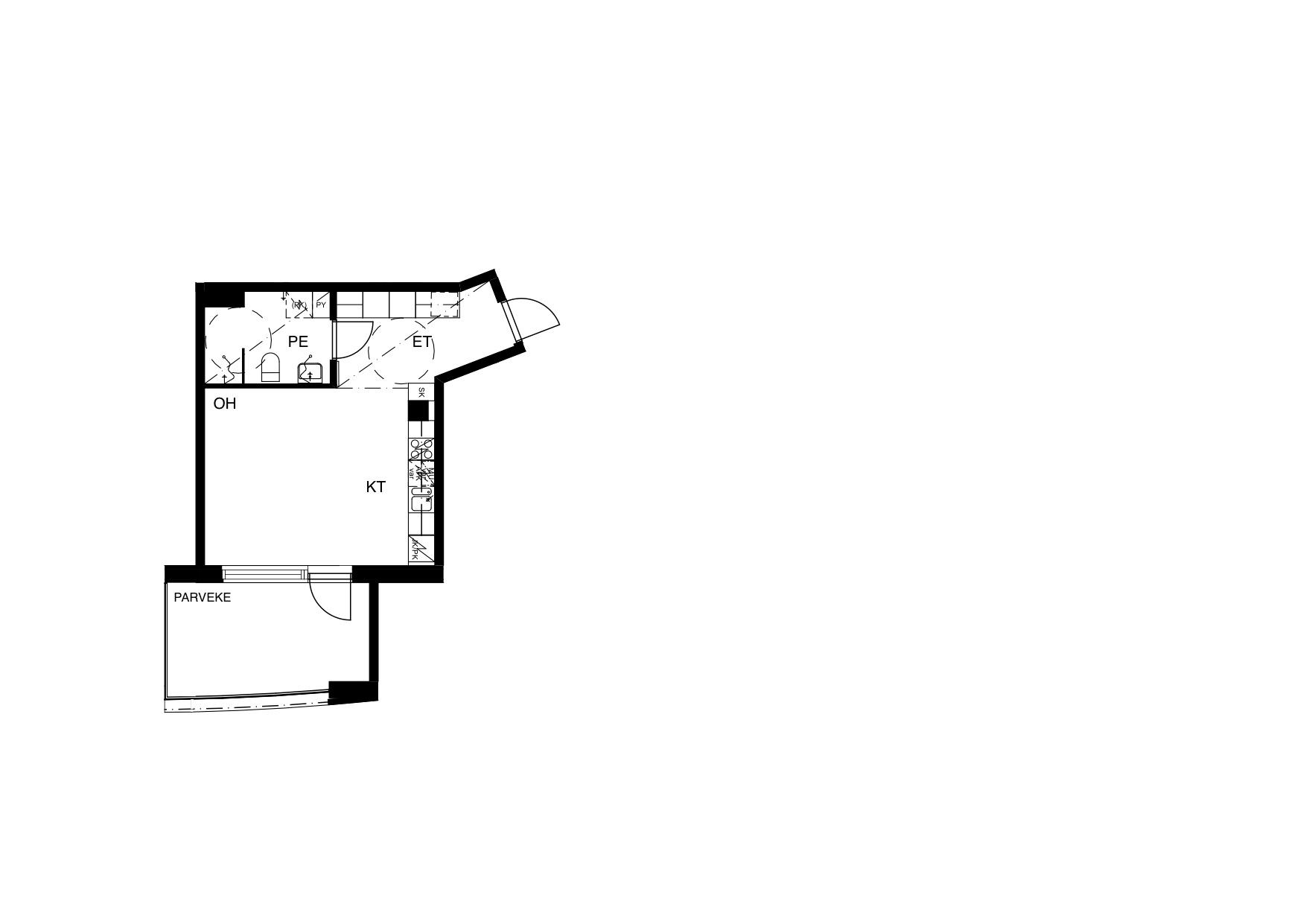
Toimiva yksiö ensimmäisessä kerroksessa! Tämä 35 neliöinen koti tarjoaa avaran ja käytännöllisen pohjaratkaisun ensimmäisessä kerroksessa. Keittiössä on hyvin säilytys- ja laskutilaa sekä laadukkaat kodinkoneet. Kylpyhuoneessa on lattialämmitys ja paikka pyykinpesukoneelle, mikä lisää asumismukavuutta. Tervetuloa tutustumaan! Lemmikit toivotetaan myös tervetulleiksi. Kiinnostuitko? Voit täyttää asuntohakemuksen asuntoilmoitukselta verkkosivuiltamme. Hakemus ei sido sinua mihinkään. Olemme sinuun yhteydessä, mikäli voimme tarjota asuntoa sinulle. Asunnonhakuun liittyvissä kysymyksissä voitte olla yhteydessä vuokravälittäjään etunimi.sukunimi@inna.fi tai asiakaspalveluumme, puh. 030 609 5555 tai asuntovuokraus@inna.fi
| Katuosoite | Lotankatu 1 C 41 |
| Pinta-ala | 35 m² |
| Kaupunki | Espoo |
| Kaupunginosa | Painiitty |
| Kerros | 1/4 |
| Kunto | hyvä |
| Huoneiston vapautuminen | Vapautumassa 02.04.26 |
| Sauna | Ei |
| Parvekkeen tiedot | Kyllä, lasitettu, lasitettu |
| Lemmikit sallittu | Kyllä |
| Muut ehdot | Asukkaan vastuulla ottaa oma kotivakuutus. Vuokralainen tekee oman sähkösopimuksen. |
| Lisätiedot | savuton |
| Keittiön varustelu | liesi, lieden tyyppi: keraaminen liesi, astianpesukone, jää-pakastinkaappi |
| Kylpyhuoneen varustelu | peilikaappi, pesukoneliitäntä, lattiamateriaali: laatta, seinämateriaali: laatta, lattialämmitys, mukavuuslämmitys asunnon sähköstä |
| Lattiamateriaali | laminaatti |
| Huoneistokohtainen varasto | Kyllä, irtaimistovarasto |
| Vaatehuone | Ei |
| Lisätiedot | Savuton huoneisto |
| Vuokra / kk | 720 € |
| Vuokravakuus | 350 € / 720 € sopimustyypistä riippuen |
| Sopimuksen tyyppi | Toistaiseksi voimassaoleva tai toistaiseksi voimassaoleva, vuokrasopimus voi päättyä aikaisintaan 12 kuukauden päästä ilman sopimussakkoa |
| Kampanjatieto | Kaksi kuukautta ilmaista asumista, edellyttää 24 kuukauden sitoutumisen tai yksi kuukausi ilmaista asumista, edellyttää 12 kuukauden sitoutumisen. |
| Vesimaksu | 24 €/hlö/kk |
| Uudiskohde | Ei |
| Taloyhtiön nimi | Lotankatu 1 - Asunto Oy Lotankulma Espoo |
| Rakennuksen tyyppi | ASUINKERROSTALO |
| Rakennusvuosi | 2012 |
| Huoneistojen lukumäärä | 63 |
| Kerroksia | 4 |
| Hissi | Kyllä |
| Energialuokka | B 2007 |
| Energiatodistus | Ei |
| Autopaikat | Autopaikkoja hallinnoi ulkopuolinen toimija, vuokrattava erikseen |
| Sähköauton latauspiste | Ei. |
| Lisätiedot | savuton talo, lemmikit sallittu |
Joanna Mehto
Vuokrausneuvottelija
Puh. +358449016141
joanna.mehto@inna.fiINNA Asuntovuokraus, Pääkaupunkiseutu