Tervetuloa uusille verkkosivuillemme! Retta Asuntovuokraus on nyt INNA Asuntovuokraus.





















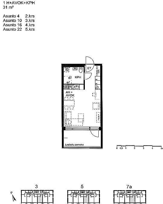
Koti aivan metroaseman vieressä! Tarjolla pikkukoti erinomaisella sijainnilla. Asunnossa on astianpesukone, jääkaappi–pakastin sekä keraaminen liesi. Tilavassa, laatoitetussa kylpyhuoneessa on allaskaappi ja peilikaappi. Huoneiston levyinen lasitettu parveke tuo mukavasti lisätilaa asumiseen, ja ikkunoissa on sälekaihtimet. Asuntoon kuuluu mukavan kokoinen, ikkunallinen varasto, joka sijaitsee samassa kerroksessa. Autopaikka on mahdollista vuokrata paikoitustalosta, jossa on myös sähköautojen latauspisteitä. Taloyhtiön ylimmässä kerroksessa (talot 5 ja 7) sijaitsee saunaosasto terasseineen sekä oleskelutila saunavuoron yhteydessä. Lisäksi käytössäsi on pesutupa. Huomioithan, että ilmoituksen kuvat ovat vastaavasta asunnosta ja kerrosnäkymä saattaa vaihdella. Vakuus 350 € Lemmikit tervetulleita Kiinnostuitko? Voit täyttää asuntohakemuksen verkkosivuillamme asuntoilmoituksen kautta. Hakemus ei sido sinua mihinkään. Olemme sinuun yhteydessä, mikäli voimme tarjota asuntoa sinulle. Asunnonhakuun liittyvissä kysymyksissä voit olla yhteydessä asiakaspalveluumme: puh. 030 609 5555 asuntovuokraus@inna.fi
| Katuosoite | Retkeilijänkatu 7a A 16 |
| Pinta-ala | 31 m² |
| Kaupunki | Helsinki |
| Kaupunginosa | Vuosaari |
| Kerros | 4/6 |
| Huoneiston vapautuminen | Vapautumassa 01.04.26 |
| Sauna | Ei |
| Parvekkeen tiedot | Kyllä, lasitettu |
| Lemmikit sallittu | Kyllä |
| Muut ehdot | Asukkaan vastuulla ottaa oma kotivakuutus. Vuokralainen tekee oman sähkösopimuksen. |
| Lisätiedot | savuton |
| Keittiön varustelu | liesi, lieden tyyppi: keraaminen liesi, astianpesukone, astianpesukoneen leveys: 60cm, jää-pakastinkaappi |
| Kylpyhuoneen varustelu | peilikaappi, pesukoneliitäntä, lattiamateriaali: laatta, seinämateriaali: laatta, lattialämmitys, sähkö |
| Lattiamateriaali | laminaatti |
| Huoneistokohtainen varasto | Kyllä, Irtainvarasto |
| Vaatehuone | Ei |
| Vuokra / kk | 715 € |
| Vuokravakuus | 350 € |
| Sopimuksen tyyppi | Toistaiseksi voimassaoleva |
| Vesimaksu | 24 €/hlö/kk |
| Uudiskohde | Ei |
| Taloyhtiön nimi | Retkeilijänkatu 3-7a - Asunto Oy Helsingin Retkeilijänkatu 3-7 |
| Rakennuksen tyyppi | ASUINKERROSTALO |
| Rakennusvuosi | 2015 |
| Huoneistojen lukumäärä | 75 |
| Kerroksia | 6 |
| Hissi | Kyllä |
| Energialuokka | C2013 |
| Energiatodistus | Ei |
| Antennityyppi | Kaapelitelevisiojärjestelmä |
| Autopaikat | Autopaikkoja hallinnoi ulkopuolinen toimija, vuokrattava erikseen |
| Sähköauton latauspiste | Kyllä. |
| Yhteiset tilat | sauna, pesutupa |
| Lisätiedot | lemmikit sallittu |
Taina Mertala
Tiiminvetäjä, asuntovuokrauspalvelut
taina.mertala@inna.fiINNA Asuntovuokraus, Pääkaupunkiseutu