Tervetuloa uusille verkkosivuillemme! Retta Asuntovuokraus on nyt INNA Asuntovuokraus.

Asunnossa:

  • Parveke
  • Laajakaista kuuluu vuokraan
  • Huoneistokohtainen varasto
  • Astianpesukone
  • Lemmikit sallittu
  • Virtuaaliesittely

Talossa:

  • Hissi
  • Sauna
  • Rakennusvuosi 2018
  • Pesutupa

Asunnon kuvaus

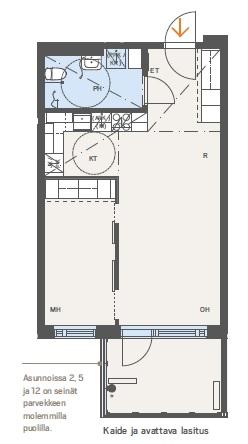
6. kerroksen kaksio etsii uusia asukkaita. Asunto sijaitsee rauhallisella alueella Vantaan Asolassa ja talon lähettyviltä on hyvät kulkuyhteydet, sekä lähikauppa Lidl Asola löytyy n. 200m päästä. Asunnossa on toimiva pohjaratkaisu, sekä modernit kaluste- ja materiaalivalinnat. Lasitettu parveke lisää asumisviihtyvyyttä ja keittiöstä löytyy astianpesukone helpottamaan arjen askareita. Lemmikit ovat tervetulleita. Kysy vuokrattavista autopaikoista lisää välittäjältä. Kiinnostuitko? Voit täyttää asuntohakemuksen asuntoilmoitukselta verkkosivuiltamme. Hakemus ei sido sinua mihinkään. Olemme sinuun yhteydessä, mikäli voimme tarjota asuntoa sinulle. Asunnonhakuun liittyvissä kysymyksissä voitte olla yhteydessä asiakaspalveluumme, puh. 030 609 5555 tai asuntovuokraus@inna.fi

Asunnon tiedot

KatuosoiteElmontie 9 A 33
Pinta-ala45.5 m²
KaupunkiVantaa
KaupunginosaAsola
Kerros6/0
Kuntohyvä
Huoneiston vapautuminenVapautumassa 02.03.26
SaunaEi
Parvekkeen tiedotKyllä, lasitettu
VirtuaaliesittelyKyllä
Lemmikit sallittuKyllä
Muut ehdotAsukkaan vastuulla ottaa oma kotivakuutus. Vuokralainen tekee oman sähkösopimuksen.
Lisätiedotsavuton

Asunnon varustelu

Keittiön varusteluliesi, lieden selite: keraaminen keittotaso, upotettu kalusteuuni, astianpesukone, jääkaappi
Kylpyhuoneen varustelupeilikaappi, pesukoneliitäntä, lattiamateriaali: laatta, seinämateriaali: laatta, lattialämmitys, mukavuuslämmitys vuokralaisen sähköstä
Lattiamateriaaliparketti
Huoneistokohtainen varastoKyllä, Irtainvarasto
VaatehuoneEi

Hinta ja kustannukset

Vuokra / kk835 €
Vuokravakuus835 €
Sopimuksen tyyppiToistaiseksi voimassaoleva, vuokrasopimus voi päättyä aikaisintaan 6 kuukauden päästä ilman sopimussakkoa
Vesimaksu24 €/hlö/kk

Taloyhtiön tiedot

UudiskohdeEi
Taloyhtiön nimiElmontie 9 - Asunto Oy Vantaan Laventeli
Rakennuksen tyyppiASUINKERROSTALO
Rakennusvuosi2018
Huoneistojen lukumäärä11
Kerroksia0
HissiKyllä
EnergialuokkaC2013
EnergiatodistusEi
AutopaikatAutopaikkoja hallinnoi ulkopuolinen toimija, vuokrattava erikseen
Sähköauton latauspisteEi.
Yhteiset tilatulkoiluvälinevarasto, sauna, pesutupa
Lisätiedotlemmikit sallittu

Sijainti kartalla

Kohdetta välittää:

Sonja Gupta

Vuokrausneuvottelija

Puh. +358444946420

sonja.gupta@inna.fi

INNA Asuntovuokraus, Pääkaupunkiseutu