











Kodikas toisen kerroksen koti, jonka avokeittiöratkaisu avartaa tilaa entisestään. Laatoitetussa kylpyhuoneessa on peilikaappi sekä tilavaraus pyykinpesukoneelle. Olohuoneessa on tilaa vaikkapa etätyöpisteelle, ruokapöydälle ja sohvaryhmälle. Etelä-länsi-suuntaan avautuva lasitettu, tilava parveke toimii käytännössä lisähuoneena, sillä sen lasitus mahdollistaa tilan hyödyntämisen pitkälle syksyyn ja jopa ympäri vuoden. Asunnon kuvat on otettu vastaavan asuntotyypin asunnosta, joten pieniä eroja esimerkiksi maisemien osalta voi esiintyä. Mikäli asunnossa on vielä rautaliesi, päivitetään se induktiolieteen viimeistään vuokrauksen yhteydessä. Autopaikkoja on saatavilla yhteistyökumppaneiden kautta, erityisesti Selloparkista. Autopaikat vuokraa huoltoyhtiö, ja paikkoja on heti vapaana. Asuntoon voit valita joustavan toistaiseksi voimassa olevan sopimustyypin, jossa ensimmäinen mahdollinen irtisanomisaika on välittömästi 1kk kuluttua sopimuksen aloituksesta tai hyödyntää kampanjaamme, jossa sitoutumalla asuntoon vuodeksi säästät yhden kokonaisen kuukauden vuokran! Kiinnostuitko? Voit täyttää asuntohakemuksen asuntoilmoitukselta verkkosivuiltamme. Hakemus ei sido sinua mihinkään. Olemme sinuun yhteydessä, mikäli voimme tarjota asuntoa sinulle. Asunnonhakuun liittyvissä kysymyksissä voitte olla yhteydessä asiakaspalveluumme, puh. 030 609 5555 tai asuntovuokraus@inna.fi
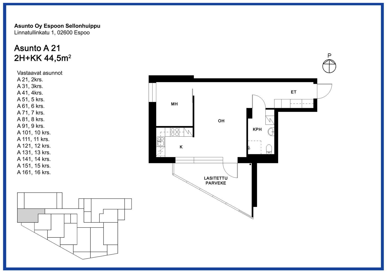
| Katuosoite | Linnatullinkatu 1 A 21 |
| Pinta-ala | 44.5 m² |
| Kaupunki | Espoo |
| Kaupunginosa | Leppävaara |
| Kerros | 2/20 |
| Kunto | hyvä |
| Huoneiston vapautuminen | Heti vapaa |
| Sauna | Ei |
| Parvekkeen tiedot | Kyllä, lasitettu |
| Lemmikit sallittu | Kyllä |
| Muut ehdot | Asukkaan vastuulla ottaa oma kotivakuutus. Vuokralainen tekee oman sähkösopimuksen. |
| Lisätiedot | savuton |
| Keittiön varustelu | liesi, lieden tyyppi: induktio, astianpesukone, jää-pakastinkaappi |
| Kylpyhuoneen varustelu | peilikaappi, pesukoneliitäntä, lattiamateriaali: laatta, seinämateriaali: laatta |
| Lattiamateriaali | laminaatti |
| Huoneistokohtainen varasto | Kyllä, irtaimistovarasto |
| Vaatehuone | Ei |
| Vuokra / kk | 935 € |
| Vuokravakuus | 350 € / 350 € sopimustyypistä riippuen |
| Sopimuksen tyyppi | Toistaiseksi voimassaoleva tai toistaiseksi voimassaoleva, vuokrasopimus voi päättyä aikaisintaan 12 kuukauden päästä ilman sopimussakkoa |
| Kampanjatieto | Ensimmäisen kokonaisen kuukauden vuokra 0€. Vuokraedun saaminen edellyttää 12 kuukauden sitoutumista asuntoon. Etu voimassa uusiin vuokrasopimuksiin. Ei koske käyttökorvauksia (autopaikka, vesimaksu) |
| Vesimaksu | 20 €/hlö/kk |
| Uudiskohde | Ei |
| Taloyhtiön nimi | Linnatullinkatu 1 - Asunto Oy Espoon Sellonhuippu |
| Rakennuksen tyyppi | ASUINKERROSTALO |
| Rakennusvuosi | 2011 |
| Huoneistojen lukumäärä | 151 |
| Kerroksia | 20 |
| Hissi | Kyllä |
| Energialuokka | D2013 |
| Energiatodistus | Ei |
| Antennityyppi | Kaapelitelevisiojärjestelmä |
| Autopaikat | Autopaikkoja hallinnoi ulkopuolinen toimija, vuokrattava erikseen |
| Sähköauton latauspiste | Ei. |
| Yhteiset tilat | ulkoiluvälinevarasto, sauna, pesutupa |
| Lisätiedot | lemmikit sallittu |