Valoisa ja toimivapohjainen kaksio ranskalaisella parvekkeella – kolmannen kerroksen koti! Tervetuloa tutustumaan tähän viihtyisään ja valoisan pohjaratkaisun omaavaan kaksioon, joka sijaitsee talon kolmannessa kerroksessa! Tämä koti hurmaa selkeydellään ja arjen toimivuutta tukevilla ratkaisuillaan. Avara ja valoisa olohuone toimii kodin sydämenä – suuret ikkunat tuovat tilaan runsaasti luonnonvaloa, ja ranskalainen parveke lisää avaruuden tuntua. Keittiö on käytännöllisesti suunniteltu ja tarjoaa hyvin säilytys- ja työskentelytilaa niin arkikokkailuun kuin viikonlopun herkkuihin. Makuuhuone tarjoaa rauhallisen paikan levätä, ja tilava vaatekaappi auttaa pitämään kodin järjestyksessä. Kylpyhuoneessa on paikka pyykinpesukoneelle ja kaikki tarpeellinen arjen sujuvuuden takaamiseksi. Tervetuloa ihastumaan – tämä voi olla uusi kotisi! Huom! Kuvat ovat vastaavanlaisesta asunnosta Kiinnostuitko? Voit täyttää asuntohakemuksen asuntoilmoitukselta verkkosivuiltamme. Hakemus ei sido sinua mihinkään. Olemme sinuun yhteydessä, mikäli voimme tarjota asuntoa sinulle. Asunnonhakuun liittyvissä kysymyksissä voitte olla yhteydessä asiakaspalveluumme, puh. 030 609 5555 tai asuntovuokraus@inna.fi
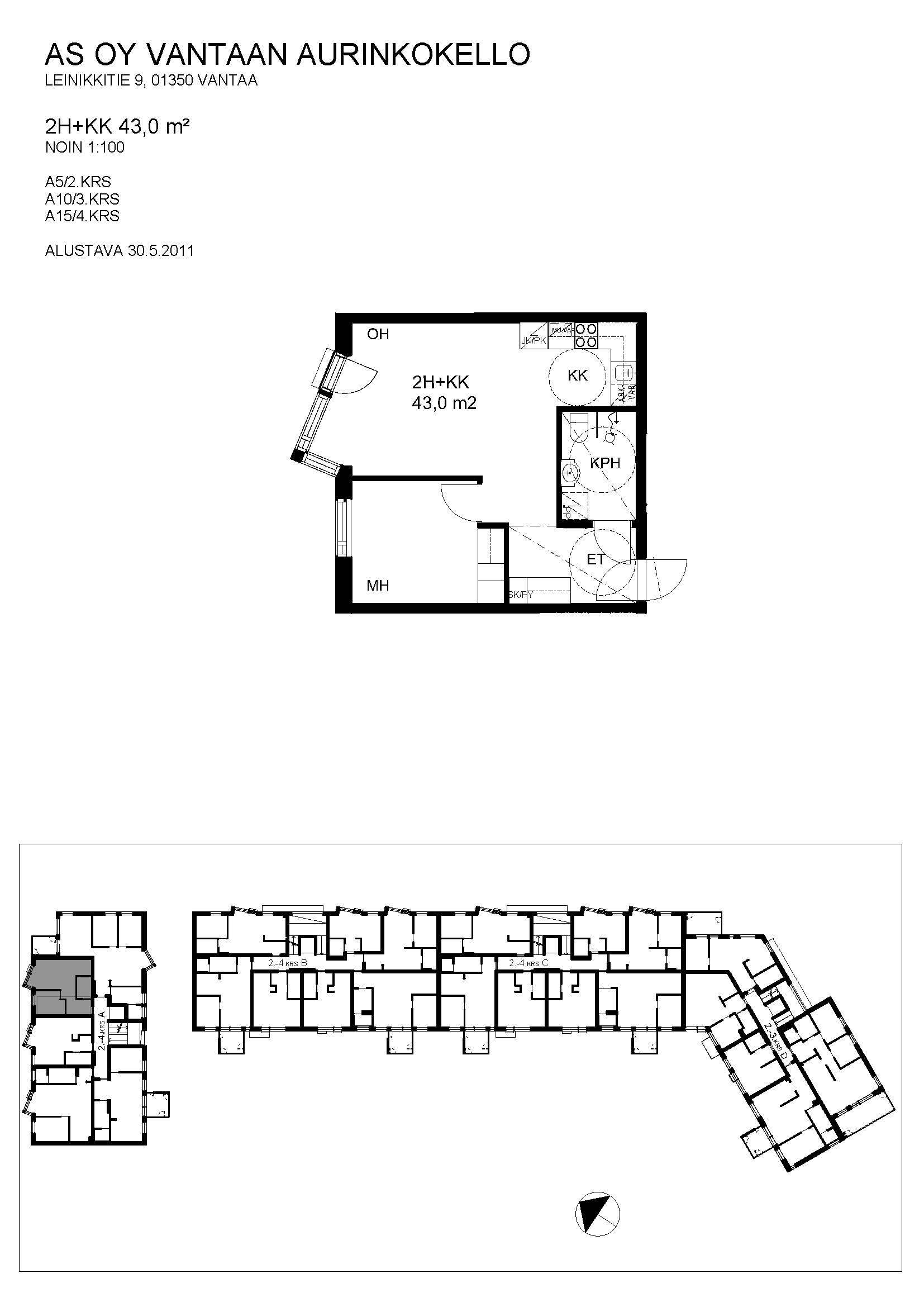
| Katuosoite | Leinikkitie 9 A 10 |
| Pinta-ala | 43 m² |
| Kaupunki | Vantaa |
| Kaupunginosa | Simonkylä |
| Kerros | 3/4 |
| Huoneiston vapautuminen | Vapautumassa 02.06.26 |
| Sauna | Ei |
| Parvekkeen tiedot | Kyllä, ranskalainen |
| Lemmikit sallittu | Kyllä |
| Muut ehdot | Asukkaan vastuulla ottaa oma kotivakuutus. Vuokralainen tekee oman sähkösopimuksen. |
| Lisätiedot | savuton |
| Keittiön varustelu | liesi, astianpesukone, jää-pakastinkaappi |
| Kylpyhuoneen varustelu | peilikaappi, pesukoneliitäntä, lattiamateriaali: laatta, seinämateriaali: laatta, lattialämmitys |
| Lattiamateriaali | laminaatti |
| Huoneistokohtainen varasto | Kyllä, Irtaimistovarasto |
| Vaatehuone | Ei |
| Lisätiedot | Savuton huoneisto |
| Vuokra / kk | 760 € |
| Vuokravakuus | 350 € |
| Sopimuksen tyyppi | Toistaiseksi voimassaoleva, vuokrasopimus voi päättyä aikaisintaan 6 kuukauden päästä ilman sopimussakkoa |
| Vesimaksu | 24 €/hlö/kk |
| Uudiskohde | Ei |
| Taloyhtiön nimi | Leinikkitie 9 -Asunto Oy Vantaan Aurinkokello |
| Rakennuksen tyyppi | ASUINKERROSTALO |
| Rakennusvuosi | 2012 |
| Huoneistojen lukumäärä | 76 |
| Kerroksia | 4 |
| Hissi | Kyllä |
| Energialuokka | B 2007 |
| Energiatodistus | Ei |
| Antennityyppi | Kaapelitelevisiojärjestelmä |
| Autopaikat | Autopaikkoja hallinnoi ulkopuolinen toimija, vuokrattava erikseen |
| Sähköauton latauspiste | Ei. |
| Yhteiset tilat | sauna |
| Lisätiedot | savuton talo, lemmikit sallittu |
Kairit Eenmaa
Vuokravälittäjä
Puh. +358447474855
Kairit.Eenmaa@inna.fiINNA Asuntovuokraus, Pääkaupunkiseutu