Asunnossa:

  • Parveke
  • Laajakaista kuuluu vuokraan
  • Huoneistokohtainen varasto
  • Astianpesukone
  • Lemmikit sallittu

Talossa:

  • Kerroksia 6
  • Hissi
  • Rakennusvuosi 2025
  • Pesutupa

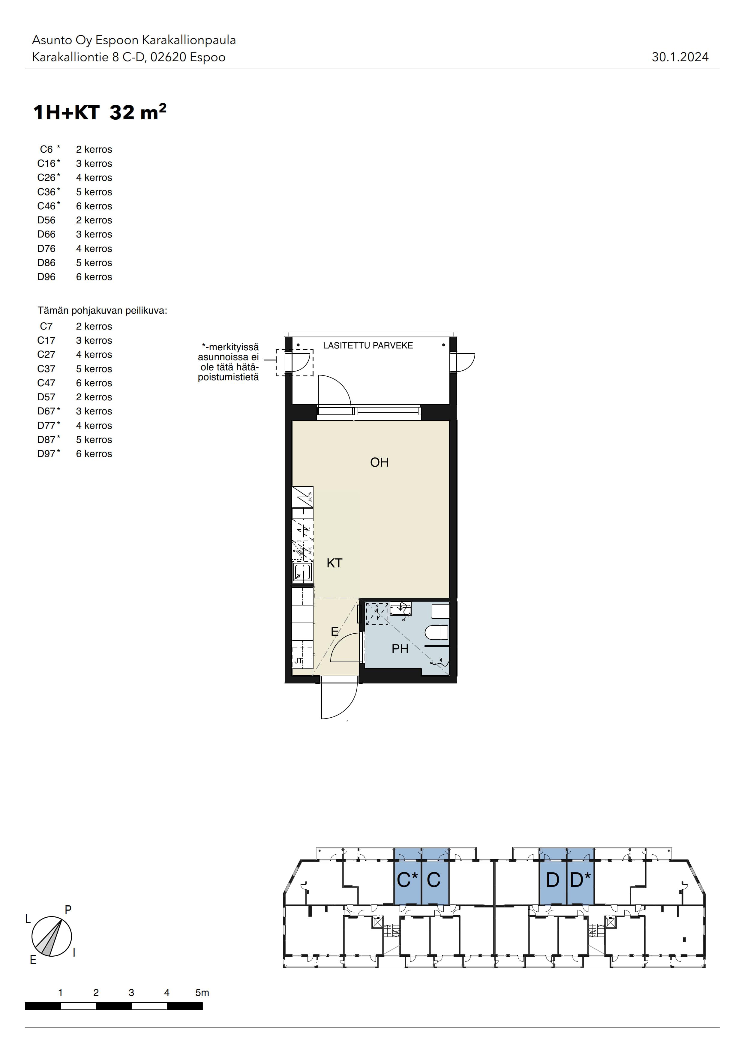
Asunnon kuvaus

Tämä moderni pikkukoti tarjoaa toimivan ja viihtyisän kokonaisuuden. Avokeittiö on varustettu laadukkailla kodinkoneilla, jotka helpottavat arkea ja tuovat ruoanlaittoon sujuvuutta. Kylpyhuone on tyylikkäästi laatoitettu, ja sieltä löytyvät allaslaatikosto, peilikaappi, pyykkikaappi sekä suihkuseinä. Lisäksi tilassa on liitännät ja varaus pyykinpesukoneelle. Vaaleat pintamateriaalit luovat harmonisen ja ajattoman tunnelman. Koko huoneiston levyinen lasitettu parveke toimii lisäoleskelutilana ja mahdollistaa ulkoilmasta nauttimisen aikaisesta keväästä pitkälle syksyyn. Ilmoituksen kuvat ovat vastaavasta asunnosta, ja näkymät voivat vaihdella kerroksen mukaan. Kiinnostuitko? Voit täyttää asuntohakemuksen asuntoilmoitukselta verkkosivuiltamme. Hakemus ei sido sinua mihinkään. Olemme sinuun yhteydessä, mikäli voimme tarjota asuntoa sinulle. Asunnonhakuun liittyvissä kysymyksissä voitte olla yhteydessä välittäjään sähköpostilla. Inna asiakaspalvelu, puh. 030 609 5555.

Asunnon tiedot

KatuosoiteKarakalliontie 8 C 36
Pinta-ala32 m²
KaupunkiEspoo
KaupunginosaKarakallio
Kerros5/6
Huoneiston vapautuminenHeti vapaa
SaunaEi
Parvekkeen tiedotKyllä, lasitettu
Lemmikit sallittuKyllä
Muut ehdotAsukkaan vastuulla ottaa oma kotivakuutus. Vuokralainen tekee oman sähkösopimuksen.
Lisätiedotsavuton

Asunnon varustelu

Keittiön varusteluliesi, astianpesukone, jää-pakastinkaappi
Kylpyhuoneen varustelupeilikaappi, pesukoneliitäntä, lattiamateriaali: laatta, seinämateriaali: laatta, lattialämmitys, mukavuuslattialämmitys asunnon omasta sähköstä
Lattiamateriaalilaminaatti
Huoneistokohtainen varastoKyllä, irtainvarasto
VaatehuoneEi

Hinta ja kustannukset

Vuokra / kk709 €
Vuokravakuus0 €
Sopimuksen tyyppiToistaiseksi voimassaoleva
Vesimaksu27 €/hlö/kk

Taloyhtiön tiedot

UudiskohdeKyllä
Taloyhtiön nimiKarakalliontie 8 - Asunto Oy Espoon Karakallionpaula
Rakennuksen tyyppiASUINKERROSTALO
Rakennusvuosi2025
Huoneistojen lukumäärä101
Kerroksia6
HissiKyllä
EnergialuokkaA 2018
EnergiatodistusKyllä
AutopaikatAutopaikkoja hallinnoi ulkopuolinen toimija, vuokrattava erikseen
Sähköauton latauspisteEi.
Yhteiset tilatkuivaushuone, pesutupa

Sijainti kartalla

Oletko kiinnostunut tästä asunnosta?

Kohdetta välittää:

Matti Lessig-Lajanne

Vuokravälittäjä

Puh. +358306095069

matti.lajanne@inna.fi

INNA Asuntovuokraus, Pääkaupunkiseutu