Tervetuloa uusille verkkosivuillemme! Retta Asuntovuokraus on nyt INNA Asuntovuokraus.

Asunnossa:

  • Parveke
  • Sauna
  • Laajakaista kuuluu vuokraan
  • Huoneistokohtainen varasto
  • Astianpesukone
  • Lemmikit sallittu

Talossa:

  • Hissi
  • Sauna
  • Rakennusvuosi 2025
  • Pesutupa

Asunnon kuvaus

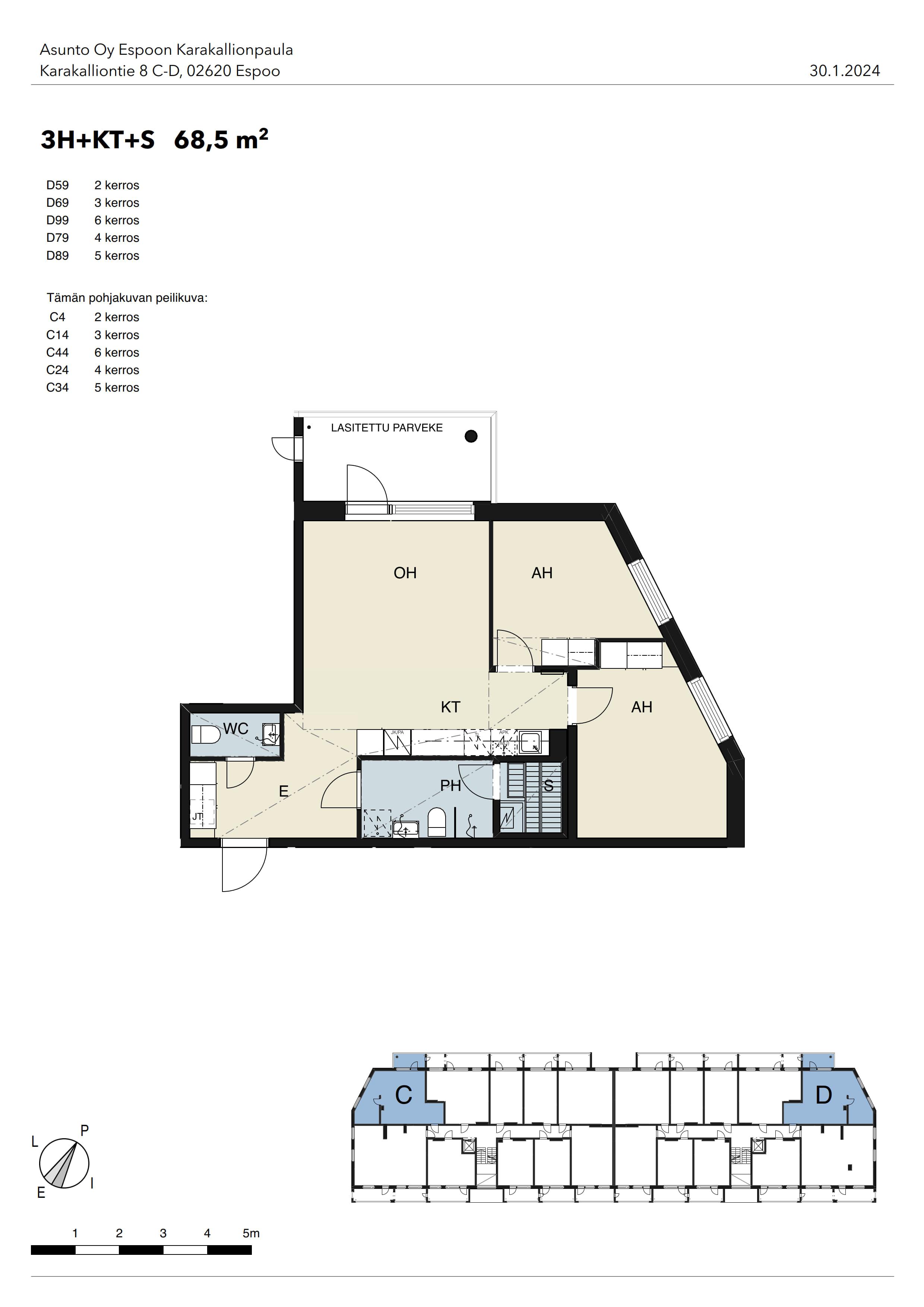
Neljännen kerroksen kahden makuuhuoneen koti erinomaisilla mukavuuksilla. Kodin vaaleat pintamateriaalit ja moderneilla kodinkoneilla varusteltu tyylikäs avokeittiö luo kodin yleisilmeestä raikkaan ja kodikkaan. Molempien makuuhuoneiden yhteydessä mukavasti säilytystilaa. Huolella suunniteltu pohjaratkaisu tekee arjesta sujuvaa. Erillis-wc ja tilava kylpyhuone tekevät päivittäisistä toimista vaivatonta. Kokonaisuuden kruunaa oma sauna, jossa lempeät löylyt rentouttavat päivän päätteeksi. Laatoitetussa kylpyhuoneessa liitäntä pyykinpesukoneelle. Ilmoituksen kuvat huoneistoa vastaavasta asunnosta. Huomioithan, että näkymät vaihtelevat kerroksien välillä. Kiinnostuitko? Voit täyttää asuntohakemuksen asuntoilmoitukselta verkkosivuiltamme. Hakemus ei sido sinua mihinkään. Olemme sinuun yhteydessä, mikäli voimme tarjota asuntoa sinulle. Asunnonhakuun liittyvissä kysymyksissä voitte olla yhteydessä välittäjään sähköpostilla, Inna asiakaspalvelu, puh. 030 609 5555 ark. 8-16.

Asunnon tiedot

KatuosoiteKarakalliontie 8 D 79
Pinta-ala68.5 m²
KaupunkiEspoo
KaupunginosaKarakallio
Kerros4/0
Huoneiston vapautuminenHeti vapaa
SaunaKyllä
Parvekkeen tiedotKyllä, lasitettu
Lemmikit sallittuKyllä
Muut ehdotAsukkaan vastuulla ottaa oma kotivakuutus. Vuokralainen tekee oman sähkösopimuksen.
Lisätiedotsavuton

Asunnon varustelu

Keittiön varusteluliesi, astianpesukone, jää-pakastinkaappi
Kylpyhuoneen varustelupeilikaappi, pesukoneliitäntä, lattiamateriaali: laatta, seinämateriaali: laatta, erillinen wc, lattialämmitys, mukavuuslattialämmitys asunnon omasta sähköstä
Lattiamateriaalilaminaatti
Huoneistokohtainen varastoKyllä, irtainvarasto
VaatehuoneEi

Hinta ja kustannukset

Vuokra / kk1270 €
Vuokravakuus0 €
Sopimuksen tyyppiToistaiseksi voimassaoleva
Vesimaksu27 €/hlö/kk

Taloyhtiön tiedot

UudiskohdeKyllä
Taloyhtiön nimiKarakalliontie 8 - Asunto Oy Espoon Karakallionpaula
Rakennuksen tyyppiASUINKERROSTALO
Rakennusvuosi2025
Huoneistojen lukumäärä101
Kerroksia0
HissiKyllä
EnergialuokkaA 2018
EnergiatodistusKyllä
AutopaikatAutopaikkoja hallinnoi ulkopuolinen toimija, vuokrattava erikseen
Sähköauton latauspisteEi.
Yhteiset tilatkuivaushuone, sauna, pesutupa
Lisätiedotlemmikit sallittu

Sijainti kartalla

Kohdetta välittää:

Matti Lessig-Lajanne

Vuokravälittäjä

Puh. +358503258838

matti.lajanne@inna.fi

INNA Asuntovuokraus, Pääkaupunkiseutu