


















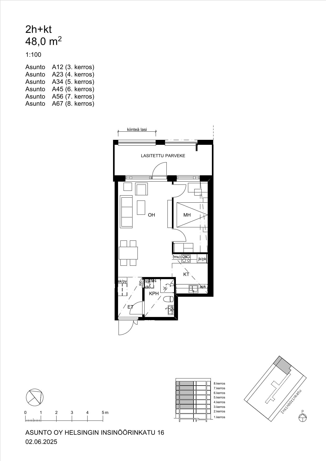
2h, kt, 48 m²
1089 €/kk
Vuokravakuus 0 €
Tämä upea koti sijaitsee kuudennessa kerroksessa. Keittiö on varustettu laadukkailla kodinkoneilla. Vaaleat pintamateriaalit luovat kodikkaan ja ajattoman tunnelman. Avoin makuuhuone ja eteinen tarjoavat sopivasti säilytystilaa komeroilla. Kauniisti laatoitetussa kylpyhuoneessa on allaskaappi, peilikaappi, kääntyvät suihkuseinät sekä liitäntä pyykinpesukoneelle. Huoneiston levyinen lasitettu parveke antaa lisätilaa aikaisesta keväästä pitkälle syksyyn. Asunnon vuokraus on helppoa: • Voit vuokrata asunnon suoraan verkkokaupastamme • Tai täyttää asuntohakemuksen kohteen sivulle Mikäli voimme tarjota asuntoa sinulle, saat asuntotarjouksen sähköpostitse. Huomioithan: Kuvat ovat vastaavantyyppisestä asunnosta, ja näkymät voivat vaihdella kerroksittain. Lisätiedot ja asiakaspalvelu: 030 609 5555 ja asuntovuokraus@rettamanagement.fi
| Katuosoite | Insinöörinkatu 16 A 45 |
| Pinta-ala | 48 m² |
| Kaupunki | Helsinki |
| Kaupunginosa | Herttoniemi |
| Kerros | 6/8 |
| Huoneiston vapautuminen | Vapautumassa 01.05.26 |
| Sauna | Ei |
| Parvekkeen tiedot | Kyllä, lasitettu |
| Lemmikit sallittu | Kyllä |
| Muut ehdot | Asukkaan vastuulla ottaa oma kotivakuutus. Vuokralainen tekee oman sähkösopimuksen. |
| Lisätiedot | savuton |
| Keittiön varustelu | liesi, lieden tyyppi: induktio, lieden selite: induktiotaso,-kalusteuuni, astianpesukone, jää-pakastinkaappi |
| Kylpyhuoneen varustelu | peilikaappi, pesukoneliitäntä, lattiamateriaali: laatta, seinämateriaali: laatta, lattialämmitys, mukavuuslattialämmitys asunnon omasta sähköstä |
| Lattiamateriaali | laminaatti |
| Huoneistokohtainen varasto | Kyllä, irtainvarasto |
| Vaatehuone | Ei |
| Vuokra / kk | 1089 € |
| Vuokravakuus | 0 € |
| Sopimuksen tyyppi | Toistaiseksi voimassaoleva |
| Vesimaksu | 27 €/hlö/kk |
| Uudiskohde | Kyllä |
| Taloyhtiön nimi | Insinöörinkatu 16 - Asunto Oy Helsingin Insinöörinkatu 16 |
| Rakennuksen tyyppi | ASUINKERROSTALO |
| Rakennusvuosi | 2025 |
| Huoneistojen lukumäärä | 73 |
| Kerroksia | 8 |
| Hissi | Kyllä |
| Energialuokka | A 2018 |
| Energiatodistus | Kyllä |
| Autopaikat | Autopaikkoja hallinnoi ulkopuolinen toimija, vuokrattava erikseen |
| Sähköauton latauspiste | Kyllä. |
| Yhteiset tilat | kuivaushuone, kerhohuone, sauna, pesutupa |