































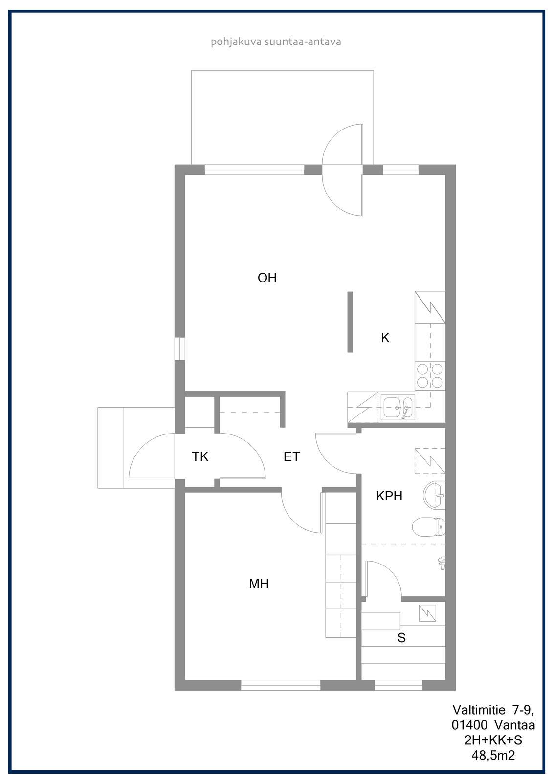
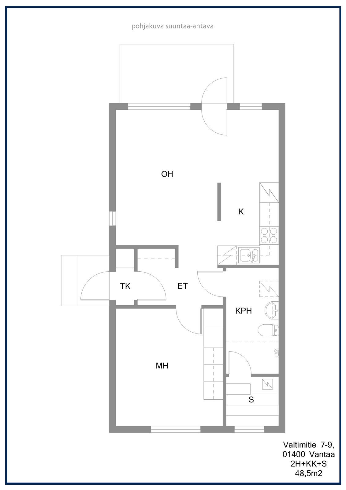
2h, kt, s, 48.5 m²
920 €/kk
Vuokravakuus 250 €
Valoisa ja tilava päätyhuoneisto rivitalossa – kesäksi omalle pihalle! Tässä valoisassa kodissa on kaikki, mitä tarvitset viihtyisään arkeen. Keittiö on moderni ja varustettu mm. induktiotaso, - kalusteuunilla, astianpesukoneella sekä jääpakastinkaapin avulla. Laatoitetussa kylpyhuoneessa on kätevä allaslaatikosto, peilikaappi sekä tilavaraus pyykinpesukoneelle. Oman saunan löylyistä pääset nauttimaan milloin vain, ja ikkuna tuo saunaan luonnonvaloa, luoden raikkaan tunnelman. Makuuhuoneessa on sopivasti säilytystilaa kaapistoissa. Olohuoneesta pääset suoraan omalle pihalle, joka mahdollisuuden nauttia ulkoilmasta ja lämpimänä vuodenaikana vaikkapa puutarhan hoitoa. *Ilmoituksen kuvat vastaavasta asunnosta Yhtiön rauhaisalla sisäpihalla leikkipaikat. Kylmä varasto kuuluu asunnolle. Lemmikit ovat tervetulleita! Kohteesta on mahdollista vuokrata lämpötolpallinen autopaikka. (Paikkoja on rajoitettu määrä). Autopaikkatilanteen voi varmistaa: Aimo Park Oy/ p. 020 7812480 (ma-pe 9-16) asukaspysakointi@aimopark.fi Kiinnostuitko? Vuokraa verkosta tai jätä hakemus kohteen sivulle, mikäli voimme tarjota asuntoa, lähetämme asuntotarjouksen sähköpostitse. Lisätietoja välittäjältä sähköpostitse. Yleisimpiin vuokraukseen liittyvissä asioissa voit olla yhteydessä asiakaspalveluumme p. 030 609 5000, arkisin klo 8-16.
| Katuosoite | Valtimotie 7-9 D 23 |
| Pinta-ala | 48.5 m² |
| Kaupunki | Vantaa |
| Kaupunginosa | Asola |
| Kerros | 1/0 |
| Huoneiston vapautuminen | Vapautumassa 01.05.26 |
| Sauna | Ei |
| Parvekkeen tiedot | Ei, Terassi + piha |
| Lemmikit sallittu | Kyllä |
| Muut ehdot | Asukkaan vastuulla ottaa oma kotivakuutus. Vuokralainen tekee oman sähkösopimuksen. |
| Lisätiedot | savuton |
| Keittiön varustelu | liesi, lieden tyyppi: induktio, lieden selite: induktiotaso,-kalusteuuni, astianpesukone, astianpesukoneen leveys: 60cm, jää-pakastinkaappi |
| Kylpyhuoneen varustelu | lattiamateriaali: laatta, seinämateriaali: laatta |
| Lattiamateriaali | laminaatti |
| Huoneistokohtainen varasto | Ei |
| Vaatehuone | Ei |
| Vuokra / kk | 920 € |
| Vuokravakuus | 250 € |
| Sopimuksen tyyppi | Toistaiseksi voimassaoleva |
| Vesimaksu | 22 €/hlö/kk |
| Uudiskohde | Ei |
| Taloyhtiön nimi | Valtimotie 7-9 - Vantaan Valtimotie 7-9 |
| Rakennuksen tyyppi | RIVITALO |
| Rakennusvuosi | 1999 |
| Huoneistojen lukumäärä | 32 |
| Kerroksia | 0 |
| Hissi | Ei |
| Energialuokka | E2007 |
| Energiatodistus | Kyllä |
| Autopaikat | Autopaikkoja hallinnoi ulkopuolinen toimija, vuokrattava erikseen |
| Sähköauton latauspiste | Ei. |
| Lisätiedot | lemmikit sallittu |
Veera Wollsten
Vuokrausneuvottelija
Puh. +358306095579
Veera.Wollsten@inna.fiINNA Asuntovuokraus, Pääkaupunkiseutu