


















Yhdeksännen (9) kerroksen valoisa kulmahuoneisto. Tässä kodissa on vaaleilla pintamateriaaleilla sekä laadukkailla kodinkoneilla varusteltu moderni avokeittiö. Kylpyhuone on tilava ja siellä on mukavasti säilytystilaa ja kaunis laatoitus, mikä tekee siitä käytännöllisen ja tyylikkään myös tilavaraus ja liitäntä on pyykinpesukoneelle. Lasitettu parveke antaa lisätilaa aikaisin keväällä pitkälle syksyyn. Lemmikit myös tervetulleita. Ilmoituksen kuvat huoneistoa vastaavasta asunnosta. Huomioithan, että näkymät vaihtelevat kerroksien välillä. Kiinnostuitko? Tämänkin kodin voit vuokrata verkkokaupastamme tai jättää hakemuksen asuntoilmoitukselta verkkosivuillamme. Asunnonhakuun liittyvissä kysymyksissä voitte olla yhteydessä asiakaspalveluumme, puh. 030 609 5555 tai asuntovuokraus@inna.fi
| Katuosoite | Matroonankatu 2 A 84 |
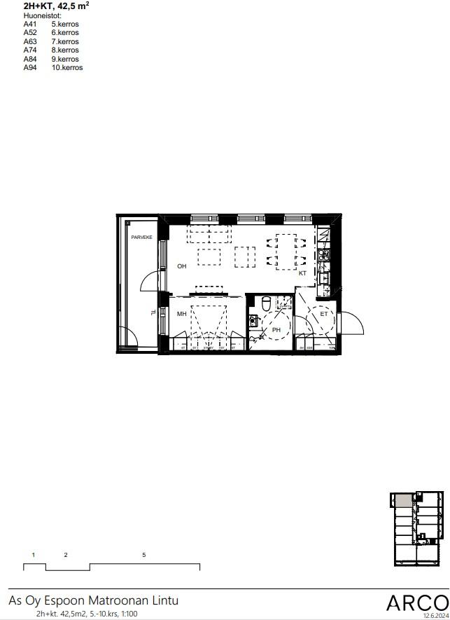
| Pinta-ala | 42.5 m² |
| Kaupunki | Espoo |
| Kaupunginosa | Finnoo |
| Kerros | 9/17 |
| Kunto | erinomainen |
| Huoneiston vapautuminen | Heti vapaa |
| Sauna | Ei |
| Parvekkeen tiedot | Kyllä, lasitettu, huoneiston levyinen, ilmansuunta: länsi |
| Lemmikit sallittu | Kyllä |
| Muut ehdot | Asukkaan vastuulla ottaa oma kotivakuutus. Vuokralainen tekee oman sähkösopimuksen. |
| Lisätiedot | savuton |
| Keittiön varustelu | liesi, lieden tyyppi: keraaminen liesi, astianpesukone, jää-pakastinkaappi, liesituuletin |
| Kylpyhuoneen varustelu | peilikaappi, pesukoneliitäntä, lattiamateriaali: laatta, seinämateriaali: laatta, lattialämmitys, sähkö, suihkuseinä, allaskaappi |
| Lattiamateriaali | vinyylilankku |
| Huoneistokohtainen varasto | Kyllä, Irtainvarasto |
| Vaatehuone | Ei |
| Lisätiedot | Savuton huoneisto |
| Vuokra / kk | 860 € |
| Vuokravakuus | 350 € / 350 € sopimustyypistä riippuen |
| Sopimuksen tyyppi | Toistaiseksi voimassaoleva tai toistaiseksi voimassaoleva, vuokrasopimus voi päättyä aikaisintaan 12 kuukauden päästä ilman sopimussakkoa |
| Kampanjatieto | 1. kuukauden vuokra 0€, edellyttää 12kk sitoutumista asuntoon. |
| Vesimaksu | 24 €/hlö/kk |
| Vesimaksun lisätiedot | ennakko 24,00€/hlö/kk, tasaus 2 krt / vuosi |
| Uudiskohde | Kyllä |
| Taloyhtiön nimi | Matroonankatu 2 - Asunto Oy Espoon Matroonan Lintu |
| Rakennuksen tyyppi | ASUINKERROSTALO |
| Rakennusvuosi | 2024 |
| Huoneistojen lukumäärä | 146 |
| Kerroksia | 17 |
| Hissi | Kyllä |
| Energialuokka | A2018 |
| Energiatodistus | Kyllä |
| Autopaikat | Autopaikkoja hallinnoi ulkopuolinen toimija, vuokrattava erikseen |
| Sähköauton latauspiste | Ei. |
| Yhteiset tilat | kerhohuone, ulkoiluvälinevarasto, sauna, pesutupa |
| Lisätiedot | savuton talo, lemmikit sallittu |
Kajsa Pyyhtiä
Vuokrausneuvottelija
Puh. +358449023226
kajsa.pyyhtia@inna.fiINNA Asuntovuokraus, Pääkaupunkiseutu