Welcome to our new website! Retta Asuntovuokraus is now INNA Asuntovuokraus.













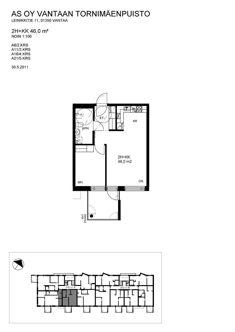
2h, kk, 46 m²
790 €/month
Rental deposit 350 € / 790 € depending on contract type
Toisen kerroksen kaksio lasitetulla parvekkeella! Tervetuloa tutustumaan tähän viihtyisään ja valoisan pohjaratkaisun omaavaan kaksioon, joka sijaitsee talon toisessa kerroksessa! Tämä koti hurmaa selkeydellään ja arjen toimivuutta tukevilla ratkaisuillaan. Avara ja valoisa olohuone toimii kodin sydämenä – suuret ikkunat tuovat tilaan runsaasti luonnonvaloa, ja parveke lisää avaruuden tuntua. Keittiö on käytännöllisesti suunniteltu ja tarjoaa hyvin säilytys- ja työskentelytilaa niin arkikokkailuun kuin viikonlopun herkkuihin. Makuuhuone tarjoaa rauhallisen paikan levätä, ja tilava vaatekaappi auttaa pitämään kodin järjestyksessä. Kylpyhuoneessa on paikka pyykinpesukoneelle ja kaikki tarpeellinen arjen sujuvuuden takaamiseksi. Tervetuloa ihastumaan – tämä voi olla uusi kotisi! Huom! Kuvat ovat vastaavanlaisesta asunnosta Kiinnostuitko? Voit täyttää asuntohakemuksen asuntoilmoitukselta verkkosivuiltamme. Hakemus ei sido sinua mihinkään. Olemme sinuun yhteydessä, mikäli voimme tarjota asuntoa sinulle. Asunnonhakuun liittyvissä kysymyksissä voitte olla yhteydessä vuokravälittäjään etunimi.sukunimi@inna.fi tai asiakaspalveluumme, puh. 030 609 5555 tai asuntovuokraus@inna.fi
| Street address | Leinikkitie 11 A 6 |
| Floor area | 46 m² |
| City | Vantaa |
| District | Simonkylä |
| Floor | 2/4 |
| Condition | hyvä |
| Release of the apartment | Immediately vacant |
| Sauna | No |
| Balcony details | Yes, lasitettu |
| Pets allowed | Yes |
| Other terms and conditions | Asukkaan vastuulla ottaa oma kotivakuutus. Vuokralainen tekee oman sähkösopimuksen. |
| Additional information | savuton |
| Kitchen equipment | liesi, lieden tyyppi: keraaminen liesi, astianpesukone, astianpesukoneen leveys: 45cm, jää-pakastinkaappi, liesituuletin |
| Bathroom equipment | peilikaappi, pesukoneliitäntä, lattiamateriaali: laatta, seinämateriaali: laatta, lattialämmitys, mukavuuslattialämmitys asunnon sähköstä |
| Floor material | laminaatti |
| Apartment-specific storage unit | Yes, Irtaimistovarasto ensimmäisessä kerroksessa. |
| Walk-in closet | No |
| Additional information | Savuton huoneisto |
| Rent / month | 790 € |
| Rental deposit | 350 € / 790 € depending on contract type |
| Type of contract | Open ended rental agreement or open ended rental agreement, rental agreement can be terminated at the earliest after 12 months without a contractual penalty |
| Water charge | 24 €/person/month |
| New building | No |
| Housing company name | Leinikkitie 11 - Asunto Oy Vantaan Tornimäenpuisto |
| Building type | ASUINKERROSTALO |
| Built in | 2012 |
| Number of apartments | 49 |
| Floors | 4 |
| Lift | Yes |
| Energy class | B 2013 |
| Energy certificate | No |
| Antenna system | Kaapelitelevisiojärjestelmä |
| Parking spaces | Autopaikkoja hallinnoi ulkopuolinen toimija, vuokrattava erikseen |
| Electric car charger | No. |
| Common spaces | sauna |
| Additional information | savuton talo, lemmikit sallittu |