














Kuudennen kerroksen kaksio etsii uusia asukkaita. Asunto sijaitsee rauhallisella alueella vanhassa Koivukylässä ja talon lähettyviltä on hyvät kulkuyhteydet. Asunnossa on toimiva pohjaratkaisu, sekä modernit kaluste- ja materiaalivalinnat. Lasitettu parveke lisää asumisviihtyvyyttä ja keittiöstä löytyy astianpesukone helpottamaan arjen askareita. Lemmikit ovat tervetulleita. Autopaikat omistaa taloyhtiö ja niitä hallinnoi taloyhtiön isännöinti. Autopaikoissa on jonoa tällä hetkellä. Kiinnostuitko? Voit täyttää asuntohakemuksen asuntoilmoitukselta verkkosivuiltamme. Hakemus ei sido sinua mihinkään. Olemme sinuun yhteydessä, mikäli voimme tarjota asuntoa sinulle. Asunnonhakuun liittyvissä kysymyksissä voitte olla yhteydessä asiakaspalveluumme, puh. 030 609 5555 tai asuntovuokraus@inna.fi
| Street address | Koivukyläntie 51 B 68 |
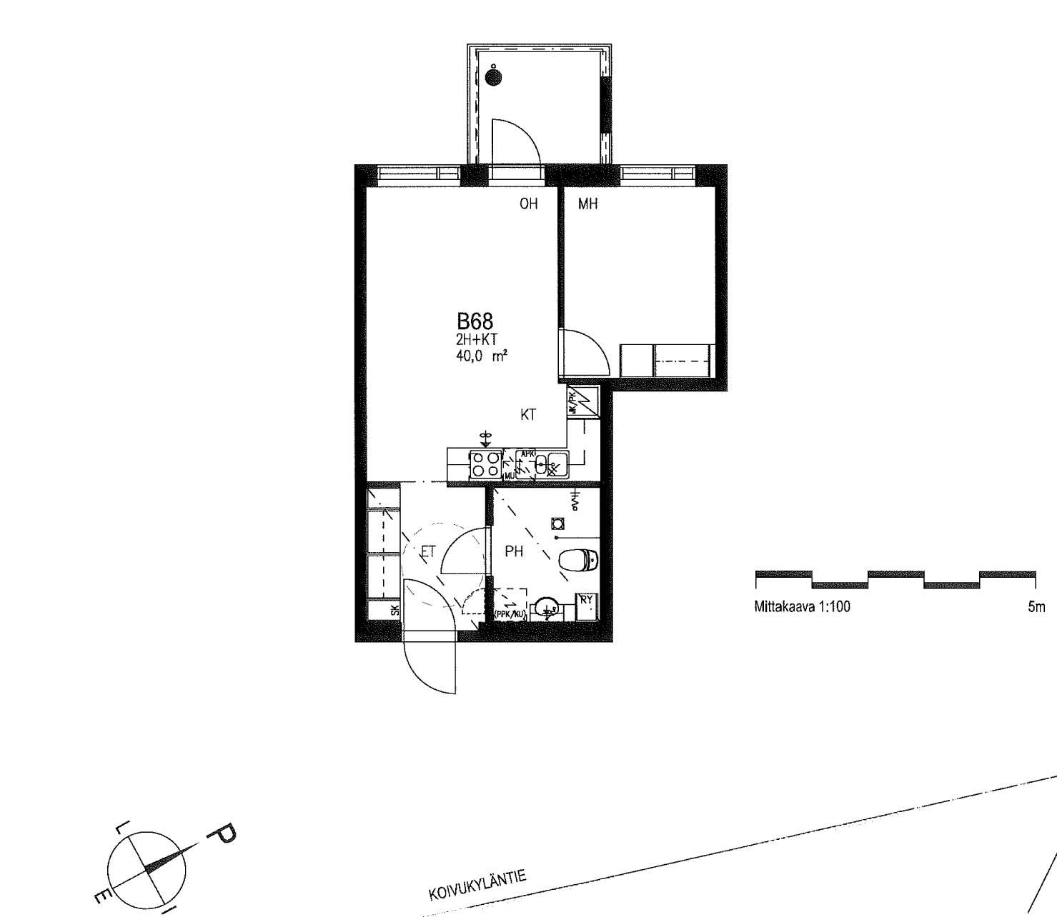
| Floor area | 40 m² |
| City | Vantaa |
| District | Koivukylä |
| Floor | 6/0 |
| Condition | hyvä |
| Release of the apartment | Immediately vacant |
| Sauna | No |
| Balcony details | Yes, lasitettu |
| Pets allowed | Yes |
| Other terms and conditions | Asukkaan vastuulla ottaa oma kotivakuutus. Vuokralainen tekee oman sähkösopimuksen. |
| Additional information | savuton |
| Kitchen equipment | liesi, lieden selite: keraaminen keittotaso, kalusteuuni, astianpesukone, jää-pakastinkaappi |
| Bathroom equipment | peilikaappi, pesukoneliitäntä, lattiamateriaali: laatta, seinämateriaali: laatta, lattialämmitys, asunnon sähköstä |
| Floor material | parketti |
| Apartment-specific storage unit | Yes, Irtainvarasto |
| Walk-in closet | No |
| Rent / month | 789 € |
| Rental deposit | 789 € |
| Type of contract | Open ended rental agreement, rental agreement can be terminated at the earliest after 12 months without a contractual penalty |
| Campaign information | Ensimmäisen kuukauden vuokra -50%. Etu on voimassa 30.4.2026 mennessä allekirjoitettuihin vuokrasopimuksiin. Etu edellyttää 12 kk sitoutumista. |
| Water charge | 24 €/person/month |
| New building | No |
| Housing company name | Koivukyläntie 51 - Asunto Oy Vantaan Purppurakoivu |
| Building type | ASUINKERROSTALO |
| Built in | 2014 |
| Number of apartments | 19 |
| Floors | 0 |
| Lift | Yes |
| Energy class | B2018 |
| Energy certificate | No |
| Parking spaces | Autopaikkoja hallinnoi ulkopuolinen toimija, vuokrattava erikseen |
| Electric car charger | No. |
| Common spaces | ulkoiluvälinevarasto |
| Additional information | lemmikit sallittu |
Sonja Gupta
Vuokrausneuvottelija
Tel. +358444946420
sonja.gupta@inna.fiINNA Asuntovuokraus, Pääkaupunkiseutu