Welcome to our new website! Retta Asuntovuokraus is now INNA Asuntovuokraus.

In the apartment:

  • Balcony
  • Sauna
  • Apartment-specific storage unit
  • Dishwasher
  • Pets allowed

In the building:

  • Number of floors 6
  • Lift
  • Construction year 2014

Apartment description

Valoisa ja avara saunallinen kolmio, jossa laadukkaat materiaalit, keittiössä hyvin kaappitilaa sekä astianpesukone. Tilava laatoitettu kylpyhuone, johon mahtuu hyvin pesukone. Iso lasitettu parveke lisää asumismukavuutta. Aivan Hollolan keskustan tuntumassa, luonnon läheisyydessä. Myös Kuntakeskuksen hyvät palvelut lähettyvillä. Mikäli kiinnostuit asunnosta niin käythän jättämässä asuntohakemuksen www.rettamanagement.fi sivun kautta kyseiseen asuntoon.

Apartment details

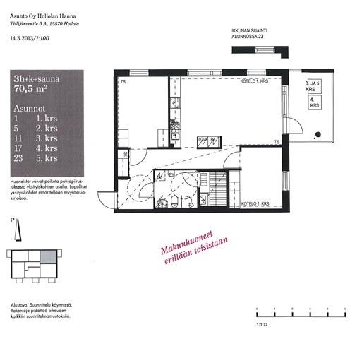
Street addressTiilijärventie 5 A 17
Floor area70.5 m²
CityHollola
DistrictSalpakangas
Floor4/6
Release of the apartmentBecoming available 01.03.26
SaunaYes
Balcony detailsYes, lasitettu
Pets allowedYes
Other terms and conditionsAsukkaan vastuulla ottaa oma kotivakuutus. Vuokralainen tekee oman sähkösopimuksen.
Additional informationsavuton

Equipment of the housing unit

Kitchen equipmentliesi, lieden tyyppi: keraaminen liesi, astianpesukone, jää-pakastinkaappi
Bathroom equipmentpeilikaappi, pesukoneliitäntä, lattiamateriaali: laatta, seinämateriaali: laatta, lattialämmitys, sähköinen mukavuuslattialämmitys
Floor materialparketti
Apartment-specific storage unitYes, irtaimistovarasto
Walk-in closetNo

Price and costs

Rent / month990 €
Rental deposit990 €
Type of contractOpen ended rental agreement, rental agreement can be terminated at the earliest after 6 months without a contractual penalty
Water charge24 €/person/month

Housing company information

New buildingNo
Housing company nameTiilijärventie 5 A - Asunto Oy Hollolan Hanna
Building typeASUINKERROSTALO
Built in2014
Number of apartments12
Floors6
LiftYes
Energy classB 2018
Energy certificateYes
Parking spacesAutopaikkoja hallinnoi ulkopuolinen toimija, vuokrattava erikseen
Electric car chargerNo.
Additional informationlemmikit sallittu

Location on the map

This apartment is brokered by:

Pinja Karvonen

Vuokravälittäjä

pinja.karvonen@inna.fi

INNA Asuntovuokraus, Lahti