Welcome to our new website! Retta Asuntovuokraus is now INNA Asuntovuokraus.

In the apartment:

  • Balcony
  • Sauna
  • Broadband included in the rent
  • Apartment-specific storage unit
  • Dishwasher
  • Pets allowed

In the building:

  • Lift
  • Construction year 2001
  • Loundry room

Apartment description

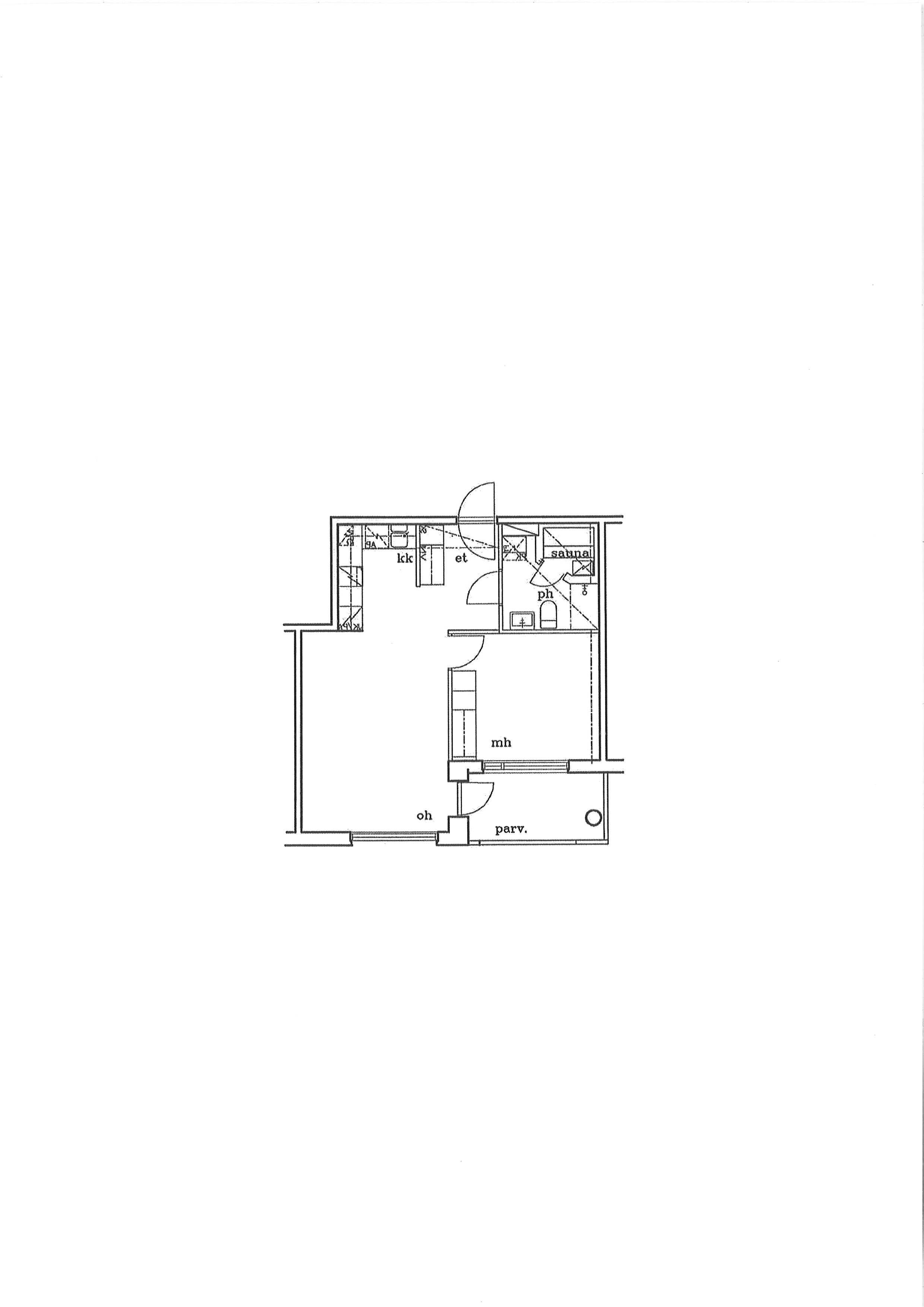
4.5.2026 vapautuva näpsäkkä saunallinen koti. Lähellä niin keskustan monipuoliset palvelut kuin opiskelupaikatkin. Bussiasema alle 300 m sekä lähin kauppa alle 100 m. Erittäin toimiva pohjaratkaisu, hyvät säilytystilat ja tilava parveke. Lattiat laminaattia, seinät maalatttu, sälekaihtimet. Lemmikkieläimet sallittu, mutta tupakointi kielletty. Mahdollisuus vuokrata hallipaikka.

Apartment details

Street addressKetarantie 22 As 17
Floor area47 m²
CityTurku
DistrictKeskusta
Floor2/0
Release of the apartmentBecoming available 01.05.26
SaunaYes
Balcony detailsYes, kulku olohuoneesta
Pets allowedYes
Other terms and conditionsAsukkaan vastuulla ottaa oma kotivakuutus. Vuokralainen tekee oman sähkösopimuksen.
Additional informationsavuton

Equipment of the housing unit

Kitchen equipmentliesi, astianpesukone, jääkaappi
Bathroom equipmentpesukoneliitäntä, lattiamateriaali: muovimatto, seinämateriaali: laatta
Floor materiallaminaatti
Apartment-specific storage unitYes, häkkivarasto
Walk-in closetNo

Price and costs

Rent / month710 €
Rental deposit710 €
Type of contractOpen ended rental agreement
Water charge24 €/person/month

Housing company information

New buildingNo
Housing company nameKetarantie 22 - Asunto Oy Turun Joutsenpuisto 1
Building typeASUINKERROSTALO
Built in2001
Number of apartments61
Floors0
LiftYes
Energy classC*2013
Energy certificateNo
Parking spacesAutopaikkoja hallinnoi ulkopuolinen toimija, vuokrattava erikseen
Electric car chargerNo.
Common spacesulkoiluvälinevarasto, pesutupa
Additional informationlemmikit sallittu

Location on the map

This apartment is brokered by:

Raija Pulli

Vuokravälittäjä

raija.pulli@inna.fi

INNA Asuntovuokraus, Turku

Tel. 030 609 5555