











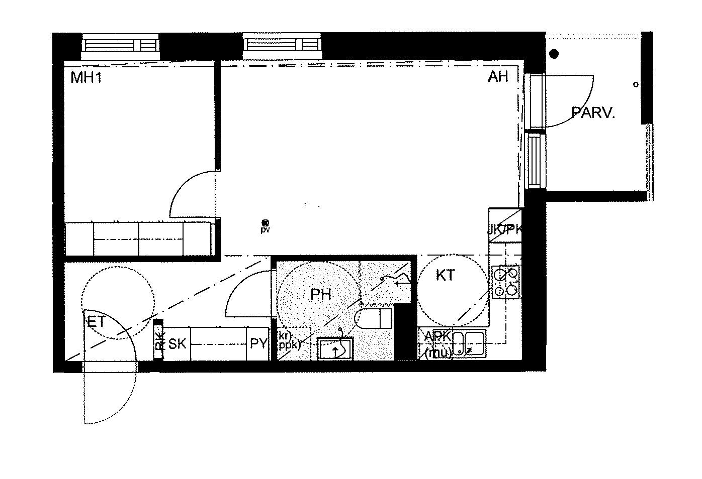
Palokankeskuksen välittömässä läheisyydestä löytyy tämä parvekkeellinen kaksio. Asunnon keittiöstä löytyy jää-pakastinkaappi, astianpesukone ja keraaminen liesi. Täysin laatoitetussa kylpyhuoneessa on liitäntä pyykinpesukoneelle sekä sähkökäyttöinen lattialämmitys. Parveke on kokonaan lasitettu ja asunnossa on sälekaihtimet ikkunoissa. Keittotila on otettu omaan nurkkaukseensa ja sen luokse ikkunan ääreen asettuu ruokapöytä. Olohuoneesssa on mukavasti tilaa sohvalle sekä tv-tasolle. Makuuhuoneesta löytyy kaappitilaa yhden seinällisen verran. Mannisenrinteen alueesta tekee tykätyn läheisen Palokankeskuksen kattavat palvelut josta löytyy useampi marketti, kuntosali ja muita palveluita. Mannisenrinteeltä löytyy päiväkoti ja suuntaan jos toiseen on helppo pyörähtää hyvien kulkureittien ansiosta. Autopaikat jonotuksen kautta, ei heti vapaita paikkoja. Kiinnostuitko? Voit täyttää asuntohakemuksen asuntoilmoitukselta verkkosivuiltamme. Hakemus ei sido sinua mihinkään. Olemme sinuun yhteydessä, mikäli voimme tarjota asuntoa sinulle. Asunnonhakuun liittyvissä kysymyksissä voitte olla yhteydessä asiakaspalveluumme, puh. 030 609 5555 tai asuntovuokraus@inna.fi Asuntohakemuksen voi jättää osoitteessa https://asunnot.inna.fi/
| Street address | Saarijärventie 42 A 32 |
| Floor area | 44 m² |
| City | Jyväskylä |
| District | Palokka |
| Floor | 6/8 |
| Condition | hyvä |
| Release of the apartment | Immediately vacant |
| Sauna | No |
| Balcony details | Yes, lasitettu |
| Pets allowed | Yes |
| Other terms and conditions | Asukkaan vastuulla ottaa oma kotivakuutus. Vuokralainen tekee oman sähkösopimuksen. |
| Additional information | savuton |
| Kitchen equipment | liesi, lieden selite: keraaminen, astianpesukone, jää-pakastinkaappi |
| Bathroom equipment | pesukoneliitäntä, lattiamateriaali: laatta, seinämateriaali: laatta, lattialämmitys, sähkökäyttöinen |
| Floor material | laminaatti |
| Apartment-specific storage unit | Yes, irtaimistovarasto sijaitsee sisäntulokerroksessa |
| Walk-in closet | No |
| Rent / month | 732 € |
| Rental deposit | 732 € |
| Type of contract | Open ended rental agreement, rental agreement can be terminated at the earliest after 6 months without a contractual penalty |
| Campaign information | Ensimmäisen täyden asumiskuukauden vuokra 0 €, edellyttää sitoutumista min. 12 kk asumiseen. |
| Water charge | 24 €/person/month |
| New building | No |
| Housing company name | Saarijärventie 42 - Asunto Oy Jyväskylän Tiilentekijä |
| Building type | ASUINKERROSTALO |
| Built in | 2015 |
| Number of apartments | 20 |
| Floors | 8 |
| Lift | Yes |
| Energy class | C2013 |
| Energy certificate | Yes |
| Antenna system | Kaapelitelevisiojärjestelmä |
| Parking spaces | Autopaikkoja hallinnoi ulkopuolinen toimija, vuokrattava erikseen |
| Electric car charger | No. |
| Additional information | lemmikit sallittu |