








Tilaava ja valoisa kaksio isolla parvekkeella! Nyt tarjolla upea, 41,5 neliöinen kaksio, halutusta taloyhtiöstä! Asunnon pohjaratkaisu on toimiva ja avara, ja suuret ikkunat tuovat luonnonvaloa huoneistoon. Vaaleat pintamateriaalit korostavat tilan raikkautta ja antavat kodille modernin ilmeen. Tilava olohuone yhdistyy keittiöön, jossa on hyvin tilaa ruokailuryhmälle. Erillinen paikka mikrolle säästää pöytätilaa, tehden keittiöstä käytännöllisen ja viihtyisän. Asunnossa on tilava ja viihtyisä parveke, joka avautuu sisäpihalle, joten saat nauttia rauhallisesta näkymästä. Ota yhteyttä ja tule katsomaan tätä valoisaa kotia! Voit vuokrata asunnon suoraan verkkokaupankautta tai täyttämällä asuntohakemuksen. Hakemus ei ole sitova. Ota yhteyttä kohteen välittäjään sähköpostitse. Yleisimpiin vuokraukseen liittyvissä asioissa voit olla yhteydessä myös INNA asiakaspalveluumme arkisin klo 8-16 p. 030 609 5555.
| Street address | Gräsantörmä 1 E 187 |
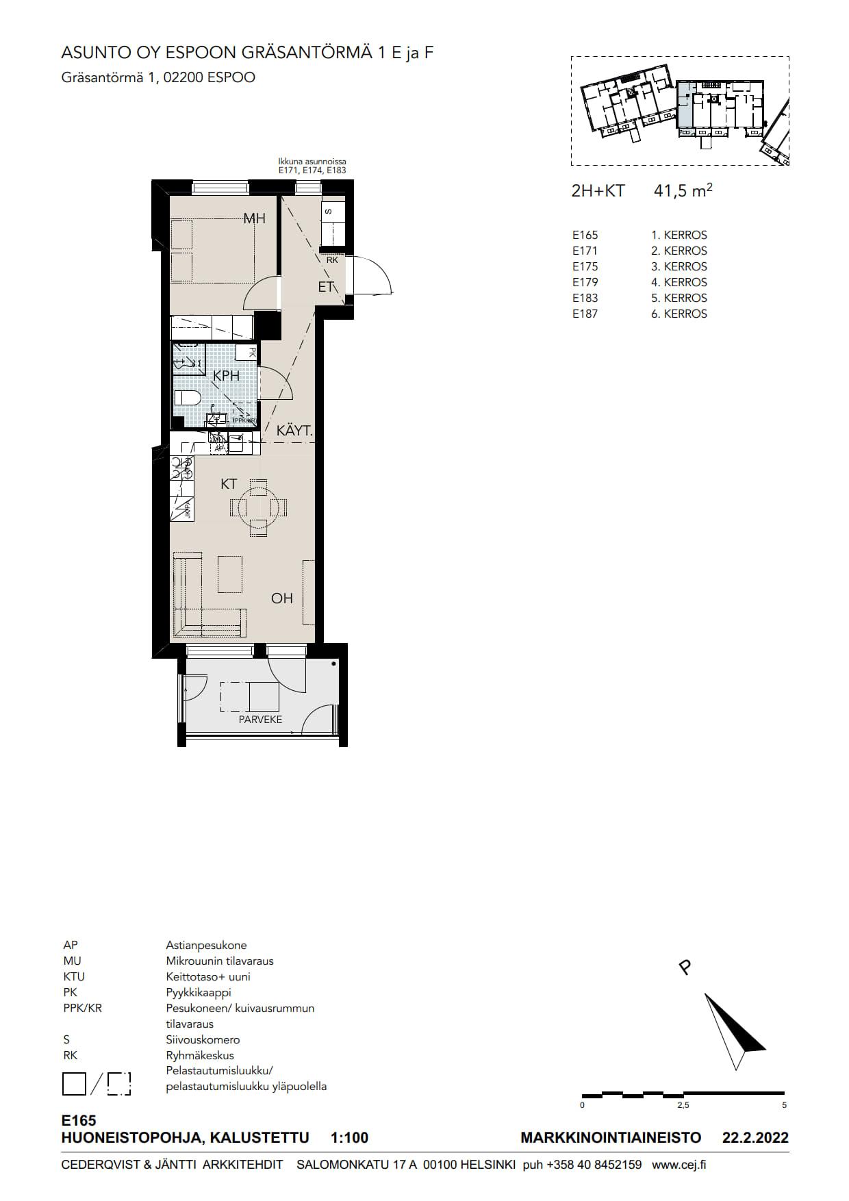
| Floor area | 41.5 m² |
| City | Espoo |
| District | Olari |
| Floor | 6/9 |
| Release of the apartment | Becoming available 04.05.26 |
| Sauna | No |
| Balcony details | No |
| Pets allowed | Yes |
| Other terms and conditions | Asukkaan vastuulla ottaa oma kotivakuutus. Vuokralainen tekee oman sähkösopimuksen. |
| Additional information | savuton |
| Kitchen equipment | liesi, lieden tyyppi: induktio, astianpesukone, jää-pakastinkaappi |
| Bathroom equipment | lattiamateriaali: laatta, seinämateriaali: laatta |
| Floor material | laminaatti |
| Apartment-specific storage unit | No |
| Walk-in closet | No |
| Additional information | Savuton huoneisto |
| Rent / month | 889 € |
| Rental deposit | 0 € / 350 € depending on contract type |
| Type of contract | Open ended rental agreement or open ended rental agreement, rental agreement can be terminated at the earliest after 12 months without a contractual penalty |
| Campaign information | KAMPANJA: ensimmäisen kuukauden vuokra -50%. Etu on voimassa uusiin vuokrasopimuksiin ja edellyttää min 12 kk:n sitoutumisen. Etu on käytettävissä ensimmäisen kokonaisen kuukauden vuokrassa. |
| Water charge | 27 €/person/month |
| New building | Yes |
| Housing company name | Gräsantörmä 1 E ja F - Asunto Oy Espoon Gräsantörmä 1 E ja F |
| Building type | ASUINKERROSTALO |
| Built in | 2023 |
| Number of apartments | 41 |
| Floors | 9 |
| Lift | No |
| Energy class | B2018 |
| Energy certificate | Yes |
| Parking spaces | Autopaikkoja hallinnoi ulkopuolinen toimija, vuokrattava erikseen |
| Electric car charger | No. |
| Common spaces | pesutupa |
| Additional information | savuton talo, esteetön |
Matti Lessig-Lajanne
Vuokravälittäjä
Tel. +358306095069
matti.lajanne@inna.fiINNA Asuntovuokraus, Pääkaupunkiseutu