













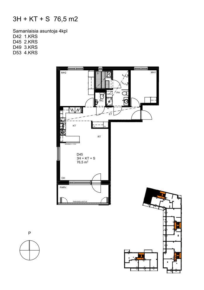
3h, kt, s, lasitettu parveke, 76.5 m²
1308 €/month
Rental deposit 350 € / 1308 € depending on contract type
Tilava kolmannen kerroksen saunallinen päätykolmio Lepolassa Leona-kodin tiedot Viihtyisä ja valoisa läpitalon huoneisto, jossa on nykyaikaisesti varusteltu avokeittiö täyspitkine kylmälaitteineen ja astianpesukoneineen. Keittiö yhdistyy avaraan olohuoneeseen ja madallettu seinä tuo väljyyttä tilojen välille. Modernissa kylpyhuoneessa on kaksi suihkua, lattialämmitys sekä liitännät ja tilavaraus pesukoneelle. Erillinen wc tuo sujuvuutta erityisesti lapsiperheiden arkiaamuihin. Oman saunan löylyistä pääsee nauttimaan aina halutessaan ja vilvoittelemaan pääsee lasitetulle parvekkeelle, jolta on näkymät sisäpihalle. Ilmoituksen kuvat ovat vastaavasta asunnosta samassa taloyhtiössä.
| Street address | Tähkä 1 D 49 |
| Floor area | 76.5 m² |
| City | Järvenpää |
| District | Lepola |
| Floor | 3/4 |
| Release of the apartment | Becoming available 01.04.26 |
| Sauna | Yes |
| Balcony details | Yes, lasitettu, ilmansuunta: lounas |
| Pets allowed | Yes |
| Other terms and conditions | Asukkaan vastuulla ottaa oma kotivakuutus. Vuokralainen tekee oman sähkösopimuksen. |
| Additional information | savuton |
| Kitchen equipment | liesi, lieden tyyppi: keraaminen liesi, lieden selite: liesitaso + erillisuuni, astianpesukone, jääkaappi, pakastin |
| Bathroom equipment | pesukoneliitäntä, lattiamateriaali: laatta, seinämateriaali: laatta, lattialämmitys, mukavuuslattialämmitys (huoneiston sähköstä) |
| Floor material | laminaatti |
| Apartment-specific storage unit | Yes, irtaimistovarasto |
| Walk-in closet | No |
| Additional information | Savuton huoneisto |
| Rent / month | 1308 € |
| Rental deposit | 350 € / 1308 € depending on contract type |
| Type of contract | Open ended rental agreement or open ended rental agreement, rental agreement can be terminated at the earliest after 12 months without a contractual penalty |
| Water charge | 25 €/person/month |
| Water charge details | Vesimaksu 25,00€/hlö/kk |
| New building | No |
| Housing company name | Tähkä 1 - Asunto Oy Järvenpään Vilja |
| Building type | ASUINKERROSTALO |
| Built in | 2014 |
| Number of apartments | 56 |
| Floors | 4 |
| Lift | Yes |
| Energy class | B2018 |
| Energy certificate | Yes |
| Antenna system | Kaapelitelevisiojärjestelmä |
| Parking spaces | Autopaikkoja hallinnoi ulkopuolinen toimija, vuokrattava erikseen |
| Electric car charger | No. |
| Common spaces | sauna |
| Additional information | savuton talo, lemmikit sallittu |
Annika Rämö
Vuokravälittäjä
Tel. +358406674597
annika.ramo@inna.fiINNA Asuntovuokraus, Hyvinkää
Tel. 030 609 5555