









Kotoisa pikkukoti kuudennessa kerroksessa. Tässä kodissa yhdistyvät vaaleat pintamateriaalit ja modernit kodinkoneet. Tyylikäs avokeittiö on varustettu mm. induktiotasolla (2-levyinen), kalusteuuni, jää/pakastinkaappi sekä astianpesukone. Laatoitetussa kylpyhuoneessa on runsaasti säilytystilaa, peilikaappi, allaslaatikosto, pyykkikaappi sekä kääntyvät suihkuseinät. Lisäksi kylpyhuoneessa on tilavaraus pyykinpesukoneelle. Alkovissa on mainio paikka sängylle, ja vaatehuone tarjoaa kätevän säilytystilan. Lemmikit ovat tervetulleita! Ilmoituksen kuvat esittävät huoneistoa vastaavaa asuntoa. Huomioithan, että näkymät voivat vaihdella kerroksesta toiseen. Kiinnostuitko? Tämänkin kodin voit vuokrata verkkokaupastamme tai jättää hakemuksen asuntoilmoitukselta verkkosivuillamme. Asunnonhakuun liittyvissä kysymyksissä voitte olla yhteydessä asiakaspalveluumme, puh. 030 609 5555 tai asuntovuokraus@inna.fi
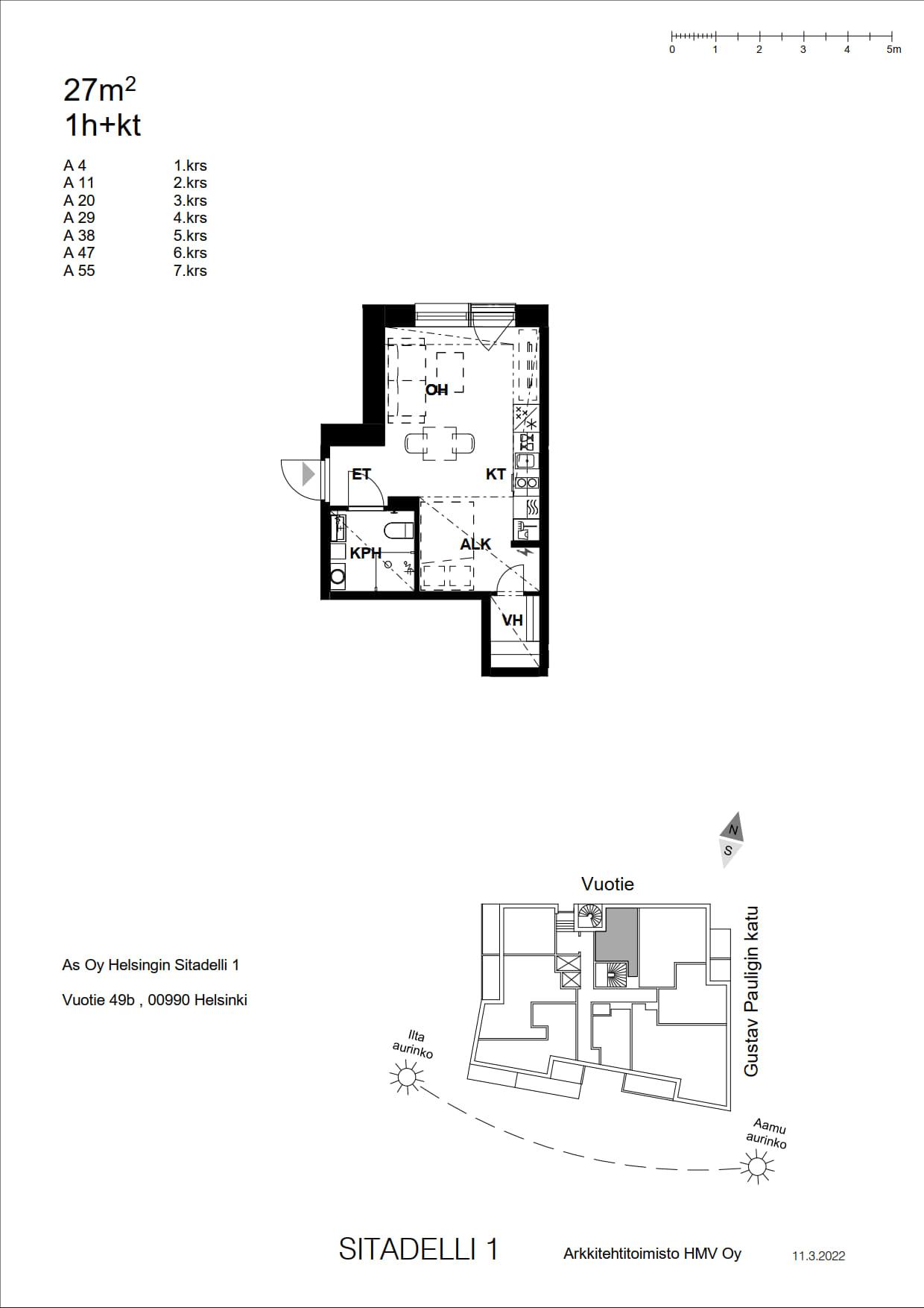
| Street address | Vuotie 49b A 47 |
| Floor area | 27 m² |
| City | Helsinki |
| District | Vuosaari |
| Floor | 6/14 |
| Release of the apartment | Immediately vacant |
| Sauna | No |
| Balcony details | Yes, Ranskalainen parveke |
| Pets allowed | Yes |
| Other terms and conditions | Asukkaan vastuulla ottaa oma kotivakuutus. Vuokralainen tekee oman sähkösopimuksen. |
| Additional information | savuton |
| Kitchen equipment | liesi, lieden tyyppi: induktio, lieden selite: induktiotaso,-kalusteuuni, astianpesukone, jää-pakastinkaappi |
| Bathroom equipment | peilikaappi, pesukoneliitäntä, lattiamateriaali: laatta, seinämateriaali: laatta, lattialämmitys, mukavuuslattialämmitys asunnon sähköstä |
| Floor material | laatta |
| Apartment-specific storage unit | Yes, irtainvarasto |
| Walk-in closet | No |
| Rent / month | 719 € |
| Rental deposit | 0 € / 0 € depending on contract type |
| Type of contract | Open ended rental agreement or open ended rental agreement, rental agreement can be terminated at the earliest after 12 months without a contractual penalty |
| Campaign information | 1. kuukauden vuokra 0€, edellyttää 12kk sitoutumista asuntoon. |
| Water charge | 27 €/person/month |
| New building | Yes |
| Housing company name | Vuotie 49b - Asunto Oy Helsingin Sitadelli 1 |
| Building type | ASUINKERROSTALO |
| Built in | 2022 |
| Number of apartments | 110 |
| Floors | 14 |
| Lift | No |
| Energy class | A 2018 |
| Energy certificate | Yes |
| Parking spaces | Autopaikkoja hallinnoi ulkopuolinen toimija, vuokrattava erikseen |
| Electric car charger | No. |
| Common spaces | kerhohuone, ulkoiluvälinevarasto, pesutupa |
| Additional information | esteetön |
Veera Wollsten
Vuokrausneuvottelija
Tel. +358306095579
Veera.Wollsten@inna.fiINNA Asuntovuokraus, Pääkaupunkiseutu