










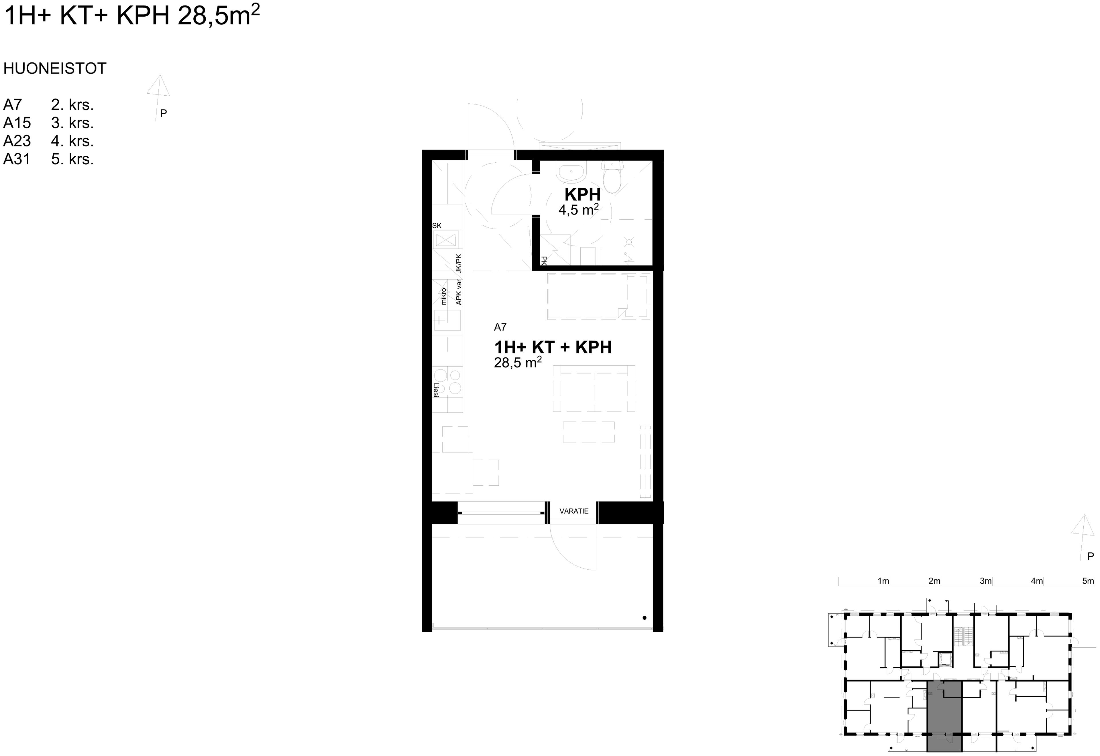
1h, kt, 28.5 m²
639 €/month
Rental deposit 0 € / 350 € depending on contract type
Tästä ihana koti Lepolankorttelista, Ainolan juna-aseman läheltä! Asunnoissa on laadukkaat kaluste- ja materiaalivalinnat: lattiat ovat laminaattia, kylpyhuoneissa keraamiset laatat sekä sähköinen mukavuuslattialämmitys. Keittiön varusteluun kuuluu jääkappipakastin, kalusteuuni ja keraaminen tasoliesi sekä astianpesukone.
| Street address | Heinähäntä 2 A 15 |
| Floor area | 28.5 m² |
| City | Järvenpää |
| District | Lepola |
| Floor | 3/5 |
| Condition | erinomainen |
| Release of the apartment | Becoming available 01.04.26 |
| Sauna | No |
| Balcony details | Yes, lasitettu |
| Pets allowed | Yes |
| Other terms and conditions | Asukkaan vastuulla ottaa oma kotivakuutus. Vuokralainen tekee oman sähkösopimuksen. |
| Additional information | savuton |
| Kitchen equipment | liesi, astianpesukone, jää-pakastinkaappi |
| Bathroom equipment | peilikaappi, pesukoneliitäntä, lattiamateriaali: laatta, seinämateriaali: laatta, lattialämmitys, mukavuuslattialämmitys (huoneiston sähköstä) |
| Floor material | laminaatti |
| Apartment-specific storage unit | Yes, irtaimistovarasto |
| Walk-in closet | No |
| Additional information | Savuton huoneisto |
| Rent / month | 639 € |
| Rental deposit | 0 € / 350 € depending on contract type |
| Type of contract | Open ended rental agreement or open ended rental agreement, rental agreement can be terminated at the earliest after 12 months without a contractual penalty |
| Campaign information | Ensimmäisen kk vuokra -50 %, etu edellyttää 12 kuukauden sitoutumista. |
| Water charge | 27 €/person/month |
| New building | Yes |
| Housing company name | Heinähäntä 2 - Asunto Oy Järvenpään Heinähäntä 2 |
| Building type | ASUINKERROSTALO |
| Built in | 2022 |
| Number of apartments | 65 |
| Floors | 5 |
| Lift | Yes |
| Energy class | B2018 |
| Energy certificate | Yes |
| Antenna system | Kaapelitelevisiojärjestelmä |
| Parking spaces | Autopaikkoja hallinnoi ulkopuolinen toimija, vuokrattava erikseen |
| Electric car charger | No. |
| Common spaces | ulkoiluvälinevarasto, sauna, pesutupa |
| Additional information | savuton talo, lemmikit sallittu |
Noora Kostiainen
Vuokrausneuvottelija
Noora.Kostiainen@inna.fiINNA Asuntovuokraus, Hyvinkää
Tel. 030 609 5555