Muuta nyt – Nauti kesästä puoleen hintaan! Muuta uuteen kotiin 29.5 mennessä ja saat kesä–heinäkuun vuokrat -50 %. Etu uusille asiakkaille, 12 kk sitoutumisella.

Espoo, Painiitty

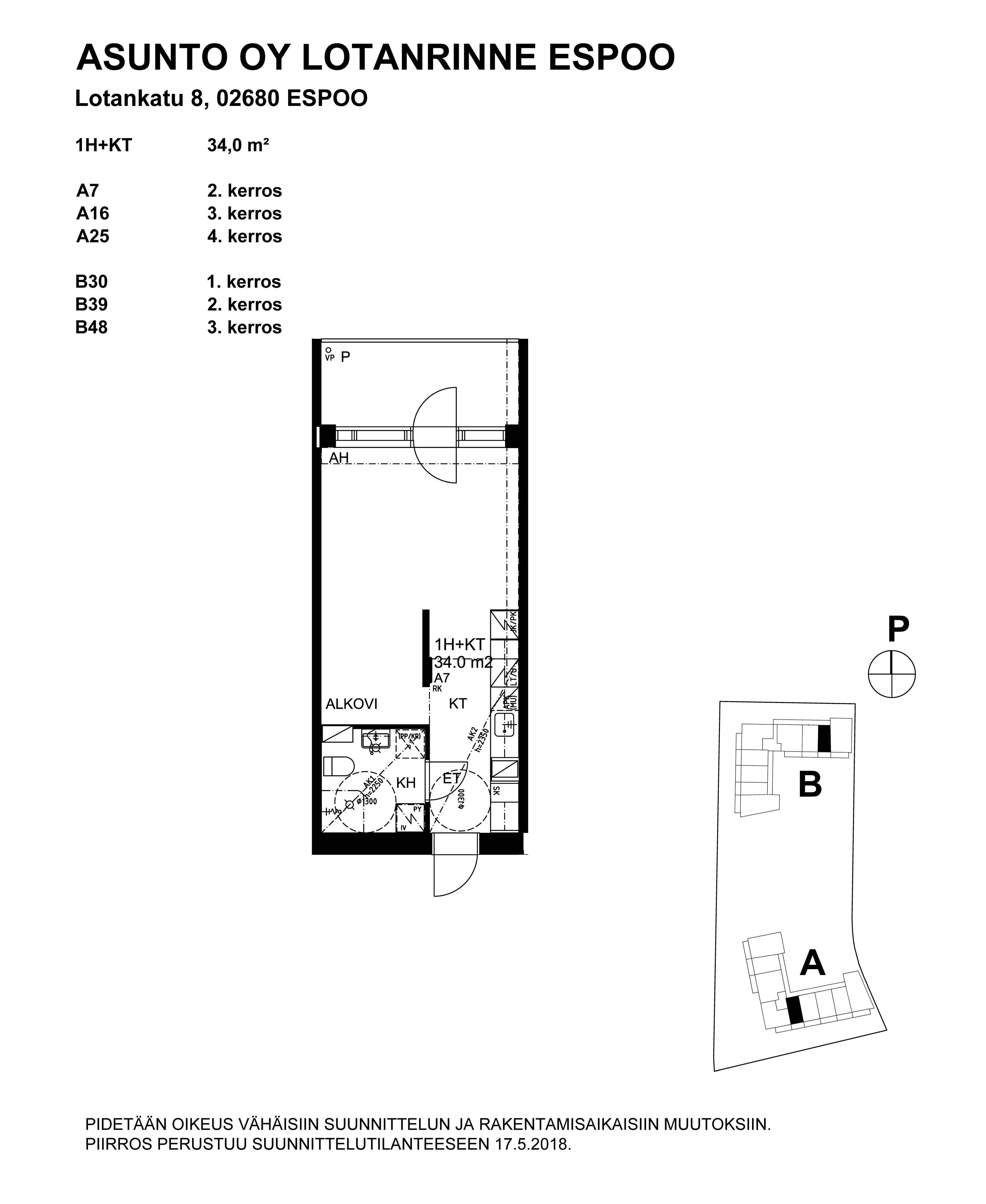
Lotankatu 8 B 39

1h, kt, 34

730 €/kk

Vuokravakuus 350 € / 730 € sopimustyypistä riippuen

Asunnossa:

  • Parveke
  • Laajakaista kuuluu vuokraan
  • Huoneistokohtainen varasto
  • Astianpesukone
  • Lemmikit sallittu
  • Videoesittely

Talossa:

  • Kerroksia 4
  • Hissi
  • Sauna
  • Rakennusvuosi 2019

Asunnon kuvaus

Parvekkeellinen yksiö alkovilla luonnonläheisellä alueella Painiityssä. Leona-kodin tiedot Tässä toimivassa kodissa on laadukkaasti varusteltu avokeittiö astianpesukoneineen, vaaleat laminaattilattiat ja tilavassa kylpyhuoneessa lattialämmitys. Asunnossa on reilu, lasitettu parveke, jossa nautit aamukahvit raikkaassa ulkoilmassa. Asunto sijaitsee modernissa, vuonna 2019 valmistuneessa kerrostalossa. Ilmoituksen kuvat ovat vastaavasta asunnosta samassa taloyhtiössä.

Asunnon tiedot

KatuosoiteLotankatu 8 B 39
Pinta-ala34 m²
KaupunkiEspoo
KaupunginosaPainiitty
Kerros2/4
Kuntohyvä
Huoneiston vapautuminenVapautumassa 27.04.26
SaunaEi
Parvekkeen tiedotKyllä, lasitettu, lasitettu
VideoesittelyKyllä
Lemmikit sallittuKyllä
Muut ehdotAsukkaan vastuulla ottaa oma kotivakuutus. Vuokralainen tekee oman sähkösopimuksen.
Lisätiedotsavuton

Asunnon varustelu

Keittiön varusteluliesi, lieden tyyppi: keraaminen liesi, astianpesukone, jää-pakastinkaappi, liesituuletin
Kylpyhuoneen varustelupeilikaappi, pesukoneliitäntä, lattiamateriaali: laatta, seinämateriaali: laatta, lattialämmitys, asunnon sähköstä
Lattiamateriaalilaminaatti
Huoneistokohtainen varastoKyllä, Irtaimistovarasto ensimmäisessä kerroksessa.
VaatehuoneEi
LisätiedotSavuton huoneisto

Hinta ja kustannukset

Vuokra / kk730 €
Vuokravakuus 350 € / 730 € sopimustyypistä riippuen
Sopimuksen tyyppiToistaiseksi voimassaoleva tai toistaiseksi voimassaoleva, vuokrasopimus voi päättyä aikaisintaan 12 kuukauden päästä ilman sopimussakkoa
KampanjatietoMuuta nyt – Nauti kesästä puoleen hintaan! Muuta uuteen kotiin 29.5 mennessä ja saat kesä–heinäkuun vuokrat -50 %. Etu uusille asiakkaille, 12 kk sitoutumisella.
Vesimaksu25 €/hlö/kk
Vesimaksun lisätiedotkiinteä

Taloyhtiön tiedot

UudiskohdeEi
Taloyhtiön nimiLotankatu 8 - Asunto Oy Lotanrinne Espoo
Rakennuksen tyyppiASUINKERROSTALO
Rakennusvuosi2019
Huoneistojen lukumäärä55
Kerroksia4
HissiKyllä
EnergialuokkaC2013
EnergiatodistusEi
AutopaikatAutopaikkoja hallinnoi ulkopuolinen toimija, vuokrattava erikseen
Sähköauton latauspisteEi.
Yhteiset tilatulkoiluvälinevarasto, sauna
Lisätiedotsavuton talo, lemmikit sallittu

Sijainti kartalla

Oletko kiinnostunut tästä asunnosta?

Kohdetta välittää:

Tinja Kärki

Vuokrausneuvottelija

tinja.karki@inna.fi

Leona-kodit, asuntovuokraus

Puh. 030 609 5500